Szolnok
-
Kínálati ár: 1 595 220 Ft
Kalkulált ár: 4 407 Є -
1 501 m2
Alapterület
-
2 000 m2
Telekterület
-
15
Szobaszám
- Alapterület 1 501 m2
- Telekterület 2 000 m2
- Szobaszám 15
- Web www.ingatlantajolo.hu/9319641
- Négyzetméter ár 1 063 Ft/m2
- Értékesítés típusa Kiadó / Kínál
- Kategória Kereskedelmi és ipari ingatlan
- Típus Raktár
- Állapot Újszerű állapotú
- Fűtés Gáz (cirkó)
- Építés éve 1998
- Belső szintek nincs megadva
- CSOK igénybe vehető nem
- Kilátás nincs megadva
- Tájolás nincs megadva
- Parkolási lehetőség nincs megadva
- Építőanyag nincs megadva
- Klíma nem
- Havi rezsiköltség nincs megadva
- Elektromos autó töltés nincs megadva
- Akadálymentesített nincs megadva
Energetikai besorolás:
Az ingatlan leírása
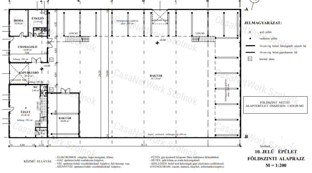
A Szolnoki CasaNetWork ingatlaniroda bérlésre kínál egy 1501 m2-es csarnok raktárt!Az ingatlan főbb jellemzői:- Szolnok Északi részén helyezkedik el, az M4-es autóút felhajtójától 1900 méterre-2000 m2-en található, kerítéssel teljesen körbehatárolt- a közművek közül víz, villany, vezetékes gáz és csatorna is bevezetésre került-az épület két ütemben épült, első ütemben a hátsó raktár rész, majd 2. ütembenépült a raktár elé a kétszintes irodai rész- funkció: a földszinten kiszolgáló helyiségek és raktár, az emeleten irodák és
galériás kialakítással raktár. A vertikális közlekedést lépcsők biztosítják.
Felmenő szerkezet acél vázszerkezet-a falazat szerelt jellegű, hőszigetelt
burkolattal - tetőfedés szerelt jellegű, hőszigeteléssel- nyílászáró szerkezetek: a kapuk lamellás, felfelé gördülő kivitelű elektromos
működtetéssel- gépészet: az épület irodai része fűthető gázkazánnal, a raktár fűtetlen- elektromos: a világítás, a klíma és a kapu mozgatás - víz-csatorna: a vizesblokkokhoz kiépítve; fali tűzcsap van - szellőzés: a belső terű helyiségeknél kapcsolóról indított szellőzés - gyengeáram: informatika, riasztó, kamera, tűzjelző - a földszinten két gépészeti/közmű akna található; a 4. jelű épületből két védőcső
került lefektetésre a közmű aknáig- a rakodási terület térkővel burkolt, ipari minőségben- a bérleti idő minimum 12 hó, amennyiben hamarabb kerül felmondásra a kaució összege nem jár vissza, két havi kaució szükséges a bérléshez Amennyiben a fenti 155806709 -es azonosító számú kiadó ipari ingatlan, vagy bármely kínálatunkban található ingatlan felkeltette érdeklődését, kérem hívjon bizalommal!/A hirdetésben szereplő információk a megbízótól kapott adatok alapján készültek./Irodánk teljes körű szolgáltatással áll ügyfelei rendelkezésére: hitelügyintézés, ügyvédi szolgáltatás, ingatlan értékbecslés, energetikai tanúsítvány készítése.CasaNetWork - Ingatlanban otthon vagyunk!