Hódmezővásárhely
-
Kínálati ár: 250 000 Ft
Kalkulált ár: 636 Є -
170 m2
Alapterület
- Alapterület 170 m2
- Telekterület -
- Szobaszám -
- Web www.ingatlantajolo.hu/9290332
- Négyzetméter ár 1 471 Ft/m2
- Értékesítés típusa Kiadó / Kínál
- Kategória Kereskedelmi és ipari ingatlan
- Típus Műhely
- Emelet földszint
- Állapot Átlagos
- Fűtés Egyéb fűtés
- Belső szintek nincs megadva
- CSOK igénybe vehető nem
- Kilátás nincs megadva
- Tájolás nincs megadva
- Parkolási lehetőség nincs megadva
- Építőanyag nincs megadva
- Klíma nem
- Havi rezsiköltség nincs megadva
- Elektromos autó töltés nincs megadva
- Akadálymentesített nincs megadva
Energetikai besorolás:
A+++
A++
A+
A
B
C
D
E
F
G
H
I
Az ingatlan leírása
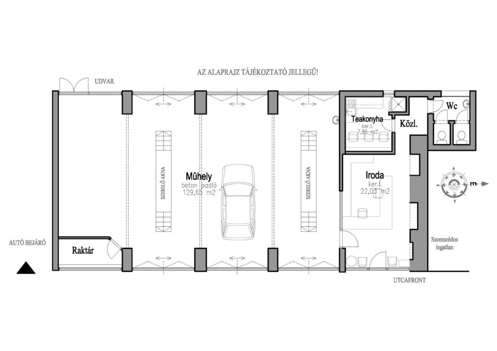
Kiadó ~170,00 m2 alapterületű, autószerelő műhely és iroda helyiség szociális blokkal.A műhelyben 2 szerelőakna és a pilléreket összekötő rácsos tartó szerkezet található.
3 méternél szélesebb, nyitható ajtók kerültek beépítésre az utcafronton és az udvar felöli homlokzaton is. Az épület előtti parkolóhelyek a főútról könnyen megközelíthetőek.
A bérlés feltétele: 2 havi kaució + 1 havi bérleti díj (250 000.-Ft+ÁFA) és 1 éves bérleti szerződés.
Az ingatlan használaton kívül van, azonnal kivehető!
Néhány információ még az ingatlanról:
- Alapterület: ~170,00 m2
- Autószerelő műhely: ~130,00 m2
- Iroda, konyha mosdó: ~40,00 m2
- Fűtés: gázkazán, klíma
- bérleti díj: 250 000.- Ft + ÁFA / hó
Az ingatlannal kapcsolatos kérdéseivel várom hívását, a hét bármely napján.
Ügyfeleink számára irodánk teljes jogi hátteret, adás-vétellel kapcsolatos térítésmentes jogi tanácsadást biztosít.
Bank semleges hitelügyintézéssel, díjmentes hitelszűréssel és tanácsadással is hozzájárulunk, hogy megtalálja az ön számára legkedvezőbb megoldást. Kattintson ide a hirdető iroda weboldalának megtekintéséhez!