Hajdúböszörmény
-
Kínálati ár: 3 500 Ft
Kalkulált ár: 10 Є -
97 m2
Alapterület
-
5
Szobaszám
- Alapterület 97 m2
- Telekterület -
- Szobaszám 5
- Web www.ingatlantajolo.hu/9320400
- Négyzetméter ár 36 Ft/m2
- Értékesítés típusa Kiadó / Kínál
- Kategória Ház- házrész
- Típus Családi ház
- Állapot Új építésű
- Belső szintek nincs megadva
- Tetőtér beépíthető nem
- CSOK igénybe vehető nem
- Kilátás nincs megadva
- Tájolás nincs megadva
- Ingatlan komfort nincs megadva
- Parkolási lehetőség nincs megadva
- Építőanyag nincs megadva
- Bútorozott nincs megadva
- Akadálymentesített nincs megadva
- Erkély, terasz nincs megadva
- Klíma nem
- Szigetelt nem
- Havi rezsiköltség nincs megadva
- Lakásbiztosítás nincs megadva
- Kábelszolgáltató nincs megadva
- Elektromos autó töltés nincs megadva
Energetikai besorolás:
Az ingatlan leírása
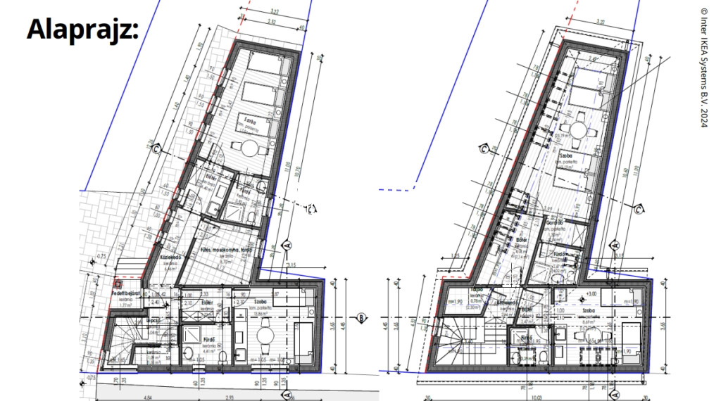
Debrecentől mintegy 20 km-re, 97,52 m²-es munkásszálló kiadó!-új építésű
-2 szintes
-összesen 7 szoba (szobánként 2 ágy)
-7 db fürdőszoba + WC
-minden szobához saját fürdő tartozik
-minden szoba felszereltsége:
hűtő
TV
klíma
szekrény
-50 m²-es tágas nappali
-30 m²-es mosókonyha
-teljesen felszerelt konyha
-bútorozott, azonnal költözhető
Bérlés feltételei:
-egyben kiadó
-ár: 3.500 Ft / fő / éj
-minimum bérleti idő: 1 év
-fél éves bérlés esetén: 4.000 Ft / fő / éj
Hosszabb távra ideális munkásszállás!
Referencia szám: #124685
*****
Worker’s accommodation for rent approx. 20 km from Debrecen (97.52 m²)!
-Newly built
-2 floors
-7 rooms (2 beds per room)
-7 bathrooms with toilets
-Each room has a private bathroom
-Room equipment:
fridge
TV
air conditioning
wardrobe
-Spacious 50 m² living room
-30 m² laundry room
-fully equipped kitchen
-furnished and ready to move in
Rental conditions:
-available as a whole property only
-price: 3,500 HUF / person / night
-minimum rental period: 1 year
-6 months possible: 4,000 HUF / person / night
Suitable for long-term worker accommodation.
Reference number: #124685