Harkány, Harkány
-
Kínálati ár: 15 500 000 Ft
Kalkulált ár: 42 818 Є -
90 m2
Alapterület
-
1 421 m2
Telekterület
-
3
Szobaszám
- Alapterület 90 m2
- Telekterület 1 421 m2
- Szobaszám 3
- Web www.ingatlantajolo.hu/9322498
- Négyzetméter ár 172 222 Ft/m2
- Értékesítés típusa Eladó / Kínál
- Kategória Üdülő, hétvégi ház
- Típus Üdülő, nyaraló
- Építés éve 1980
- Belső szintek nincs megadva
- Tetőtér beépíthető nem
- CSOK igénybe vehető nem
- Kilátás nincs megadva
- Tájolás nincs megadva
- Ingatlan komfort nincs megadva
- Parkolási lehetőség nincs megadva
- Építőanyag nincs megadva
- Bútorozott nincs megadva
- Akadálymentesített nincs megadva
- Erkély, terasz nincs megadva
- Klíma nem
- Szigetelt nem
- Havi rezsiköltség nincs megadva
- Lakásbiztosítás nincs megadva
- Kábelszolgáltató nincs megadva
- Elektromos autó töltés nincs megadva
Energetikai besorolás:
Az ingatlan leírása
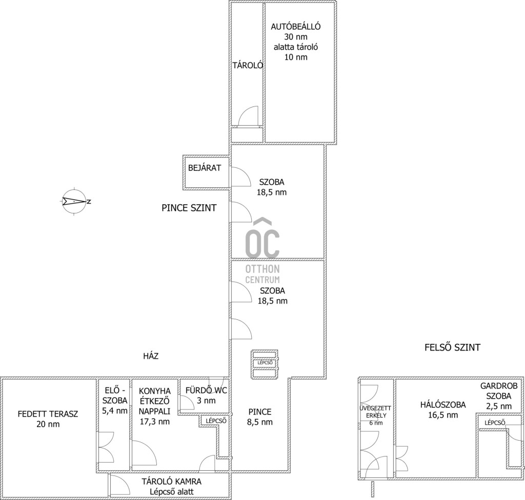
Harkányban a Tenkes csárda alatti dombon eladó egy lakható kisház nagy udvarral.A terület hivatalosan zártkert, de művelés alól kivett terület, 1421 négyzetméter, Van rajta egy 50 négyzetméteres kisház, 20 négyzetméteres fedett terasszal, és egy 45 négyzetméteres melléképület, amiben fél-szuterén szinten van két szoba, és egy pince.
Két tárolóban lehet elhelyezni a kerti dolgokat, és két kocsinak van kialakítva autóbeálló.
- Nagy fedett terasza van,
- víz be van kötve,
- H tarifa, vezérelt áram, és 32 A áll rendelkezésre,
- Szennyvíztartálya 6 m3-es,
- egy ciszterna is rendelkezésre áll,
- a házban, és a melléképületben is hűtő-fűtő légkondi került kialakításra, ami befűti az egész teret, ez mellett a házban egy fatüzelésű kandallóval is lehet fűteni.
- Az ablakok többsége műanyag, a belső térben a belmagasság 245 cm,
- a konyha szép modern kialakítású, kényelmes, mosogatógéppel, villanytűzhellyel,
- a fürdőszoba és a wc egy helyiségben van, zuhanyfülkés,
- az emeletre, a tetőtérbe vezető lépcső kényelmes,
- a hálószobában helyet kapott egy gardrób sarok is,
- a hálószobából nyíló beüvegezett erkélyről nagyon szép a kilátás a Szársomlyóra, és a környező házakra, ellátni egészen a Siklósi várig.
- a melléképületben két egymásból nyíló szoba található, egy pincével. Ebből a pincéből kis átalakítással a két házrész összenyitható, régen úgy volt. Ez a lakrész járólapozott, műanyag ablakos.
Az ingatlan végig kavicsos úton megközelíthető, akár a legnagyobb hóban is.
Az ingatlant javaslom nyaralónak, hobbikertnek, mert nagy kert tartozik hozzá. Megfelelő lehet családi háznak is, többen is laknak a környéken. A szomszédok kedvesek, segítőkészek.
Hamar birtokba vehető, tehermentes ingatlan.
Amennyiben meg szeretné tekinteni, egyeztessünk időpontot!