Veszprém
-
Kínálati ár: 49 990 000 Ft
Kalkulált ár: 137 713 Є -
45 m2
Alapterület
-
2
Szobaszám
- Alapterület 45 m2
- Telekterület -
- Szobaszám 2
- Web www.ingatlantajolo.hu/9260641
- Négyzetméter ár 1 110 889 Ft/m2
- Értékesítés típusa Eladó / Kínál
- Kategória Lakás
- Típus Téglalakás
- Állapot Új építésű
- Fűtés Egyéb fűtés
- Szintek száma 4
- Építés éve 2026
- CSOK igénybe vehető igen
- Kilátás nincs megadva
- Tájolás nincs megadva
- Ingatlan komfort Összkomfortos
- Parkolási lehetőség nincs megadva
- Építőanyag Tégla
- Bútorozott nincs megadva
- Akadálymentesített nincs megadva
- Erkély, terasz Erkély
- Kert kapcsolat nincs megadva
- Klíma nem
- Szigetelt nem
- Havi rezsiköltség nincs megadva
- Lakásbiztosítás nincs megadva
- Kábelszolgáltató nincs megadva
- Elektromos autó töltés nincs megadva
Energetikai besorolás:
Ez a hirdetés megfelelhet a FIX 3%-os programnak. Tudj meg többet a részletekről itt.
Az ingatlan leírása
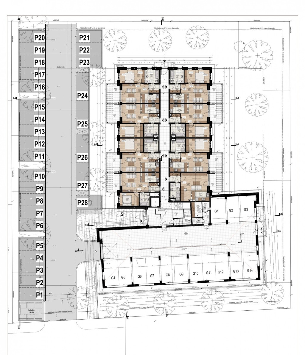
Veszprém dinamikusan fejlődő, csendes kertvárosi részén, kiváló infrastruktúrával és könnyű megközelíthetőséggel kínálunk eladásra újépítésű lakásokat. Az ingatlan egy földszint + 3 emeletből álló, összesen 43 lakásos társasház, korszerű energetikai megoldásokkal, prémium minőségben épül.A modern, liftes társasház kényelmes életkörnyezetet biztosít leendő lakói számára. 29-75 m2 alapterületű, napfényes, praktikus elrendezésű lakások kerültek kialakításra, így mindenki megtalálhatja az elképzeléseinek és igényeinek megfelelő otthont.
Az építkezés folyamatban van, várhatóan 2027. IV. negyedévében kerül befejezésre.
A társasházban teremgarázs és kültéri parkolók állnak rendelkezésre, ezekből opcionálisan lehet választani. Ezen kívül privát tároló megvásárlására is van lehetőség. A földszinti lakásokhoz saját kert és terasz, az emeletiekhez pedig erkély tartozik.
Az ingatlan fűtését központi hőszivattyú biztosítja, padlófűtéssel, egyedi hőmennyiségmérővel.
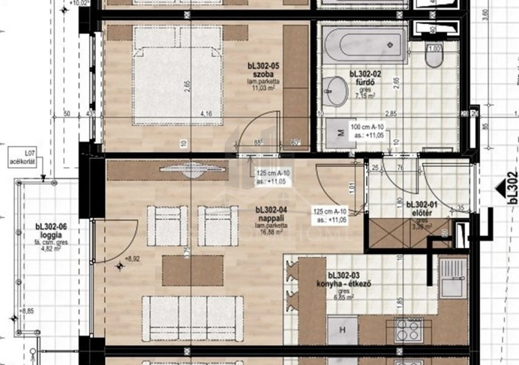
A BL302-es lakás, 3. emeleti, 45,3 m2 alapterületű, amihez 4,82 m2-es erkély tartozik.
Elosztását tekintve: előtér, nappali-konyha-étkező, 1 szoba, fürdőszoba.
A lakás fűtéskész vételára bruttó 49.990.000 Ft, kérhető a kulcsrakész befejezés, így az ára bruttó 56.990.000 Ft.
Parkoló ára: 2.800.000 Ft.
Garázs ára: 7.800.000 Ft - 8.500.000 Ft. A lakásokhoz 1 db parkoló vagy 1 db garázs megvásárlása kötelező.
Lehetőség van tároló vásárlására is, ára: 1.800.000 Ft – 2.200.000 Ft/db
A további lakástípusokat honlapunkon is megtalálja.
Használja ki az illetékmentességet és a 3 %-os Otthon Start programot!
Irodánk díjmentes pénzügyi tanácsadással áll ügyfelei rendelkezésére. Bankfüggetlen közvetítőként megtaláljuk az Ön számára legkedvezőbb pénzügyi megoldásokat és támogatjuk az ügylet teljeskörű lebonyolításában.
Bővebb információkért hívjon, akár hétvégén is!