Tata
-
Kínálati ár: 69 999 000 Ft
Kalkulált ár: 178 115 Є -
57 m2
Alapterület
-
47 m2
Telekterület
-
3
Szobaszám
- Alapterület 57 m2
- Telekterület 47 m2
- Szobaszám 3
- Web www.ingatlantajolo.hu/9252818
- Négyzetméter ár 1 228 053 Ft/m2
- Értékesítés típusa Eladó / Kínál
- Kategória Lakás
- Típus Téglalakás
- Emelet földszint
- Állapot Új építésű
- Fűtés Egyéb fűtés
- Építés éve 2013
- CSOK igénybe vehető nem
- Kilátás nincs megadva
- Tájolás nincs megadva
- Ingatlan komfort nincs megadva
- Parkolási lehetőség nincs megadva
- Építőanyag nincs megadva
- Bútorozott nincs megadva
- Akadálymentesített nincs megadva
- Erkély, terasz nincs megadva
- Kert kapcsolat nincs megadva
- Klíma nem
- Szigetelt nem
- Havi rezsiköltség nincs megadva
- Lakásbiztosítás nincs megadva
- Kábelszolgáltató nincs megadva
- Elektromos autó töltés nincs megadva
Energetikai besorolás:
Ez a hirdetés megfelelhet a FIX 3%-os programnak. Tudj meg többet a részletekről itt.
Az ingatlan leírása
ÚJ ÉPÍTÉSŰ, EKXLÚZÍV SORHÁZI OTTHONOK TATA BELVÁROSÁBAN – SAJÁT KERTTELUTOLSÓ LAKÁS!!!
Költözzön új építésű, energiatakarékos otthonba saját kerttel a városközpont közelében, pár perc sétára az Öreg-tótól és a Cseke-tótól, ahol a modern kialakítás találkozik a kényelmes városi élettel!
OTTHON START 3%-OS HITEL
CSOK PLUSZ HITEL (3%-os hitel)!!!
ILLETÉKMENTESSÉG!!
HŐSZIVATTYÚS PADLÓFŰTÉS!!
Olyan otthont keres, amelyet a saját ízlése szerint alakíthat ki??
Mindemellett fontos Önnek a nyugodt, családias környezet, de mégis közel szeretne maradni Tata szívéhez??
Ha Ön is időben jelentkezik, akkor most Önné lehet ebből a 4 lakásos exkluzív sorházi projektből az egyik modern, szintes vagy földszintes otthon, saját kerttel .
A 4 lakásból már csak 1 elérhető!
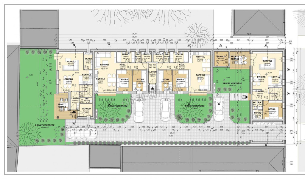
Lakások kialakítása
szintes és földszintes kialakítás:
földszint: amerikai konyhás nappali közvetlen kertkapcsolattal, valamint fürdő és mellékhelyiségek.A földszinti lakásoknál két hálószobával
emelet: hálószobák és fürdőszoba
Az egyik lakásnál lent is helyet kapott egy hálószoba , az emeleten pedig további kettő
A projekt filozófiája
A projekt kitalálásánál a legfontosabb szempont volt, hogy a legkorszerűbb építési technológia és anyagok felhasználásán túl kényelmes, tágas helyiségek kerüljenek kialakításra.
A lakások fűtését lakásonként telepített, szabályozható levegő hőszivattyúk biztosítják, amelyek egyetlen rendszerben gondoskodnak a fűtésről és a használati melegvíz előállításáról.
Az ingatlant egyedi, praktikus megoldásokkal tervezték, melyek az Ön kényelmét szolgálják. Ha mégis lenne egyéni elképzelése, most még lehetősége van rá, hogy a saját ízlése szerint válassza ki a burkolatokat és szanitereket.
Műszaki tartalom
Teherhordó és válaszfalak: Porotherm 30 N+F Profi falazat, Porotherm 10 N+F Profi válaszfal
Födém: monolit vasbeton födém
Tetőszerkezet: natúr színű kerámia tetőcserép, szellőző elemekkel, hófogóval
Lépcső: gipszzsalus lépcsőszerkezet
Hőszigetelés:
Padlásfödémen: 25–30 cm Rockwool Multirock kőzetgyapot
Homlokzaton: 15 cm Austrotherm EPS H80 üvegszövet hálóval
Lábazaton: 15 cm Austrotherm Expert Fix XPS üvegszövet hálóval
Nyílászárók: műanyag, szürkés-zöld színben
Bejárati ajtó: többponton záródó, hőszigetelő kivitel (szürkés-zöld színben)
Fűtés: lakásonkénti levegő-víz hőszivattyú, padlófűtéssel
Burkolatok, szaniterek: vásárló igénye szerint választhatók
Az épület körül a telek nagy része privát zöldfelület lesz. A burkolt részek kizárólag a gépjárművekhez szükséges minimum mennyiségben készülnek. A terület többi része gyepesített, a telekhatároknál cserjesáv és futónövények biztosítják a zöld környezetet és az egységes látványt.
Lakások paraméterei és árai
1-es lakás: 109,91 nm (109.200.000 Ft) + 8,75 nm (4.400.000 Ft) + 1 db térkőves belső parkoló (1.500.000 Ft) + 59,09 nm privát kertrész = 115.100.000 Ft
BEVEZETŐ ÁR!!!!
2-es lakás: 57 nm (69.999.000 Ft) + 1 db térkőves belső parkoló (1.500.000 Ft) + 48,44 nm privát kertrész = 71.500.000Ft
3-as lakás: 57 nm (69.999.000 Ft) + 1 db térkőves belső parkoló (1.500.000 Ft) + 48,44 nm privát kertrész = 71.500.000Ft
4-es lakás: ELKELT !!!
Projekt ütemezés
Építkezés kezdete: 2026. január 15
Műszaki átadás: 2026.December 31
Extra szolgáltatások
Ingyenes, teljes körű bankfüggetlen hitel- és CSOK Plusz ügyintézés
Szerződés előkészítése és teljes körű jogi támogatás
Ne maradjon le erről az exkluzív lehetőségről!
Hívjon bizalommal a részletekért:
Szabó Szilvia
Tel.: