Szombathely
-
Kínálati ár: 50 000 000 Ft
Kalkulált ár: 137 363 Є -
37 m2
Alapterület
-
1
Szobaszám
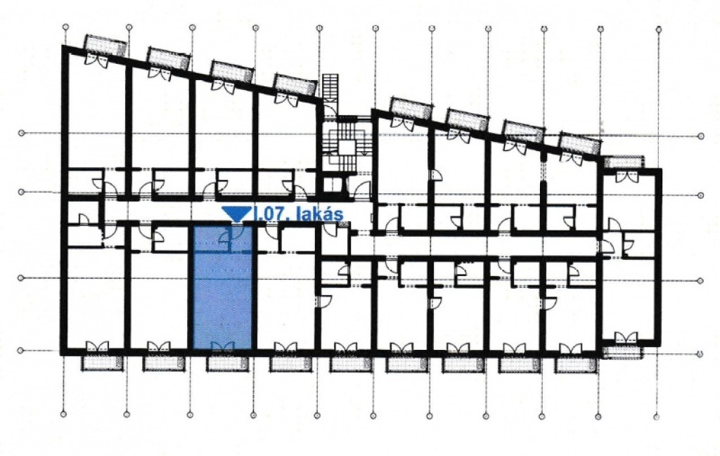
- Alapterület 37 m2
- Telekterület -
- Szobaszám 1
- Web www.ingatlantajolo.hu/9239455
- Négyzetméter ár 1 351 351 Ft/m2
- Értékesítés típusa Eladó / Kínál
- Kategória Lakás
- Típus Téglalakás
- Emelet 1.
- Állapot Új építésű
- Fűtés Házközponti fűtés egyedi méréssel
- Szintek száma 4
- Építés éve 2026
- CSOK igénybe vehető nem
- Kilátás nincs megadva
- Tájolás nincs megadva
- Ingatlan komfort nincs megadva
- Parkolási lehetőség nincs megadva
- Építőanyag nincs megadva
- Bútorozott nincs megadva
- Akadálymentesített nincs megadva
- Erkély, terasz nincs megadva
- Kert kapcsolat nincs megadva
- Klíma nem
- Szigetelt nem
- Havi rezsiköltség nincs megadva
- Lakásbiztosítás nincs megadva
- Kábelszolgáltató nincs megadva
- Elektromos autó töltés nincs megadva
Energetikai besorolás:
Ez a hirdetés megfelelhet a FIX 3%-os programnak. Tudj meg többet a részletekről itt.
Az ingatlan leírása
Home & People Ingatlanazonosító: #23404Farkas Dániel
Vezető referens
ÚJ ÉPÍTÉSŰ LAKÁS SZOMBATHELYEN!
37 m²,
2db Viessmann kazán, melegvíztárolóval, Siemens egyéni fogyasztásmérőkkel,
3 rétegű üveggel ellátott, az energetikai tanrisítvány szerinti szigetelésű műanyag nyilászárók, szürke színben,
Hőszigetelés: 15 cm vastagságban EPS rendszerű, dörzsvakolattal ellátott,
LG inverteres fűtő-hűtő klíma,
Frirdő: kompletten csempézve, járóIapozva,Villeroy & Boch beépített keretes Wc és mosdó, Ravak kád, Grohe csapok,
Konyhai előkészítés, csempézve, áram és elszívó kiépítve. . I.osztályú szalagparketta, fehér beltéri és bejárati ajtó, o Fehér festett falak,
Biztonsági üveggel ellátott terasz,
4 szintes társasház 1. emeletén található,
Lift,
Parkolás: saját kocsibeálló,
Mélygarázsban tároló, hő és füstelvezető rendszerrel, elektromos kapuval, szén-monoxid étzékelövel,
Savaria plázától 200m-re,
Az épületre 10Kw napelem kerül elhelyezésre, ami a közös költség elektromos részét csökkenti.
Közösköltség 16.000 Ft,
Déli tájolás,
Redőnyös ablakok.
Irányár: 50 000 000 Ft
H&P azonosító: 23404
Keressen bizalommal!
Farkas Dániel