Siófok
-
Kínálati ár: 49 900 000 Ft
Kalkulált ár: 137 845 Є -
37 m2
Alapterület
-
1
Szobaszám
- Alapterület 37 m2
- Telekterület -
- Szobaszám 1
- Web www.ingatlantajolo.hu/9323417
- Négyzetméter ár 1 348 649 Ft/m2
- Értékesítés típusa Eladó / Kínál
- Kategória Lakás
- Típus Téglalakás
- Állapot Új építésű
- Fűtés Egyéb fűtés
- Építés éve 2026
- CSOK igénybe vehető nem
- Kilátás nincs megadva
- Tájolás nincs megadva
- Ingatlan komfort nincs megadva
- Parkolási lehetőség nincs megadva
- Építőanyag nincs megadva
- Bútorozott nincs megadva
- Akadálymentesített nincs megadva
- Erkély, terasz nincs megadva
- Kert kapcsolat nincs megadva
- Klíma nem
- Szigetelt nem
- Havi rezsiköltség nincs megadva
- Lakásbiztosítás nincs megadva
- Kábelszolgáltató nincs megadva
- Elektromos autó töltés nincs megadva
Energetikai besorolás:
Ez a hirdetés megfelelhet a FIX 3%-os programnak. Tudj meg többet a részletekről itt.
Az ingatlan leírása
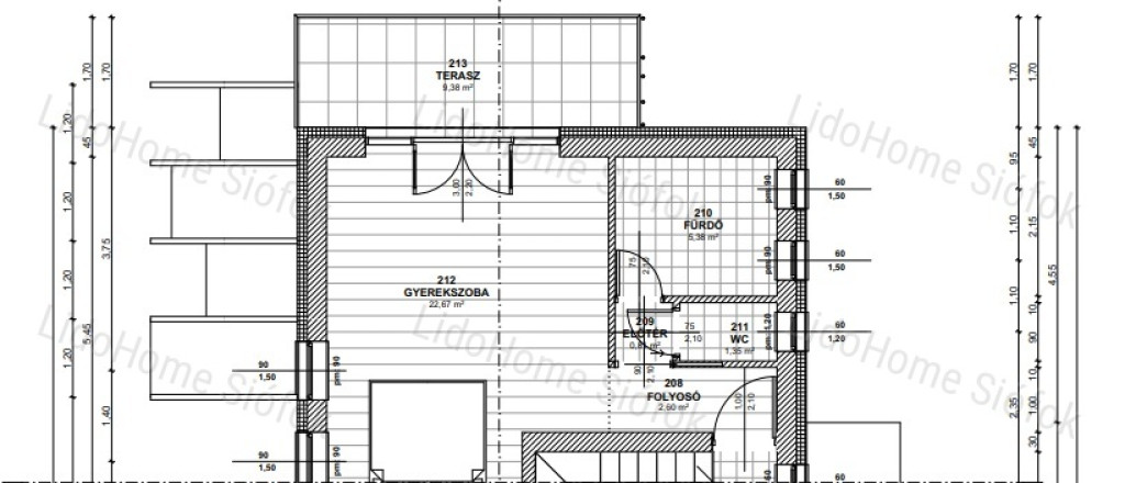
A LIDO HOME ingatlan siófoki irodája kínálja eladásra ezt az új építésű társasházi TÉGLA LAKÁST SIÓFOK BELVÁROSÁHOZ KÖZEL!A 4 lakásos lakóépület elhelyezkedése kiváló, Siófok belvárosához közel egy kellemes, ősfák által szegélyezett utcában található, Siófok Fő tér kb. 500 méter, a Balaton part kb. 1 kilométerre található!
Az első emeleti, új építésű lakás elosztása (lakótér 32 m2 + terasz 9.38 m2):
- Méretes, amerikai konyhás nappali, innen tudunk kilépni a teraszra
- Zuhanyozós fürdőszoba
- Külön mellékhelyiség
- Előszoba
- Terasz
- A lakás árán felül lehet megvásárolni 5M forintért a KOCSIBEÁLLÓT
Amennyiben felkeltette az érdeklődését ez az ÚJ ÉPÍTÉSŰ BELVÁROSI LAKÁS, hívjon elérhetőségemen!
LIDO HOME -INGATLANOK EGY ÉLETEN ÁT!