Siófok
-
Kínálati ár: 62 900 000 Ft
Kalkulált ár: 176 190 Є -
39 m2
Alapterület
-
40 m2
Telekterület
-
2
Szobaszám
- Alapterület 39 m2
- Telekterület 40 m2
- Szobaszám 2
- Web www.ingatlantajolo.hu/9259848
- Négyzetméter ár 1 612 821 Ft/m2
- Értékesítés típusa Eladó / Kínál
- Kategória Lakás
- Típus Téglalakás
- Állapot Új építésű
- Fűtés Egyéb fűtés
- Építés éve 2026
- CSOK igénybe vehető nem
- Kilátás nincs megadva
- Tájolás nincs megadva
- Ingatlan komfort nincs megadva
- Parkolási lehetőség nincs megadva
- Építőanyag nincs megadva
- Bútorozott nincs megadva
- Akadálymentesített nincs megadva
- Erkély, terasz nincs megadva
- Kert kapcsolat nincs megadva
- Klíma nem
- Szigetelt nem
- Havi rezsiköltség nincs megadva
- Lakásbiztosítás nincs megadva
- Kábelszolgáltató nincs megadva
- Elektromos autó töltés nincs megadva
Energetikai besorolás:
Az ingatlan leírása
A LIDO HOME ingatlan siófoki irodája eladásra kínálja ezt az új építésű, exkluzív megjelenésű és minőségű, kiváló ár/érték arányú lakást SIÓFOK-SÓSTÓN!Balatoni strandtól 800 m-re, új építésű, 7 lakásos, három szintes társasházban kínálunk többféle áron és méretben önálló helyrajzi számmal rendelkező lakásokat. Az építkezés folyamatban van, átadásukra 2026. III. negyedévben kerül sor. A lakások a legkorszerűbb technológiával és anyagokkal készülnek. Házközponti levegő-víz hőszivattyús padlófűtés egyedi hőmennyiség méréssel, „H” tarifa, nappaliban klímás fűtés-hűtés, elektromos redőnyök, kérésre a szobá/k/ban is. A földszinti lakásokhoz kertkapcsolat is tartozik. Az udvaron medence kerül megépítésre. Udvaron belül autóbeálló 3 millió forintért vásárolható.
Balatonhoz való közelsége miatt kiváló választás lehet az ingatlan állandó lakhatásra vagy nyaralás/nyaraltatás céljából.
Építtető referencia munkái a közelben megtekinthetők.
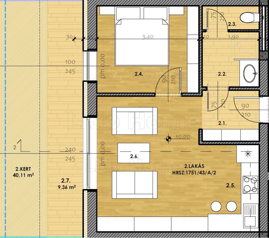
Jelen hirdetésben szereplő földszinti . lakás jellemzői:
- DNy-i fekvésű,
- 39,0 m2 nettó alapterület + 9,5 m2 terasz + 40,0 m saját kert,
- nappali / 16,0 m2 /
- szoba /10,0 m2/
- konyha+étkező / 5,0 m2/
- fürdőszoba / 3,5 m2 /, külön WC /1,5 m2/
- meleg víz ellátás villanybojlerből,
- közművek egyedi mérővel rendelkeznek,
- rendezett jogi helyzet, lakásonként önálló helyrajzi szám.
Az ingatlan autóval Budapestről 1 óra alatt elérhető az M7 autópályáról. Autópálya ki/felhajtó 2 perc.
Amennyiben a LIDO HOME által kínált SIÓFOKI lakás, vagy bármely a kínálatunkban található egyéb INGATLAN felkeltette az érdeklődését, hívjon a megadott telefonszámon.
Vásárolna, de nincs rá keret?
Kollégám díjmentes, bank semleges hitel ügyintézéssel áll rendelkezésére.
LIDO HOME- Ingatlanok egy életen át!