Pécs, Ledina, Ledina
-
Kínálati ár: 49 800 000 Ft
Kalkulált ár: 137 190 Є -
60 m2
Alapterület
-
2
Szobaszám
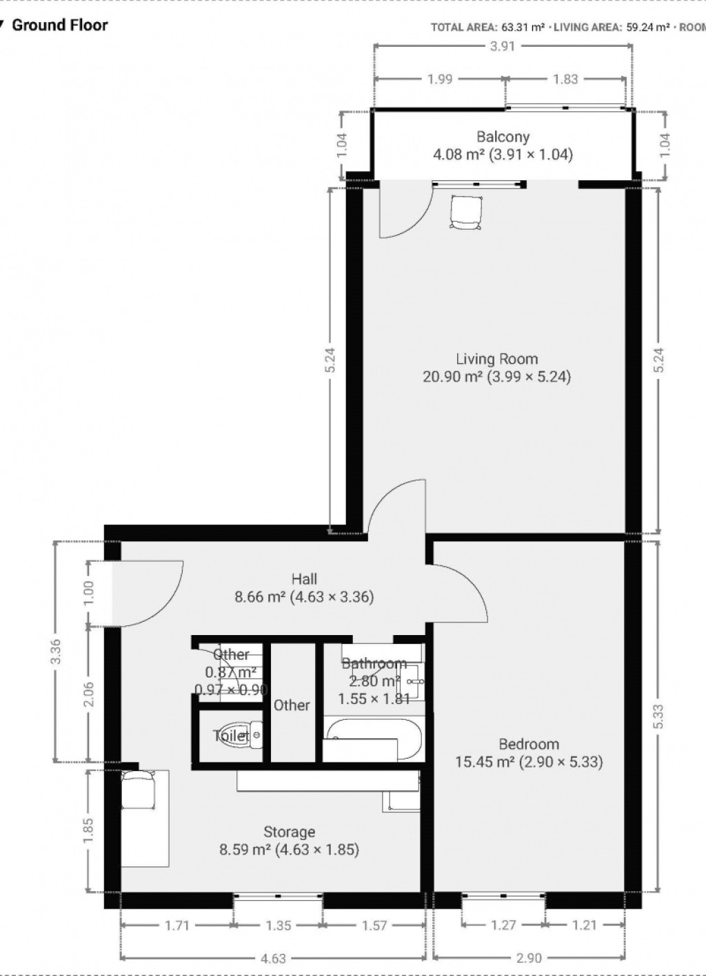
- Alapterület 60 m2
- Telekterület -
- Szobaszám 2
- Web www.ingatlantajolo.hu/9304566
- Négyzetméter ár 830 000 Ft/m2
- Értékesítés típusa Eladó / Kínál
- Kategória Lakás
- Típus Téglalakás
- Emelet 3.
- Állapot Felújított
- Fűtés Távfűtés
- CSOK igénybe vehető nem
- Kilátás nincs megadva
- Tájolás nincs megadva
- Ingatlan komfort nincs megadva
- Parkolási lehetőség nincs megadva
- Építőanyag nincs megadva
- Bútorozott nincs megadva
- Akadálymentesített nincs megadva
- Erkély, terasz nincs megadva
- Kert kapcsolat nincs megadva
- Klíma nem
- Szigetelt nem
- Havi rezsiköltség nincs megadva
- Lakásbiztosítás nincs megadva
- Kábelszolgáltató nincs megadva
- Elektromos autó töltés nincs megadva
Energetikai besorolás:
Ez a hirdetés megfelelhet a FIX 3%-os programnak. Tudj meg többet a részletekről itt.
Az ingatlan leírása
Pécs- Zsolnay negyed mellett eladó egy 3. emeleti, 60 m2 -es, két külön nyíló szobás, erkélyes, jó állapotú téglalakás!Tökéletes befektetési lehetőséget rejt magában ez a belvároshoz közel elhelyezkedő ingatlan, de első lakásnak is ajánlom.
Fűtését távhő biztosítja a melegvízzel együtt.
Nyílászárói műanyagok, burkolatai jó állapotú laminált parketta és járólap.
Közelben minden fontos kiszolgáló egység és kikapcsolódási lehetőség megtalálható (Aldi, benzinkút, hentes, Zsolnay negyed, stb.). Gyalogosan 20 perc alatt beérünk a Király utcába!
Amennyiben felkeltette érdeklődését, keressen bizalommal!