Pécs, Fehérhegy, Fehérhegy
-
Kínálati ár: 31 900 000 Ft
Kalkulált ár: 87 879 Є -
49 m2
Alapterület
-
2
Szobaszám
- Alapterület 49 m2
- Telekterület -
- Szobaszám 2
- Web www.ingatlantajolo.hu/9327989
- Négyzetméter ár 651 020 Ft/m2
- Értékesítés típusa Eladó / Kínál
- Kategória Lakás
- Típus Téglalakás
- Emelet 2.
- Állapot Felújított
- Fűtés Gáz (konvektor)
- CSOK igénybe vehető nem
- Kilátás nincs megadva
- Tájolás nincs megadva
- Ingatlan komfort nincs megadva
- Parkolási lehetőség nincs megadva
- Építőanyag nincs megadva
- Bútorozott nincs megadva
- Akadálymentesített nincs megadva
- Erkély, terasz nincs megadva
- Kert kapcsolat nincs megadva
- Klíma nem
- Szigetelt nem
- Havi rezsiköltség nincs megadva
- Lakásbiztosítás nincs megadva
- Kábelszolgáltató nincs megadva
- Elektromos autó töltés nincs megadva
Energetikai besorolás:
Ez a hirdetés megfelelhet a FIX 3%-os programnak. Tudj meg többet a részletekről itt.
Az ingatlan leírása
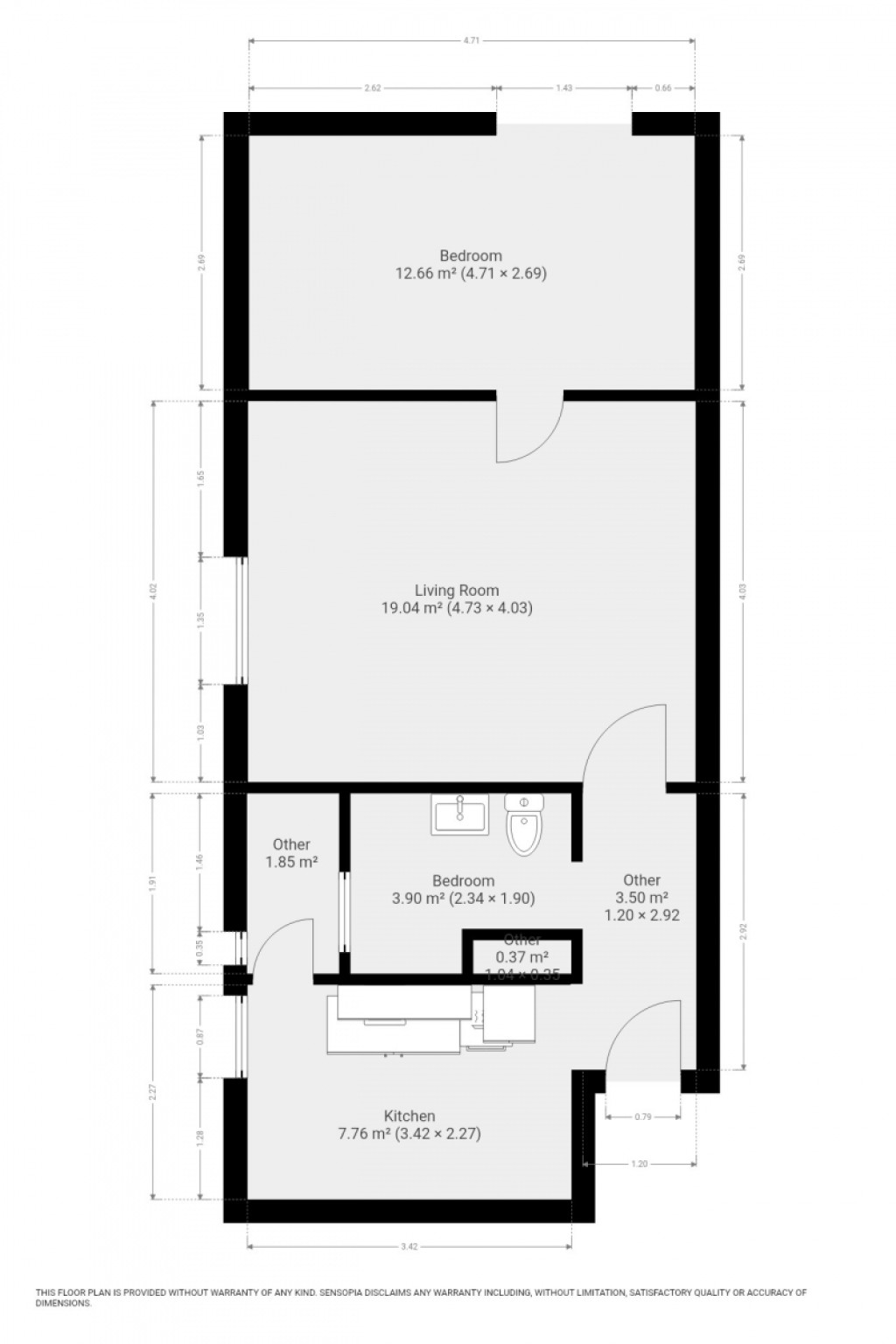
Pécsen, a Pákolitz utcában, 3 emeletes tégla társasház 2. emeletén, 49 m?-es, jó állapotú lakás eladó.Az ingatlan 2 szobás, praktikus elrendezésű: a tágas nappaliból nyílik a hálószoba, emellett külön konyha, fürdőszoba és előszoba is rendelkezésre áll. A lakás kifejezetten világos, ablakai jó fényviszonyokat biztosítanak.
A nyílászárók korszerű, hőszigetelt műanyag ablakokra lettek cserélve, redőnnyel és szúnyoghálóval felszerelve. A fűtésről gázkonvektorok gondoskodnak. A szobákban szép állapotú, valódi fa parketta található, ami kellemes hangulatot ad a lakásnak.
Az ingatlan tehermentes, a teljes vételár megfizetését követően azonnal birtokba vehető.
Főbb jellemzők:
? 49 m?
? 2. emelet
? tégla társasház
? 2 szoba
? világos lakás
? külön konyha
? műanyag nyílászárók
? redőny, szúnyogháló
? gázkonvektoros fűtés
? tehermentes
? azonnal birtokba vehető
Hívjon, tekintse meg és tegyen egy ajánlatot!