Pécs, Egyetemváros, Egyetemváros
-
Kínálati ár: 43 900 000 Ft
Kalkulált ár: 120 937 Є -
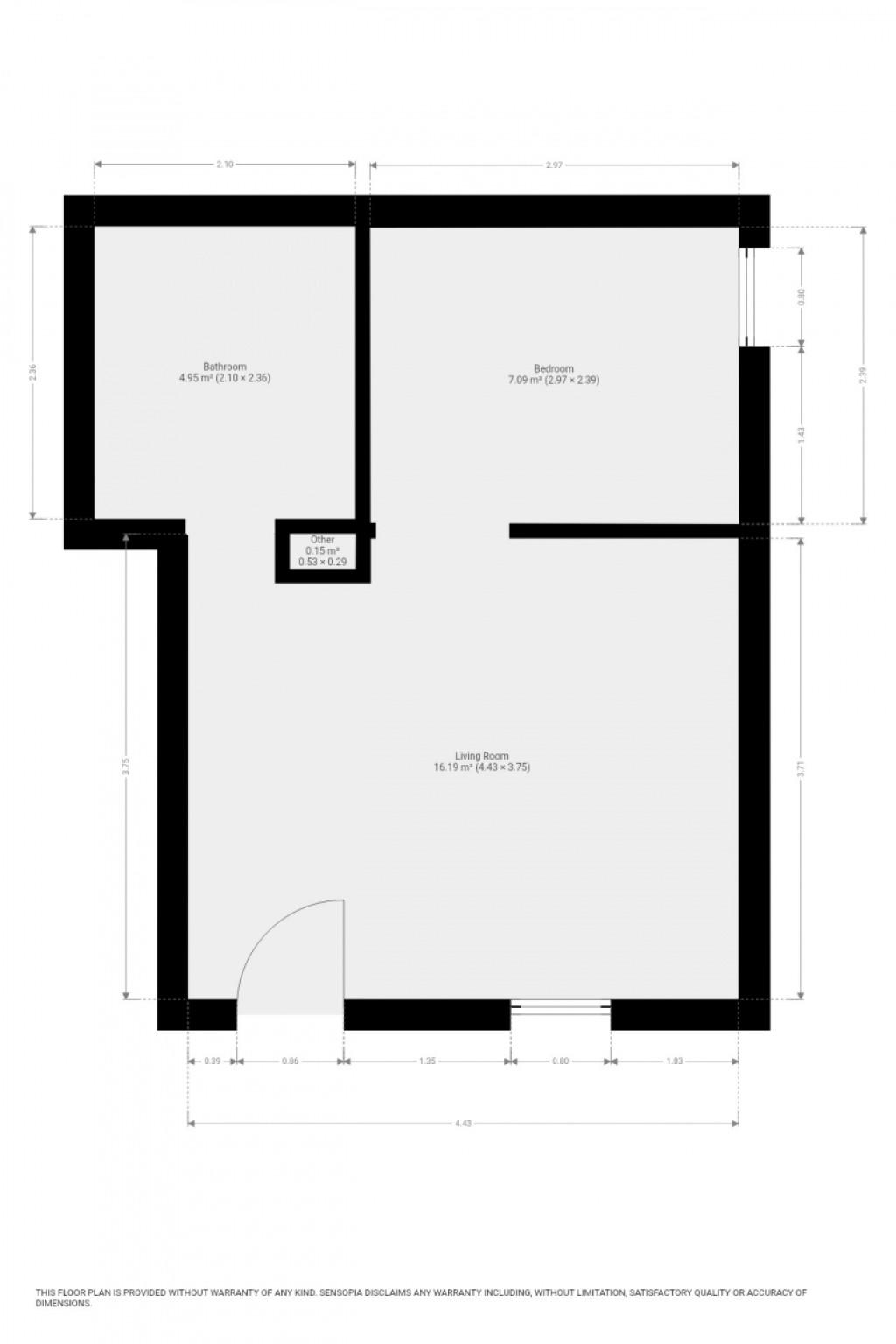
33 m2
Alapterület
-
1
Szobaszám
- Alapterület 33 m2
- Telekterület -
- Szobaszám 1
- Web www.ingatlantajolo.hu/9328649
- Négyzetméter ár 1 330 303 Ft/m2
- Értékesítés típusa Eladó / Kínál
- Kategória Lakás
- Típus Téglalakás
- Emelet földszint
- Állapot Felújított
- Fűtés Házközponti fűtés egyedi méréssel
- CSOK igénybe vehető nem
- Kilátás nincs megadva
- Tájolás nincs megadva
- Ingatlan komfort nincs megadva
- Parkolási lehetőség nincs megadva
- Építőanyag nincs megadva
- Bútorozott nincs megadva
- Akadálymentesített nincs megadva
- Erkély, terasz nincs megadva
- Kert kapcsolat nincs megadva
- Klíma nem
- Szigetelt nem
- Havi rezsiköltség nincs megadva
- Lakásbiztosítás nincs megadva
- Kábelszolgáltató nincs megadva
- Elektromos autó töltés nincs megadva
Energetikai besorolás:
Az ingatlan leírása
Kompakt, modern lakás prémium felújítással - ideális befektetés!Pécs egyik legjobban kiadható részén, az Egyetemváros és a Belváros között elérhető ez a 32,5 m2-es, amerikai konyhás nappali + külön hálószobás tégla lakás, amely teljes megújuláson esik át.
A lakás kialakítása kifejezetten praktikus: a nappali-konyha egy jól használható, világos életteret biztosít, míg a külön nyíló hálószoba növeli a komfortot és a kiadhatóságot. Kis alapterület, mégis jól élhető tér.
A fűtésről házközponti rendszer gondoskodik egyedi mérőkkel, ami alacsony fenntartási költségeket eredményez.
A felújítás során az ingatlan teljesen új arculatot kap:
- korszerű nyílászárók és beltéri ajtók
- teljes gépészeti csere (víz-, villany-, fűtésrendszer)
- új burkolatok és modern szaniterek
- gépesített konyhabútor és beépített megoldások
- elektromos alumínium redőnyök szúnyoghálóval
- hűtő-fűtő klíma
- friss, igényes belső terek
A kivitelezés folyamatban van, rövid határidőn belül költözhető.
A lakáshoz tartozik egy felújított alagsori tároló, amely külön megvásárolható +1,5 M Ft-ért.
(A KÉPEK REFERENCIA FOTÓK.)
Ha egy biztosan kiadható, modern kis lakást keres kiváló elhelyezkedéssel, ezt érdemes megnézni.