Pécs, Egyetemváros, Egyetemváros
-
Kínálati ár: 62 900 000 Ft
Kalkulált ár: 173 278 Є -
52 m2
Alapterület
-
2
Szobaszám
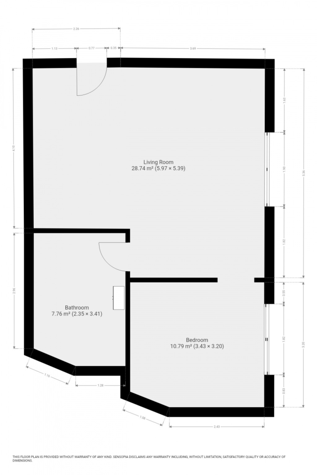
- Alapterület 52 m2
- Telekterület -
- Szobaszám 2
- Web www.ingatlantajolo.hu/9328647
- Négyzetméter ár 1 209 615 Ft/m2
- Értékesítés típusa Eladó / Kínál
- Kategória Lakás
- Típus Téglalakás
- Emelet földszint
- Állapot Felújított
- Fűtés Házközponti fűtés egyedi méréssel
- CSOK igénybe vehető nem
- Kilátás nincs megadva
- Tájolás nincs megadva
- Ingatlan komfort nincs megadva
- Parkolási lehetőség nincs megadva
- Építőanyag nincs megadva
- Bútorozott nincs megadva
- Akadálymentesített nincs megadva
- Erkély, terasz nincs megadva
- Kert kapcsolat nincs megadva
- Klíma nem
- Szigetelt nem
- Havi rezsiköltség nincs megadva
- Lakásbiztosítás nincs megadva
- Kábelszolgáltató nincs megadva
- Elektromos autó töltés nincs megadva
Energetikai besorolás:
Az ingatlan leírása
Modern, azonnal kiadható lakás prémium felújítással ? kiváló lokációbanPécs egyik legjobb adottságú részén, az Egyetemváros és a Belváros között kínálok megvételre egy 52 m?-es, amerikai konyhás nappali + külön hálószobás, téglaépítésű lakást, amely teljes körű megújuláson esik át.
A lakás elosztása élhető és jól használható: a tágas nappali-konyha tér kényelmes központi életteret ad, míg a külön nyíló hálószoba nyugodt pihenést biztosít. Mérete és elhelyezkedése miatt saját célra és befektetésnek is egyaránt ideális választás.
A fűtést házközponti gázkazán biztosítja, egyedi fogyasztásméréssel, ami gazdaságos fenntartást tesz lehetővé.
A felújítás során az ingatlan gyakorlatilag teljesen újjászületik:
? korszerű nyílászárók és beltéri ajtók kerülnek beépítésre
? teljes gépészeti megújítás (víz-, villany- és fűtésrendszer)
? igényes burkolatok, új szaniterek
? modern, gépesített konyha és beépített bútorok
? elektromos alumínium redőnyök szúnyoghálóval
? hűtő-fűtő klíma
? friss, letisztult belső kialakítás
A kivitelezés folyamatban van, a lakás rövid időn belül költözhető állapotba kerül.
Az ingatlanhoz tartozik egy 13 m?-es, felújított alagsori tároló, amely külön megvásárolható +2,5 M Ft-ért.
(A KÉPEK REFERENCIA FOTÓK.)
Ha egy értékálló, könnyen kiadható, modern lakást keres frekventált környezetben, ezt érdemes megnézni.