Komló
-
Kínálati ár: 11 900 000 Ft
Kalkulált ár: 30 280 Є -
53 m2
Alapterület
-
2
Szobaszám
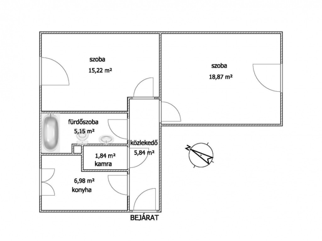
- Alapterület 53 m2
- Telekterület -
- Szobaszám 2
- Web www.ingatlantajolo.hu/9289178
- Négyzetméter ár 224 528 Ft/m2
- Értékesítés típusa Eladó / Kínál
- Kategória Lakás
- Típus Téglalakás
- Emelet 2.
- Állapot Felújítandó
- Fűtés Egyéb fűtés
- CSOK igénybe vehető nem
- Kilátás nincs megadva
- Tájolás nincs megadva
- Ingatlan komfort nincs megadva
- Parkolási lehetőség nincs megadva
- Építőanyag nincs megadva
- Bútorozott nincs megadva
- Akadálymentesített nincs megadva
- Erkély, terasz nincs megadva
- Kert kapcsolat nincs megadva
- Klíma nem
- Szigetelt nem
- Havi rezsiköltség nincs megadva
- Lakásbiztosítás nincs megadva
- Kábelszolgáltató nincs megadva
- Elektromos autó töltés nincs megadva
Energetikai besorolás:
Ez a hirdetés megfelelhet a FIX 3%-os programnak. Tudj meg többet a részletekről itt.
Az ingatlan leírása
Komlón, a Vörösmarty utcában eladó egy tégla építésű társasház második emeletén elhelyezkedő, 2 külön nyíló szobás, 53 m2 -es, felújítandó lakás!Nyílászárói már műanyagok beleértve a bejárati ajtót is, ezen felül a konyha és fürdőszoba felújítandó.
Fűtését egy vegyes tüzelésű kazán biztosítja radiátorokkal, fa tároló a pince szinten található.
Már 4 éve ugyanaz az albérlő lakja, aki szívesen maradna, így tökéletes befektetés lehet az új tulajdonosa számára is!
Amennyiben felkeltette érdeklődését, keressen bizalommal!