Komárom, Szőny
-
Kínálati ár: 35 900 000 Ft
Kalkulált ár: 91 349 Є -
49 m2
Alapterület
-
3
Szobaszám
- Alapterület 49 m2
- Telekterület -
- Szobaszám 3
- Web www.ingatlantajolo.hu/9273056
- Négyzetméter ár 732 653 Ft/m2
- Értékesítés típusa Eladó / Kínál
- Kategória Lakás
- Típus Téglalakás
- Fűtés Távfűtés egyedi méréssel
- Építés éve 1970
- CSOK igénybe vehető nem
- Kilátás nincs megadva
- Tájolás nincs megadva
- Ingatlan komfort nincs megadva
- Parkolási lehetőség nincs megadva
- Építőanyag nincs megadva
- Bútorozott nincs megadva
- Akadálymentesített nincs megadva
- Erkély, terasz nincs megadva
- Kert kapcsolat nincs megadva
- Klíma nem
- Szigetelt nem
- Havi rezsiköltség nincs megadva
- Lakásbiztosítás nincs megadva
- Kábelszolgáltató nincs megadva
- Elektromos autó töltés nincs megadva
Energetikai besorolás:
Ez a hirdetés megfelelhet a FIX 3%-os programnak. Tudj meg többet a részletekről itt.
Az ingatlan leírása
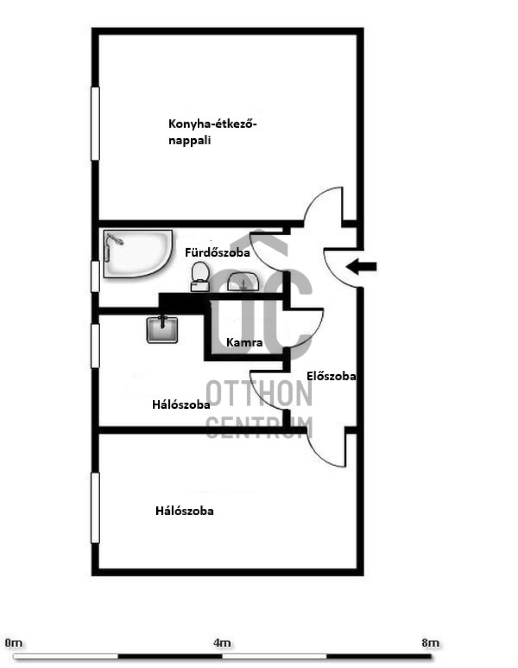
Komárom Molaj-lakótelepen eladó egy 3szobássá alakított magasföldszinti lakás.A lakás jellemzői:
- 49nm alapterület.
- 3 különnyíló szobával rendelkezik, mivel a konyhából hálószobát alakítottak ki.
- Villanyvezetékeket részleges kicserélték.
- Műanyag ablakokkal rendelkezik.
- Burkolatok előszobában, fürdőszobában járólap, szobákban linóleum és laminált parketta.
- A fűtés és a melegvíz egyéni órákkal mért távhős, termosztáttal vezérelhető.
- A környék igazán csendes, kimondottan zöldövezeti. A társasház mellett park és jól felszerelt játszótér található.
További információért várom hívását!