Komárom
-
Kínálati ár: 54 762 000 Ft
Kalkulált ár: 153 395 Є -
53 m2
Alapterület
-
2
Szobaszám
- Alapterület 53 m2
- Telekterület -
- Szobaszám 2
- Web www.ingatlantajolo.hu/9238986
- Négyzetméter ár 1 033 245 Ft/m2
- Értékesítés típusa Eladó / Kínál
- Kategória Lakás
- Típus Téglalakás
- Emelet 1.
- Állapot Új építésű
- Fűtés Egyéb fűtés
- Építés éve 2013
- CSOK igénybe vehető nem
- Kilátás nincs megadva
- Tájolás nincs megadva
- Ingatlan komfort nincs megadva
- Parkolási lehetőség nincs megadva
- Építőanyag nincs megadva
- Bútorozott nincs megadva
- Akadálymentesített nincs megadva
- Erkély, terasz nincs megadva
- Kert kapcsolat nincs megadva
- Klíma nem
- Szigetelt nem
- Havi rezsiköltség nincs megadva
- Lakásbiztosítás nincs megadva
- Kábelszolgáltató nincs megadva
- Elektromos autó töltés nincs megadva
Energetikai besorolás:
Ez a hirdetés megfelelhet a FIX 3%-os programnak. Tudj meg többet a részletekről itt.
Az ingatlan leírása
ÚJ ÉPÍTÉSŰ, MODERN OTTHONOK KOMÁROM LÁTVÁNYOSAN FEJLŐDŐ, KEDVELT RÉSZÉN – ERKÉLLYEL, SAJÁT TÁROLÓVAL ÉS PARKOLÓVAL!KULCSRAKÉSZ ÁTADÁS: 2025 ŐSZÉN
Ha minőségi otthont keresel, vagy biztos befektetésben gondolkodsz, ezt a lehetőséget nem érdemes kihagynod!
Miért válaszd ezt a projektet?
- Gazdaságos fenntartás – modern hőszivattyús fűtési és hűtési rendszer
- Korszerű technológia – minőségi építőanyagok és 3 rétegű üvegezésű nyílászárók
- Tökéletes elhelyezkedés – közel a Duna-parthoz, a Csillag erődhöz és a termálfürdőhöz
- Kiváló közlekedés – pár perc a városközpont
A társasházról:
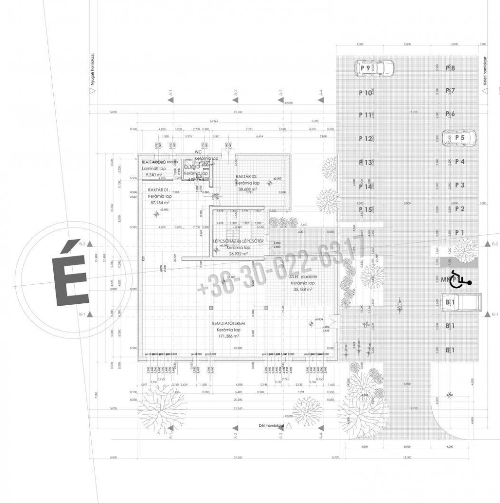
- 3 emeletes, 15 lakásos modern, zárt épület
- A földszinten üzlethelyiség
- Minden lakáshoz erkély, saját tároló és parkoló tartozik
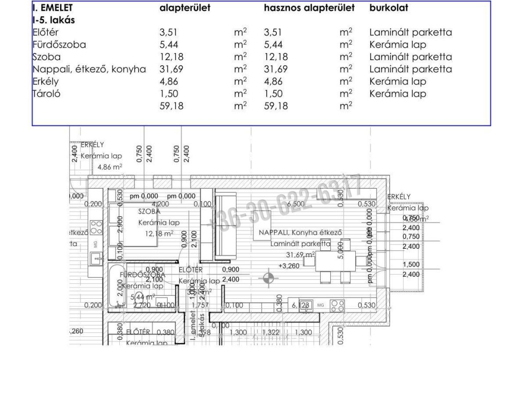
I. emelet, 5. lakás:
➡ Alapterület: 52,82 m² – 47.538.000 Ft
➡ Erkély: 4,86 m² – 4.374.000 Ft
➡ Tároló: 1,5 m² – 1.350.000 Ft
➡ Kültéri parkoló: 1.500.000 Ft
Bruttó összesen: 54.762.000 Ft
Kulcsrakész műszaki tartalom:
Szerkezet és falak:
- 38 cm égetett kerámia falazóelem
- Homlokzati szigetelés – DRYVIT rendszer CEMIX vakolattal
- Válaszfalak: 10 cm-es POROTHERM válaszfallap
- Lakáselválasztó fal: 20 cm-es SILKA hanggátló fal
Nyílászárók:
- Műanyag profilrendszerű ablakok és erkélyajtók – 3 rétegű üvegezéssel (REHAU)
- Árnyékolástechnika
Belső ajtók:
- Furatolt faforgácslap ajtók átfogótokkal, festett kivitelben
Felületképzés:
- Vakolt, glettelt falak, 2 rétegű diszperziós festéssel
- Fürdőszoba teljes fali csempézéssel
Gépészet:
- Lakásonként levegő-víz hőszivattyús rendszer – padlófűtés és fan-coilos hűtés
- Áramellátás: 1×32 A + H tarifa a hőszivattyúnak
Villamoshálózat:
- Kapcsolók és dugaljak: Schneider típusú szerelvények
- Lámpa előkészítés biztosított
Gyengeáramú szerelés:
- Kaputelefon rendszer
- TV és internet hálózat (PICK-UP Kft. szolgáltató)
Beépített szaniterek:
- Fürdőszoba: Alföldi fali WC, Como mosdó (60 cm) + szekrény, 170×75 cm fürdőkád, Kludi csaptelepek
- 1 db törölközőszárítós elektromos radiátor
- Konyhabútor opcionálisan rendelhető
Beépített burkolatok ára:
Fürdő + WC csempe: 5.500 Ft + ÁFA/m²
Járólap: 5.500 Ft + ÁFA/m²
Szobák és nappali laminált padló: 3.900 Ft + ÁFA/m²
Erkély: fagyálló kerámia
Finanszírozás és ügyintézés:
INGYENES hitelszűrés és tanácsadás – 18 bank ajánlatából választhatod ki a legjobbat!
CSOK Plusz, kamattámogatott hitelek és Babaváró hitel igényelhető
Teljes körű jogi képviselet
Ne dönts, amíg ezt az ingatlant nem láttad!
Érdeklődj most és foglald le álmaid otthonát! Nagy Edit