Hajdúszoboszló
-
Kínálati ár: 55 926 000 Ft
Kalkulált ár: 153 643 Є -
38 m2
Alapterület
-
2
Szobaszám
- Alapterület 38 m2
- Telekterület -
- Szobaszám 2
- Web www.ingatlantajolo.hu/9320311
- Négyzetméter ár 1 471 737 Ft/m2
- Értékesítés típusa Eladó / Kínál
- Kategória Lakás
- Típus Téglalakás
- Emelet 1.
- Állapot Új építésű
- CSOK igénybe vehető nem
- Kilátás nincs megadva
- Tájolás nincs megadva
- Ingatlan komfort nincs megadva
- Parkolási lehetőség nincs megadva
- Építőanyag nincs megadva
- Bútorozott nincs megadva
- Akadálymentesített nincs megadva
- Erkély, terasz nincs megadva
- Kert kapcsolat nincs megadva
- Klíma nem
- Szigetelt nem
- Havi rezsiköltség nincs megadva
- Lakásbiztosítás nincs megadva
- Kábelszolgáltató nincs megadva
- Elektromos autó töltés nincs megadva
Energetikai besorolás:
Ez a hirdetés megfelelhet a FIX 3%-os programnak. Tudj meg többet a részletekről itt.
Az ingatlan leírása
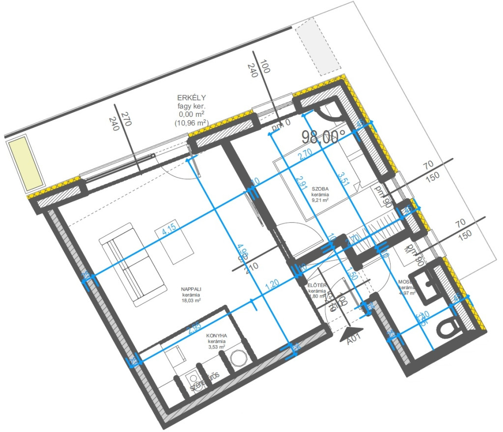
Hajdúszoboszló-Fürdőnegyedben, a Szurmai utcán, 2027. májusi átadással, zárt udvaros, 4 lakásos társasházban, 1. emeleti, 38 m2-es, amerikai konyhás nappali+ 1 szobás, új építésű, erkélyes, tégla lakás, magas műszaki tartalommal, eladó!Jellemzői:
- Csendes, aszfaltozott utcában helyezkedik el
- Porotherm 30 N+F tégla falazat
- 15 cm Austrotherm hőszigetelés a homlokzati falakon, mely biztosítja az alacsony fűtési költséget
- A zárófödémben 30 cm vastagságú Rockwool Multirock kőzetgyapot hőszigetelés
- 12 cm Austrotherm AT- N150, lépésálló aljzatszigetelés
- Fűtése gázcirkó
- Padlófűtés
- Hő- és hangszigetelt, 3 rétegű, 7 légkamrás, REHAU műanyag nyílászárók
- Választható burkolatok: Kerámia burkolat 5000 Ft/m2-ig, laminált parketta 5000 Ft/m2-ig a vételárban
- 22 m2-es amerikai konyha nappali
- 11 m2-es erkély
- 73 m2-es közös kert
- Garázs (+10 M Ft)
- Nyitott beálló (+4 M Ft)
- Térkövezés
- Kaputelefon
- Kerítés szintén a vételárban
- Tömegközlekedés kiváló
- Fürdőhöz, óvodához, üzletekhez, orvosi rendelőhöz, patikához, éttermekhez közel helyezkedik el!
- Várható befejezés: 2027. május
Babaváró, CSOK Plusz, illetékmentesség igénybe vehető!
Irányár: 55 926 000 Ft
A01