Győr, Szitásdomb
-
Kínálati ár: 68 710 950 Ft
Jelenlegi ár: 68 710 950 Ft
Korábbi ár: 64 199 625 Ft
Kalkulált ár: 174 837 Є64 199 625 Ft
-
63 m2
Alapterület
-
3
Szobaszám
- Alapterület 63 m2
- Telekterület -
- Szobaszám 3
- Web www.ingatlantajolo.hu/9271392
- Négyzetméter ár 1 090 650 Ft/m2
- Értékesítés típusa Eladó / Kínál
- Kategória Lakás
- Típus Téglalakás
- Emelet 1.
- Állapot Új építésű
- CSOK igénybe vehető nincs megadva
- Kilátás nincs megadva
- Tájolás nincs megadva
- Ingatlan komfort nincs megadva
- Parkolási lehetőség nincs megadva
- Építőanyag nincs megadva
- Bútorozott nincs megadva
- Akadálymentesített nincs megadva
- Erkély, terasz nincs megadva
- Kert kapcsolat nincs megadva
- Klíma nincs megadva
- Szigetelt nincs megadva
- Havi rezsiköltség nincs megadva
- Lakásbiztosítás nincs megadva
- Kábelszolgáltató nincs megadva
- Elektromos autó töltés nincs megadva
Energetikai besorolás:
Ez a hirdetés megfelelhet a FIX 3%-os programnak. Tudj meg többet a részletekről itt.
Az ingatlan leírása
Azonnal birtokba vehető lakás eladó!Győr belvárosától 10 perces autóútra, Szitásdomb új építésű részén 25 lakásos társasházban nappali + 2 szobás lakás eladó.
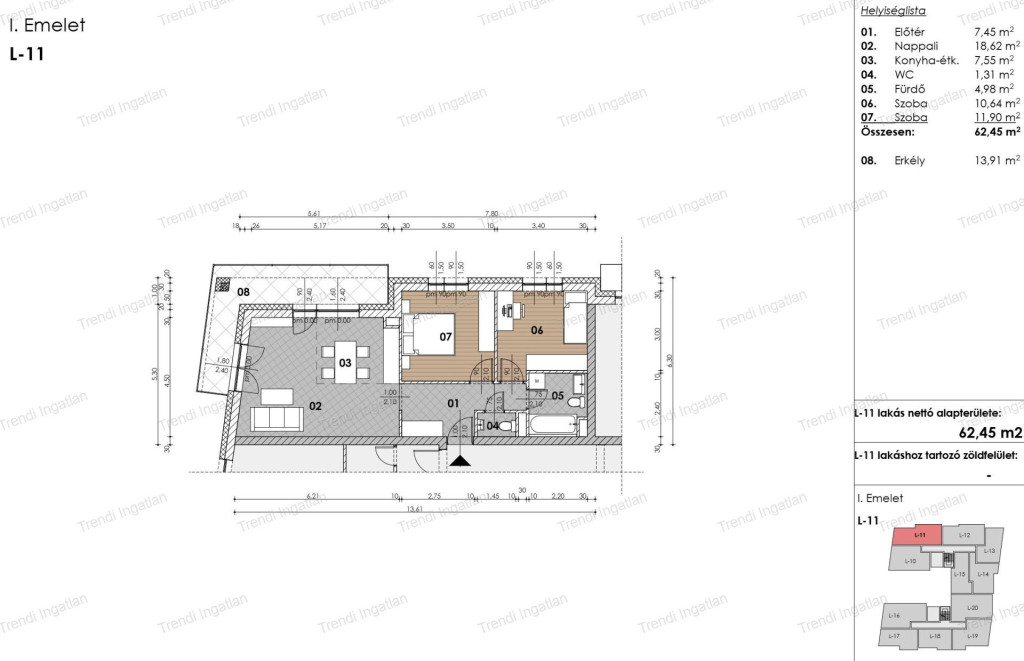
Az 1. emeleten található 62,45 m²-es lakásban amerikai konyhás nappali, 2 szoba, fürdőszoba, külön WC, közlekedő, előtér kerül kialakításra. Nappaliból 13,91 m²-es erkély nyílik.
A lakás fűtéskész ára: 68.710.950 Ft. Kulcsrakész befejezés kérhető.
Gépkocsibeálló ára: 1.000.000 Ft + Áfa/db. A lakáshoz 2 db gépkocsibeállót kell vásárolni.
A tárasház 30 cm-es falazóelemből, 20 cm-es homlokzati szigeteléssel épült. A műanyag, hang-és hőszigetelt, Internorm nyílászárók kívül antracit színűek. Az ár tartalmazza az alumínium elektromos redőny előkészítését és a redőny dobok beépítését. Az ingatlan hűtése/fűtése hőszivattyúval történik, egyedi hőmennyiségmérővel és hőmérséklet szabályozó termosztáttal, így nincs szükség klímára. Melegvíz előállítás is hőszivattyúval megoldott. A társasház udvaran térkövezett gépkocsibeállók kerültek kialakításra.
Tárasház Szitásdomb új kialakítású részén épült. A közelben boltok, pékség, babauszoda, szépségszalon, játszótér található. A környéken új és újszerű családi házak, társasházak épültek/épülnek. Győr-Belvárosa, az Ipari Park, az AUDI, az autópálya elkerülő könnyen elérhető.
Bővebb információkért forduljon hozzám bizalommal.
Hétköznap és hétvégén is várom hívását!
Díjmentes, bankfüggetlen hitelügyintézéssel állunk rendelkezésére.
A hirdetésben feltüntetett képek illusztrációk.