Budapest XI. kerület, Lágymányos, Lágymányos
-
Kínálati ár: 74 900 000 Ft
Kalkulált ár: 190 585 Є -
51 m2
Alapterület
-
1 + 1 fél
Szobaszám
- Alapterület 51 m2
- Telekterület -
- Szobaszám 1 + 1 fél
- Web www.ingatlantajolo.hu/9241497
- Négyzetméter ár 1 468 627 Ft/m2
- Értékesítés típusa Eladó / Kínál
- Kategória Lakás
- Típus Téglalakás
- Állapot Átlagos
- Fűtés Gáz (konvektor)
- Szintek száma 5
- Építés éve 1908
- CSOK igénybe vehető nem
- Kilátás Utcai
- Tájolás Dél
- Ingatlan komfort Összkomfortos
- Parkolási lehetőség Utcán, közterületen
- Építőanyag Tégla
- Bútorozott nincs megadva
- Akadálymentesített nincs megadva
- Erkély, terasz nincs megadva
- Kert kapcsolat nincs megadva
- Klíma nem
- Szigetelt nem
- Havi rezsiköltség nincs megadva
- Lakásbiztosítás nincs megadva
- Kábelszolgáltató nincs megadva
- Elektromos autó töltés nincs megadva
Energetikai besorolás:
Ez a hirdetés megfelelhet a FIX 3%-os programnak. Tudj meg többet a részletekről itt.
Az ingatlan leírása
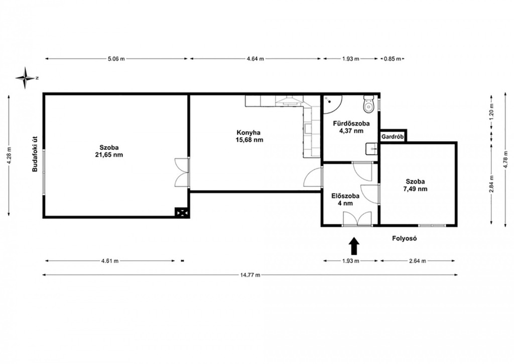
Eladó egy 51 m²-es, kétkülön bejáratú szobával rendelkező lakás Budapest XI. kerületében, a Budafoki úton, egy század elején épült társasházban.A ház 1908-ban épült, klasszikus, körfolyosós kialakítású épület, állapota átlagos, ugyanakkor jól tükrözi a korra jellemző városi hangulatot. A lakás a 2. emeleten helyezkedik el, mely lifttel is megközelíthető.
A lakásba lépve azonnal érzékelhető a kellemesen tágas térérzet, amelyet a 3,4 méteres belmagasság határoz meg. A magas belmagasság levegős, nyugodt atmoszférát teremt, miközben lehetőséget ad a tér finom újragondolására, akár galéria kialakításával is.
Az elrendezés kiegyensúlyozott és átgondolt, a déli tájolású, utcai nézetű nappali világos, elegáns élettérként szolgál a mindennapokhoz, míg a belső udvarra néző hálószoba csendesebb, intimebb környezetet biztosít a pihenéshez. A különnyíló szobák jól elkülöníthető, harmonikusan használható tereket hoznak létre.
A nappali arányai lehetővé teszik egy diszkréten elkülöníthető home office kialakítását, így a munkavégzés kényelmesen illeszkedik a lakás mindennapi használatához, anélkül hogy megbontaná az élettér harmóniáját.
A konyha külön helyiségben kapott helyet, praktikus kialakításának köszönhetően nemcsak főzésre alkalmas, hanem egy kényelmes étkezőasztal is elfér benne.
A fürdőszoba sarokkádas kialakítású, amely egy hosszú nap végén valódi felüdülést kínál.
Műszaki:
Az ablakok fa nyílászárókkal rendelkeznek, a lakás melegéről a nappaliban és a hálószobában gázkonvektor,
a fürdőszobában és az előszobában padlófűtés gondoskodik.
A fűtés átalányköltsége körülbelül 7.000 Ft havonta, a közös költség 22.575 Ft.
Környék és közlekedés:
A lakás Budapest XI. kerületének Lágymányos városrészében helyezkedik el, a Budafoki út Baranyai utca sarkánál, kiváló infrastruktúrával. A környék különösen kedvelt fiatalok és egyetemisták körében, mivel több felsőoktatási intézmény található a közelben, valamint a mindennapi élethez szükséges üzletek és szolgáltatások könnyen elérhetők. Az Allee Bevásárlóközpont gyorsan és kényelmesen megközelíthető, mindössze egy villamosmegállónyi távolságra található.
A közlekedési lehetőségek kiemelkedőek, villamos- és buszjáratok néhány perc sétára találhatók, így Budapest különböző pontjai gyorsan elérhetők. A Móricz Zsigmond körtér 900 méter távolságban van, ahol az M4-es metró, valamint számos további járat biztosít gyors kapcsolatot a belváros és a város más részei felé.
Az ingatlan azonnal birtokba vehető, per-, teher- és igénymentes!
Ez az ingatlan ideális választás első otthont kereső fiataloknak, fiatal pároknak, valamint befektetési célra is, mivel elrendezése és elhelyezkedése miatt könnyen és jól kiadható.
Adatkezelés
Ezúton tájékoztatjuk, hogy Ön mint érdeklődő, a hirdetésben megjelölt telefonszám felhívásával hozzájárul személyes adatai – így különösen neve és telefonszáma -, a hirdetést feladó FORTISElit Ingatlan Kft. általi - biztonságos és körültekintő - kezeléséhez, nyilvántartásához. E körben, keresse a FORTISELIT ingatlaniroda weboldalát adatkezelési tájékoztatót.
We hereby inform you that You as an interested party, by calling the phone number mentioned in the advertisement, contribute to be your personal data – especially your name and phone number – handled and recorded safe and circumspectively by FORTISElit Ingatlan Kft as advertiser. Hereby, you can learn our Privacy Policy.
Finanszírozás:
Adatbázisunkban további több ezer ingatlanból választhat, hívjon bizalommal, hogy megtaláljuk a legmegfelelőbbet!
Hitelre van szüksége? Teljes körű és díjmentes hitel-ügyintézéssel, biztosításkötéssel áll rendelkezésére szakértő kollégánk. Kérje személyre szabott ajánlatunkat!