Budapest II. kerület, Országút, Országút
-
Kínálati ár: 154 900 000 Ft
Kalkulált ár: 431 476 Є -
84 m2
Alapterület
-
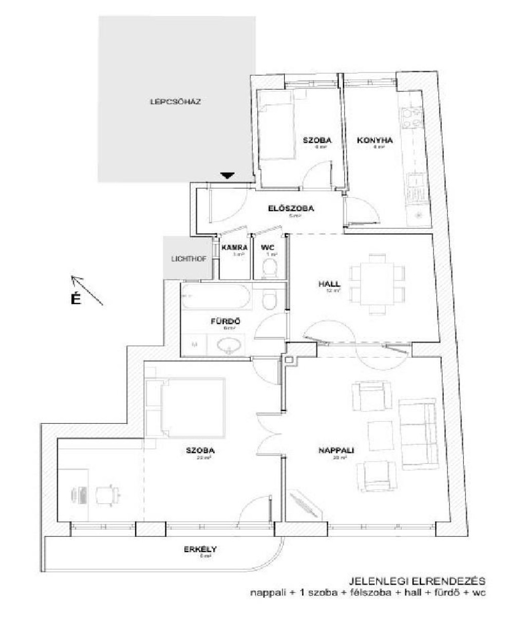
2 + 1 fél
Szobaszám
- Alapterület 84 m2
- Telekterület -
- Szobaszám 2 + 1 fél
- Web www.ingatlantajolo.hu/9308283
- Négyzetméter ár 1 844 048 Ft/m2
- Értékesítés típusa Eladó / Kínál
- Kategória Lakás
- Típus Téglalakás
- Emelet 2.
- Állapot Átlagos
- Fűtés Házközponti
- Építés éve 1940
- CSOK igénybe vehető nem
- Kilátás nincs megadva
- Tájolás nincs megadva
- Ingatlan komfort nincs megadva
- Parkolási lehetőség nincs megadva
- Építőanyag nincs megadva
- Bútorozott nincs megadva
- Akadálymentesített nincs megadva
- Erkély, terasz nincs megadva
- Kert kapcsolat nincs megadva
- Klíma nem
- Szigetelt nem
- Havi rezsiköltség nincs megadva
- Lakásbiztosítás nincs megadva
- Kábelszolgáltató nincs megadva
- Elektromos autó töltés nincs megadva
Energetikai besorolás:
Az ingatlan leírása
Budai életérzés a Rózsadomb lábánál. Tágas, erkélyes családi otthon a II. kerületbenEladó egy különleges hangulatú, Bauhaus stílusú társasház legfelső szintjén található lakás a II. kerületi Kút utcában, a budai oldal egyik legélhetőbb, legkeresettebb részén.
Ez az otthon tökéletes választás mindazok számára, akik szeretnék ötvözni a városi kényelmet a nyugodt, zöld budai környezettel, és ideális lehet családok számára, akik hosszú távra terveznek.
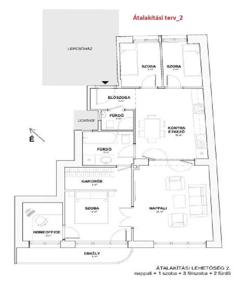
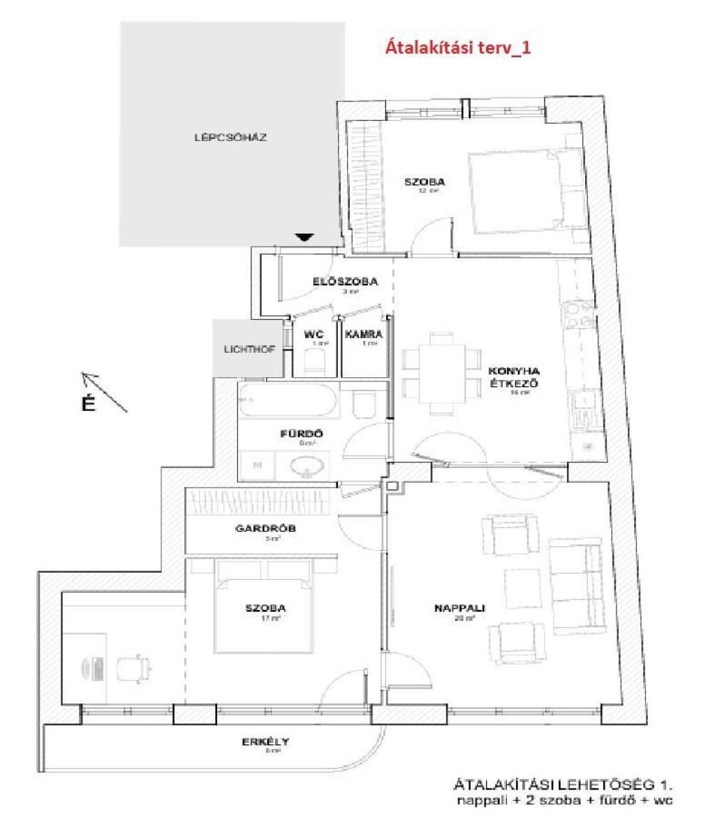
Főbb jellemzők: 84 nm alapterület, 2 + fél szoba + hall (könnyen alakítható akár 3?4 szobássá), erkélyes, világos terek, 2,9 m belmagasság, két tájolás (DNY,ÉK) egész napos természetes fény, legfelső szint, nincs felső szomszéd, saját 6 nm-es pincetároló, közös, zöld belső kert használata.
Budai életérzés, minden karnyújtásnyira. A lakás elhelyezkedése kivételes: pár perc sétával elérhető minden, ami a kényelmes mindennapokhoz szükséges. miközben az utca csendes, nyugodt, átmenő forgalomtól szinte mentes. A közelben: Margit híd, Széll Kálmán tér, Mammut bevásárlóközpont, Fény utcai piac, Millenáris park, Margit-sziget.
Ez a környék tökéletes egyensúlyt teremt a városi pezsgés és a természet közelsége között.
Családra tervezve: a lakás elrendezése és alakíthatósága miatt ideális választás családoknak. Külön nyíló, jól szeparálható szobák, könnyen bővíthető szobaszám (akár 3 vagy 4 szobára), világos, élhető közösségi terek, biztonságos, barátságos lakóközösség
A nagy ablakoknak köszönhetően akár több fürdőszoba kialakítása is megoldható, így a lakás hosszú távon is kényelmes életteret biztosít.
Épület: 1940-es években épült, Bauhaus jellegű társasház, hőszigetelt, karbantartott állapot, 12 lakásos, csendes közösség, nagy, zöld belső kert, felújított, világos lépcsőház.
Lehetőség és érték egyben: a lakás jó állapotú, igény szerint korszerűsíthető, ugyanakkor már most is otthonos és azonnal költözhető. Kiváló választás azoknak, akik saját igényeikre formálható, értékálló budai otthont keresnek.
Az energetikai tanúsítvány készítése folyamatban van, amint rendelkezésre áll, úgy azzal a hirdetés frissítésre kerül.