Balatonlelle
-
Kínálati ár: 66 784 500 Ft
Kalkulált ár: 183 979 Є -
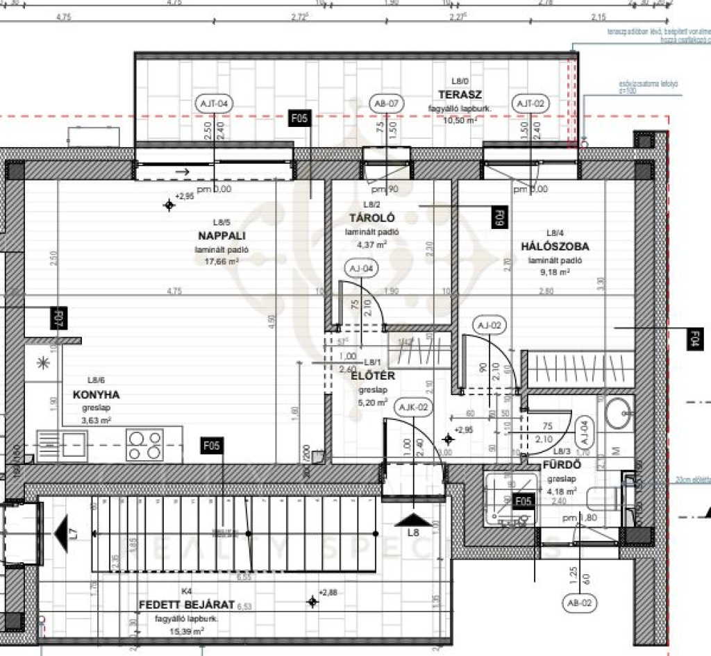
49 m2
Alapterület
-
2
Szobaszám
- Alapterület 49 m2
- Telekterület -
- Szobaszám 2
- Web www.ingatlantajolo.hu/9304058
- Négyzetméter ár 1 362 949 Ft/m2
- Értékesítés típusa Eladó / Kínál
- Kategória Lakás
- Típus Téglalakás
- Emelet 1.
- Állapot Új építésű
- Fűtés Gáz (cirkó)
- Szintek száma 3
- Építés éve 2026
- CSOK igénybe vehető nincs megadva
- Kilátás nincs megadva
- Tájolás nincs megadva
- Ingatlan komfort nincs megadva
- Parkolási lehetőség nincs megadva
- Építőanyag nincs megadva
- Bútorozott nincs megadva
- Akadálymentesített nincs megadva
- Erkély, terasz nincs megadva
- Kert kapcsolat nincs megadva
- Klíma nincs megadva
- Szigetelt nincs megadva
- Havi rezsiköltség nincs megadva
- Lakásbiztosítás nincs megadva
- Kábelszolgáltató nincs megadva
- Elektromos autó töltés nincs megadva
Energetikai besorolás:
Ez a hirdetés megfelelhet a FIX 3%-os programnak. Tudj meg többet a részletekről itt.
Az ingatlan leírása
A CITY CARTEL BALATON KÍNÁLATÁBAN:Fedezze fel a Balaton közvetlen közelségében rejlő életérzést Balatonlellén! A vízparttól és a szabadstrandtól mindössze 150 méterre épülő, exkluzív, 10 lakásos társasház ideális választás mindazok számára, akik modern, időtálló otthont vagy értékálló befektetést keresnek a magyar tenger déli partján.
Kiváló lokáció és életminőség
A társasház csendes, mégis frekventált környezetben helyezkedik el, ahonnan a Balaton-part néhány perc sétával elérhető. A közelben megtalálható minden, ami a kényelmes mindennapokhoz vagy a gondtalan pihenéshez szükséges.
Időtálló elegancia és megbízható szerkezet
Az épület a legmagasabb minőségi elvárások szerint készül: 30-as vázkerámia főfalakkal és 10-es tégla válaszfalakkal. A korszerű hőszigetelő homlokzati rendszer, valamint az esztétikus és tartós lemezfedésű tető garantálja az alacsony fenntartási költségeket és a hosszú élettartamot.
Panoráma és komfort – prémium nyílászárók
A lakások kiváló hő- és hangszigetelését 76 mm-es profilú, háromrétegű üvegezéssel ellátott nyílászárók biztosítják. Az ablakok kívül modern antracit, belül elegáns fehér kivitelben készülnek. A nappalikból nyíló emelő-toló teraszajtók nemcsak bőséges fényt engednek be, hanem harmonikusan összekapcsolják a belső tereket a terasszal. A maximális kényelemről és privát szféráról minden helyiségben elektromos redőnyök gondoskodnak.
Exkluzív megjelenés, személyre szabható enteriőr
A lakások belső kialakítása az igényességet tükrözi, miközben lehetőséget ad a leendő tulajdonosoknak saját stílusuk megvalósítására.
• Hidegburkolatok (szélfogó, fürdőszoba 210 cm magasságig): bruttó 12.000 Ft/m² értékhatárig választhatók
• Melegburkolatok (nappali, konyha, hálószobák, tárolók): bruttó 8.000 Ft/m² értékhatárig
Jövőbemutató gépészet és okosmegoldások
A lakások modern műszaki tartalommal készülnek, hogy hosszú távon is kényelmes és gazdaságos otthont biztosítsanak:
• Helyiségenként szabályozható, okostelefonról vezérelhető elektromos padlófűtés
• 2,5 kW-os split klímaberendezés a nappaliban
• Aereco higroszabályozású légbeeresztő rendszer és Helios elszívók a friss levegőért
• Teljes körű gyengeáramú előkészítés (internet, TV, okosotthon lehetőségek)
• Schneider elektromos szerelvények, egyedi mérőórák (3x16A)
Wellness-élmény a mindennapokban
A fürdőszobák modern és elegáns kialakításúak:
• Prémium zuhanykabin
• Beépített mosdós, stílusos fürdőszobabútor
• Falba épített, lebegő WC
Ez a társasház tökéletes választás mind saját célra, mind befektetésként – legyen szó nyaralóról vagy kiadásra szánt ingatlanról. Élvezze a Balaton közelségét egy korszerű, értékálló otthon kényelmében!
További kérdések esetén állok rendelkezésére a hét bármely napján.
Irodáink:
8600 Siófok, Fő tér 6. (Sió Pláza -1. szint)
8640 Fonyód, Ady Endre u. 5. (Balaton Áruház földszint)
8638 Balatonlelle, Rákóczi út 276.
Kövess minket Facebook-on is: @citycartelbalaton!