Vác, Alsóváros
-
Kínálati ár: 97 900 000 Ft
Kalkulált ár: 268 956 Є -
96 m2
Alapterület
-
600 m2
Telekterület
-
4
Szobaszám
- Alapterület 96 m2
- Telekterület 600 m2
- Szobaszám 4
- Web www.ingatlantajolo.hu/9278869
- Négyzetméter ár 1 019 792 Ft/m2
- Értékesítés típusa Eladó / Kínál
- Kategória Ház- házrész
- Típus Sorház
- Építés éve 2027
- Belső szintek nincs megadva
- Tetőtér beépíthető nem
- CSOK igénybe vehető nem
- Kilátás nincs megadva
- Tájolás nincs megadva
- Ingatlan komfort nincs megadva
- Parkolási lehetőség nincs megadva
- Építőanyag nincs megadva
- Bútorozott nincs megadva
- Akadálymentesített nincs megadva
- Erkély, terasz nincs megadva
- Klíma nem
- Szigetelt nem
- Havi rezsiköltség nincs megadva
- Lakásbiztosítás nincs megadva
- Kábelszolgáltató nincs megadva
- Elektromos autó töltés nincs megadva
Energetikai besorolás:
Ez a hirdetés megfelelhet a FIX 3%-os programnak. Tudj meg többet a részletekről itt.
Az ingatlan leírása
VÁCON a KASTÉLYLIGET LAKÓPARKBAN kínálunk eladásra ÚJ ÉPÍTÉSŰ sorházakat 2027-es átadással!A 3%-OS OTTHON START HITELRE ALKALMAS INGATLANOK!
A vásárláshoz a CSOK+ és az ILLETÉKKEDVEZMÉNY is igénybe vehető. CÉGES ÉPÍTKEZÉS !
KORSZERŰ ALACSONY ENERGIAIGÉNYŰ OTTHONOK.
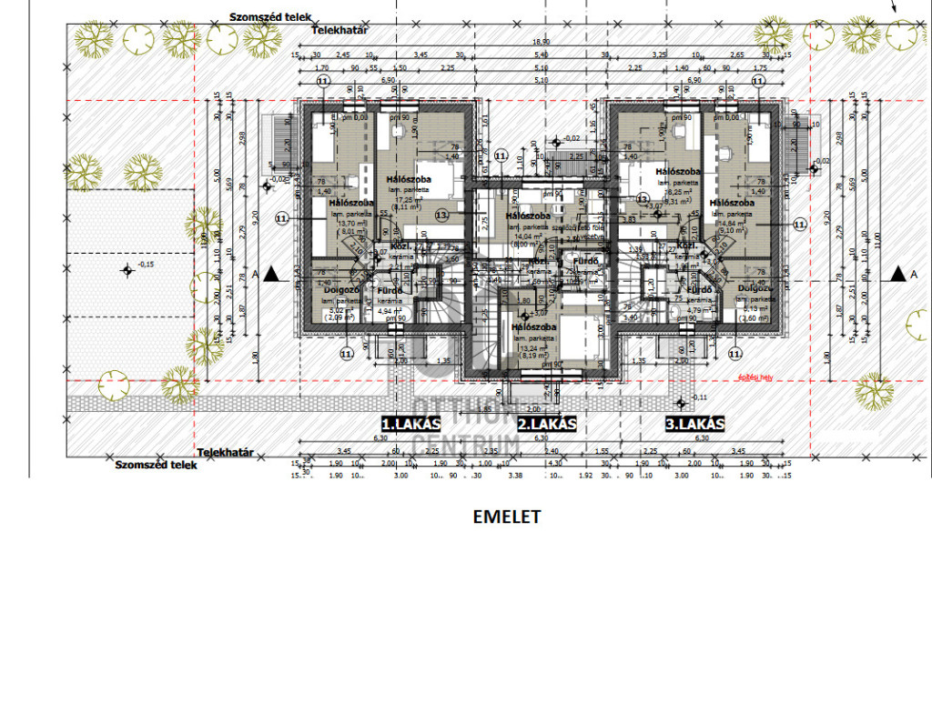
A háromlakásos sorház két szélső lakása 96-96 nm, a középső lakás pedig 73 nm alapterületű.
Minden lakáshoz külön bejárat, saját használatú változó nagyságú körbekerített kert és kocsibeálló tartozik.
A hirdetés az alaprajzon látható 1. számú utcafronti lakásra vonatkozik, melynek ára 97,9 M Ft.
A 96 nm-es belső kétszintes lakások földszintjén egy hálószoba, tároló, zuhanyzó+WC, konyha-étkező, valamint egy kertkapcsolatos nappali kapott helyet.
A tetőtérben két háló, egy dolgozó szoba , közlekedő és egy fürdő+WC található.
A jelenleg épülő 3 és 4 lakásos sorházak belső kétszintesek, 71 nm, 73 nm, 84 nm, és 96 nm-es kivitelben elérhetőek.
Választható lakások:
- 71 nm-es. Vételár :75,9-79,9 M Ft.
- 73 nm-es . Vételár: 75,9 M Ft.
- 84 nm-es. Vételár: 88,9-98,9 M Ft.
- 96 nm-es. Vételár: A belső 3. számú lakás eladási ára 99,9 MFt. Az utcafronti 1. számú lakás eladási ára 97,9 MFt.
A sorház modern stílusban praktikus elosztással lett tervezve, hogy minél élhetőbb és barátságosabb otthont biztosítson a leendő tulajdonosának és családjának.
Csendes nyugodt környék, átmenőforgalomtól mentes külvárosias környezetben, aszfaltozott úthálózattal, térkövezett járdákkal és közvilágítással.
Átgondolt tervezés, minőségi anyaghasználat és precíz kivitelezés egy megbízható referenciákkal bíró kivitelezőtől.
Műszaki paraméterek:
-Sávalapozás 60 cm szélességben. Külső falazat 30 cm-es kerámia blokk+15 cm homlokzati szigetelés
-Lakáselválasztó fal 30-as hanggátló téglából.
-Földszinten műanyag nyílászárók 3 rétegű üvegezéssel, kiegészítve beépített hőszigetelt redőnytokkal elektromos előkészítéssel.
-Hőszivattyús fűtés, a földszinten és az emeleten is padlófűtéssel.
-Elektromos és gépészeti előcsövezés a fan-coil rendszerhez.
-Opcionális lehetőség a teljes fan-coil rendszer kivitelezéséhez.
-Riasztó és kaputelefon előkészítés.
-Az elektromos hálózat 1x32A, de 3 fázisra bővíthetőségre előkészítve.
-H tarifás mérőóra igényelhető.
Közlekedés:
-Buszmegálló 5 perc sétával elérhető, ahonnan a Vác-alsóvárosi vasútállomás 3 perc
-Vác-Alsóváros-Bp Nyugati pályaudvar 29 perc vonattal
-Autóval az M2-es autóúton 20 perc alatt elérhető Budapest
Amivel segíteni tudjuk az Ön ingatlanvásárlását:
-ingyenes, bankfüggetlen hitelügyintézés
-értékbecslés
-jogi háttér
-földhivatali ügyintézés
-energetikai tanúsítvány készítése
Amennyiben a hirdetés felkeltette érdeklődését kérem forduljon hozzám bizalommal.
Projekt bemutatása
VÁCON A KASTÉLYLIGET LAKÓPARKBAN KÍNÁLUNK ELADÁSRA ÚJ ÉPÍTÉSŰ SORHÁZAKAT.
A vásárláshoz a CSOK+ és az ILLETÉKKEDVEZMÉNY is igénybe vehető.
CÉGES ÉPÍTKEZÉS!
A 71 nm-es belső kétszintes lakások földszintjén konyha, WC valamint egy kertkapcsolatos nappali-étkező kapott helyet.
A tetőtérben két háló, fürdő,+WC, és egy gardrób található.
A 600-800 nm-es telken 3 db lakás található eltérő méretű saját használatú kerttel és kocsibeállóval.
Az első ütemben megépült 16 db nagyobb méretű ikerházak már átadásra kerültek.
A második ütemben folyamatosan épülő 3 és 4 lakásos sorházak belső kétszintesek, 71 nm, 73 nm, 84 nm, és 96 nm-es kivitelben elérhetőek.
Minden lakáshoz külön bejárat, saját használatú változó nagyságú körbekerített kert és kocsibeálló tartozik.
Választható lakások:
- 71 nm-es. Földszintjén konyha, WC, étkező, kertkapcsolatos nappalival. Tetőtérben 2 háló, fürdő+WC,és gardrób.
Vételár :75,9-79,9 M Ft.
- 73 nm-es . Földszinten konyha-étkező, kertkapcsolatos nappali, tároló, fürdő+WC. Tetőtérben 2 háló , közlekedő, fürdő+WC.
Vételár: 75,9 M Ft.
- 84 nm-es. Földszinten konyha-étkező, nappali kertkapcsolattal, kamra, fürdő+WC, gardrób. Tetőtérben 3 háló, fürdő+WC, gardrób.
Vételár: 88,9-98,9 M Ft.
- 96 nm-es. Földszinten 1 háló, konyha-étkező, kertkapcsolatos nappali, fürdő+WC és tároló. Tetőtérben 2 háló, dolgozószoba, és fürdő.
Vételár: 97,9-99,9 M Ft.
A lakások modern stílusban praktikus elosztással lett tervezve, hogy minél élhetőbb és barátságosabb otthont biztosítson a leendő
tulajdonosának és családjának. Csendes nyugodt környék, átmenőforgalomtól mentes külvárosias környezetben.
Rendezett környék aszfaltozott úthálózattal, közvilágítással, térkövezett parkolóval, járdákkal.
Átgondolt tervezés, minőségi anyaghasználat és precíz kivitelezés egy megbízható referenciákkal bíró kivitelezőtől.
Műszaki paraméterek:
-Sávalapozás 60 cm szélességben. Külső falazat 30 cm-es kerámia blokk+15 cm homlokzati szigetelés
-Lakáselválasztó fal 30-as hanggátló téglából.
-Földszinten műanyag nyílászárók 3 rétegű üvegezéssel, kiegészítve beépített hőszigetelt redőnytokkal elektromos előkészítéssel.
-Hőszivattyús fűtés, a földszinten és az emeleten is padlófűtéssel.
-Elektromos és gépészeti előcsövezés a fan-coil rendszerhez.
-Opcionális lehetőség a teljes fan-coil rendszer kivitelezéséhez.
-Riasztó és kaputelefon előkészítés.
-Az elektromos hálózat 1x32A, de 3 fázisra bővíthetőségre előkészítve.
-H tarifás mérőóra.
Közlekedés:
-A buszmegálló 5 perc sétával elérhető, ahonnan a Vác-alsóvárosi vasútállomás 3 perc
-Vác-Alsóváros-Bp Nyugati pályaudvar 29 perc vonattal
-Autóval az M2-es autóúton 20 perc alatt elérhető Budapest
Amivel segíteni tudjuk az Ön ingatlanvásárlását:
-ingyenes, bankfüggetlen hitelügyintézés
-jogi háttér
-földhivatali ügyintézés
-energetikai tanúsítvány készítése
-értékbecslés
Amennyiben a hirdetés felkeltette érdeklődését kérem forduljon hozzám bizalommal.