Siófok
-
Kínálati ár: 57 900 000 Ft
Kalkulált ár: 159 066 Є -
84 m2
Alapterület
-
29 m2
Telekterület
-
4
Szobaszám
- Alapterület 84 m2
- Telekterület 29 m2
- Szobaszám 4
- Web www.ingatlantajolo.hu/9131733
- Négyzetméter ár 689 286 Ft/m2
- Értékesítés típusa Eladó / Kínál
- Kategória Ház- házrész
- Típus Sorház
- Állapot Újszerű állapotú
- Fűtés Egyéb fűtés
- Szintek száma 2
- Építés éve 1997
- Belső szintek 2
- Tetőtér beépíthető nem
- CSOK igénybe vehető nem
- Kilátás nincs megadva
- Tájolás nincs megadva
- Ingatlan komfort nincs megadva
- Parkolási lehetőség nincs megadva
- Építőanyag nincs megadva
- Bútorozott nincs megadva
- Akadálymentesített nincs megadva
- Erkély, terasz nincs megadva
- Klíma nem
- Szigetelt nem
- Havi rezsiköltség nincs megadva
- Lakásbiztosítás nincs megadva
- Kábelszolgáltató nincs megadva
- Elektromos autó töltés nincs megadva
Energetikai besorolás:
Ez a hirdetés megfelelhet a FIX 3%-os programnak. Tudj meg többet a részletekről itt.
Az ingatlan leírása
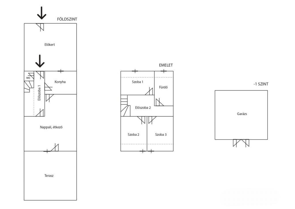
3 hálószoba, saját garázs, nagy terasz – kompromisszumok nélkül
✅ családias lakókörnyezet a Szépvölgyi Lakóparkban
✅ 84 nm belső kétszintes lakótér
✅ 28 nm terasz
✅ önálló garázs
Mitől különleges ez az ingatlan?
- Egész évben kényelmesen lakható – kombi cirkó gondoskodik a fűtésről és melegvízről
- Dryvit szigetelés, műanyag nyílászárók – energiahatékony, alacsony rezsi
- Frissen felújított tető, folyamatosan karbantartott állapot
- 3 külön nyíló szoba + nappali + ablakos konyha – minden funkció külön térben
- Saját, zárható garázs – autó + tárolás (bicikli, motor, szerszám)
- A garázs ára nincs benne a hirdetett árban, külön értendő. 3 millió Ft, az ingatlan kizárólag garázzsal együtt eladó.
✅ Kültér – ami tényleg használható
- 28 m²-es saját terasz – tökéletes reggelihez, grillezéshez, családi pillanatokhoz
- Előkert és hátsó kertkapcsolat – élhető, karbantartható méret
Ideális választás, ha:
✅ Nem szeretne társasházban élni
✅ Fontos a saját garázs és kertkapcsolat
✅ Olyan otthont keresel, ahova tényleg csak költözni kell
✅ Egy csendes, zöld, infrastruktúrában is jól ellátott környéken keresel ingatlant
Lokációs előnyök:
- Bevásárlás, iskola, óvoda, busz, vasútállomás: pár percen belül
- Balaton partja gyalogosan is elérhető – nyaralóként is kiváló
Komfort, tér, minőség – egy családi otthon minden előnyével! Nézze meg személyesen – megéri.
Keressen minket bizalommal további részletekért és megtekintésért!
Szívügyünk az otthonod!
Egy ingatlannak mérete és ára van. Az otthon igazi értéke viszont felbecsülhetetlen - ezért az értékbecsléstől a birtokbaadásig végigkísérünk az ingatlan adásvétel folyamatán, hogy anyagi, jogi és érzelmi biztonságban legyél.
Gacsó Ház Ingatlanközvetítő Kft.
INGATLAN HITEL BIZTOSÍTÁS
Irodáink:
1163 Budapest, Veres Péter út 39.
2440 Százhalombatta, Erkel Ferenc körút 1. (üzletsor)