Pécs, Pécs
-
Kínálati ár: 79 900 000 Ft
Kalkulált ár: 219 505 Є -
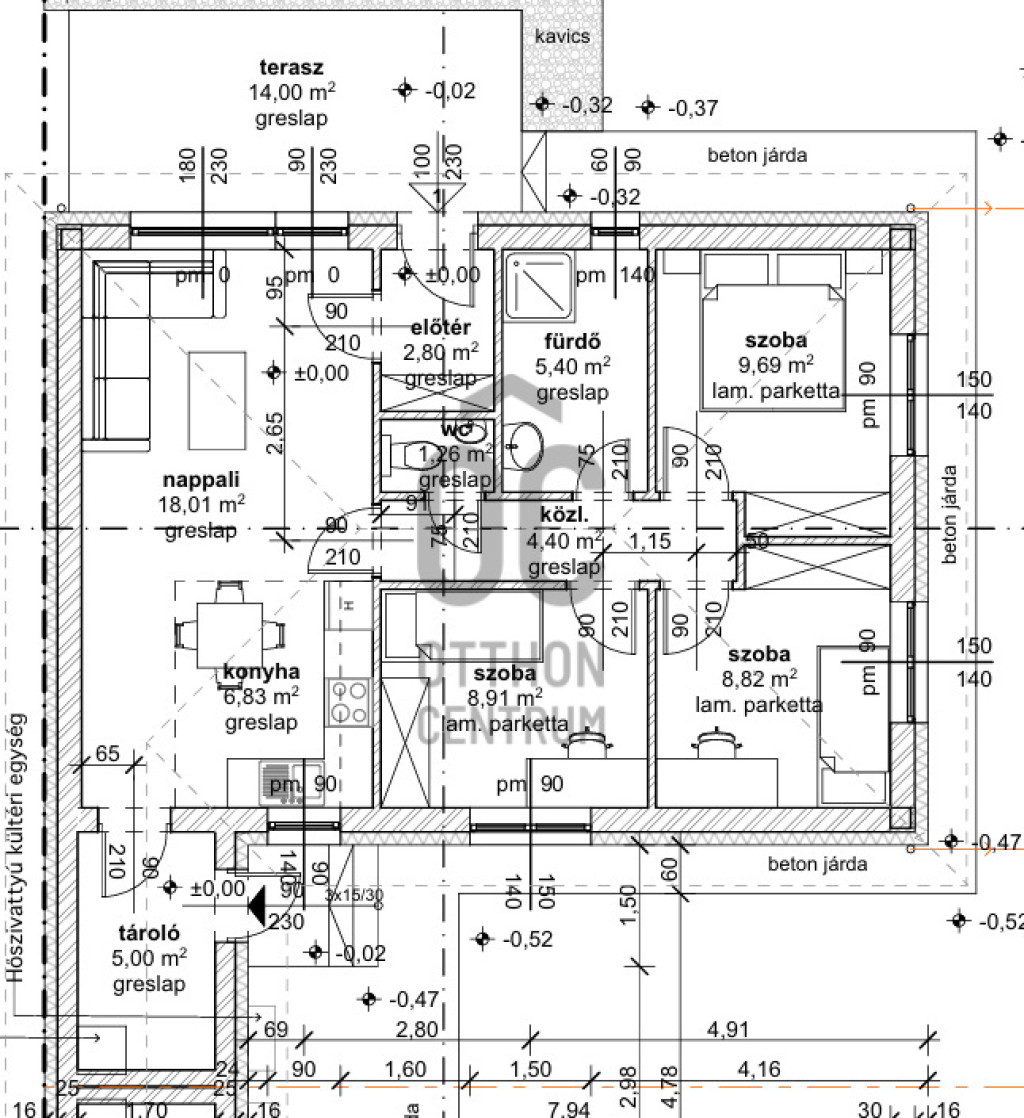
71 m2
Alapterület
-
337 m2
Telekterület
-
4
Szobaszám
- Alapterület 71 m2
- Telekterület 337 m2
- Szobaszám 4
- Web www.ingatlantajolo.hu/9266458
- Négyzetméter ár 1 125 352 Ft/m2
- Értékesítés típusa Eladó / Kínál
- Kategória Ház- házrész
- Típus Ikerház
- Építés éve 2026
- Belső szintek nincs megadva
- Tetőtér beépíthető nem
- CSOK igénybe vehető nem
- Kilátás nincs megadva
- Tájolás nincs megadva
- Ingatlan komfort nincs megadva
- Parkolási lehetőség nincs megadva
- Építőanyag nincs megadva
- Bútorozott nincs megadva
- Akadálymentesített nincs megadva
- Erkély, terasz nincs megadva
- Klíma nem
- Szigetelt nem
- Havi rezsiköltség nincs megadva
- Lakásbiztosítás nincs megadva
- Kábelszolgáltató nincs megadva
- Elektromos autó töltés nincs megadva
Energetikai besorolás:
Ez a hirdetés megfelelhet a FIX 3%-os programnak. Tudj meg többet a részletekről itt.
Az ingatlan leírása
Ez az új építésű családi ház ideális választás azoknak, akik szeretnének teret adni a közös pillanatoknak és a nyugodt mindennapoknak.A nappali + 3 hálószobás elrendezés lehetővé teszi, hogy mindenkinek meglegyen a saját kuckója, miközben a család együtt lehet.
A tágas nappali a közös játékok, tanulás és esti beszélgetések színtere lehet, míg a külön hálószobák nyugodt pihenést biztosítanak kicsiknek és nagyoknak egyaránt.
A hőszivattyús fűtés egyenletes meleget ad télen, nyáron pedig kellemes klímát biztosít, mindezt alacsony fenntartási költségek mellett – így több marad a családra.
A csendes, barátságos környék biztonságos játszóteret jelent a gyerekeknek, a terasz pedig tökéletes helyszíne lehet közös reggeliknek, születésnapoknak vagy nyári családi vacsoráknak.
Ez az otthon nemcsak lakóhely, hanem egy tér, ahol felcseperednek a gyerekek és emlékek születnek.
Ha olyan otthont keres, ahol a család nyugalomban és biztonságban élhet, ezt a házat érdemes személyesen is megnézni.
Szeretettel várom egy megtekintésre – kezdjük itt a család új fejezetét!
Várható Átadás:2026,December