Nyíregyháza
-
Kínálati ár: 78 645 000 Ft
Kalkulált ár: 220 294 Є -
109 m2
Alapterület
-
500 m2
Telekterület
-
3
Szobaszám
- Alapterület 109 m2
- Telekterület 500 m2
- Szobaszám 3
- Web www.ingatlantajolo.hu/9268985
- Négyzetméter ár 721 514 Ft/m2
- Értékesítés típusa Eladó / Kínál
- Kategória Ház- házrész
- Típus Ikerház
- Emelet földszint
- Állapot Új építésű
- Fűtés Gáz (cirkó)
- Építés éve 2026
- Belső szintek nincs megadva
- Tetőtér beépíthető nem
- CSOK igénybe vehető nem
- Kilátás nincs megadva
- Tájolás nincs megadva
- Ingatlan komfort Duplakomfortos
- Parkolási lehetőség nincs megadva
- Építőanyag Tégla
- Bútorozott nincs megadva
- Akadálymentesített nincs megadva
- Erkély, terasz nincs megadva
- Klíma nem
- Szigetelt nem
- Havi rezsiköltség nincs megadva
- Lakásbiztosítás nincs megadva
- Kábelszolgáltató nincs megadva
- Elektromos autó töltés nincs megadva
Energetikai besorolás:
Ez a hirdetés megfelelhet a FIX 3%-os programnak. Tudj meg többet a részletekről itt.
Az ingatlan leírása
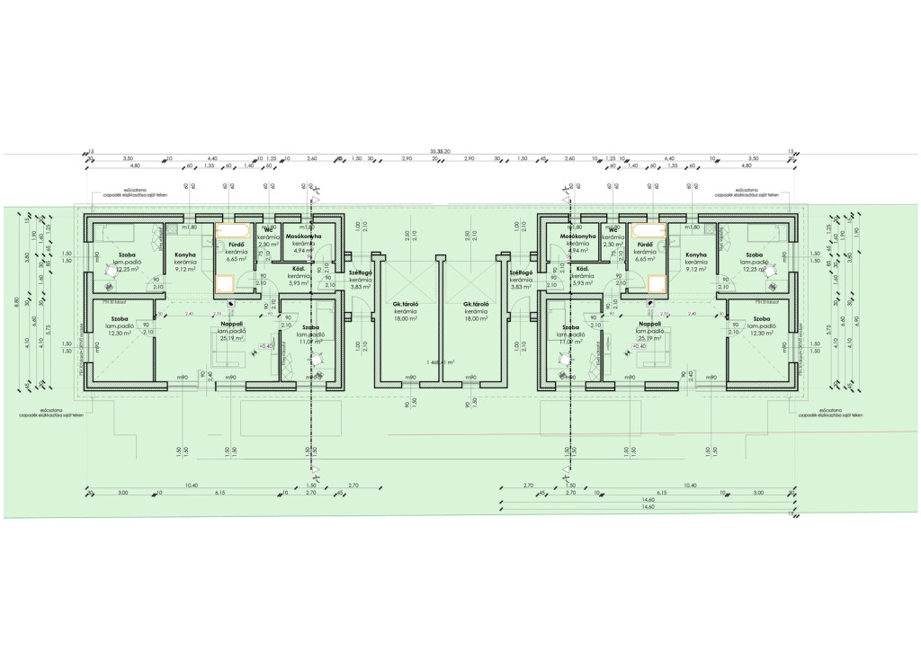
Exkluzív Lakóparki Otthonok Nyíregyháza-BorbányánVevőink számára egyedülálló lehetőség nyílik egy új, prémium lakóparkban, ahol mindössze 8 lakóegység kerül kivitelezésre. A zárt lakóparkban épülő ikerházak és önálló családi házak a legmagasabb minőségi követelményeknek megfelelően, a vevők egyedi igényeinek figyelembevételével készülnek.
Főbb jellemzők és műszaki tartalom:
Lokáció: Nyíregyháza - Borbánya (4400)
Választható alapterületek: 109 m2, 160 m2 vagy 184 m2 (egyedi igény szerint módosítható)
Telekméret: 500 m2 egységenként
Energiahatékonyság: A++ besorolás, kiemelkedően alacsony rezsiköltség
Falazat: 30 cm Porotherm X-therm tégla, grafitos hőszigeteléssel
Tetőszerkezet: Választható beton cserépfedés vagy modern lapostető
Nyílászárók: Többkamrás szerkezet, többrétegű hőszigetelt üvegezéssel
Fűtésrendszer: Padló- és radiátoros fűtés egyedi igény szerint, klímával kiegészítve
Szigetelés: Az ikerházak dupla falazattal és extra szigeteléssel elválasztottak, teljesen különálló mérőórákkal
Belső kialakítás: Magas minőségű választható beltéri ajtók és burkolatok
Szaniterek: Extra minőségű csaptelepek, kád és toalett
Extrák: Beépített biztonságtechnika és okos otthon rendszer kialakítási lehetőség
Elrendezés: Alapesetben 3 szoba, nappali és 2 fürdőszoba (duplakomfort)
Várható átadás: 2026
Ez az ingatlan kiváló választás azoknak, akik modern, fenntartható és elegáns életteret keresnek egy csendes, mégis jól megközelíthető környezetben.Az ingatlan azonosítója: 99726Érdeklődni: