Budapest II. kerület, Adyliget, Adyliget
-
Kínálati ár: 1 400 000 000 Ft
Kalkulált ár: 3 899 721 Є -
6 000 m2
Telekterület
- Alapterület 0 m2
- Telekterület 6 000 m2
- Szobaszám -
- Web www.ingatlantajolo.hu/9265860
- Négyzetméter ár 233 333 Ft/m2
- Értékesítés típusa Eladó / Kínál
- Kategória Telek
- Típus Építési telek
- Állapot Átlagos
- Kilátás nincs megadva
- Tájolás nincs megadva
- Víz nincs megadva
- Gáz nincs megadva
- Csatorna nincs megadva
- Villany nincs megadva
Az ingatlan leírása
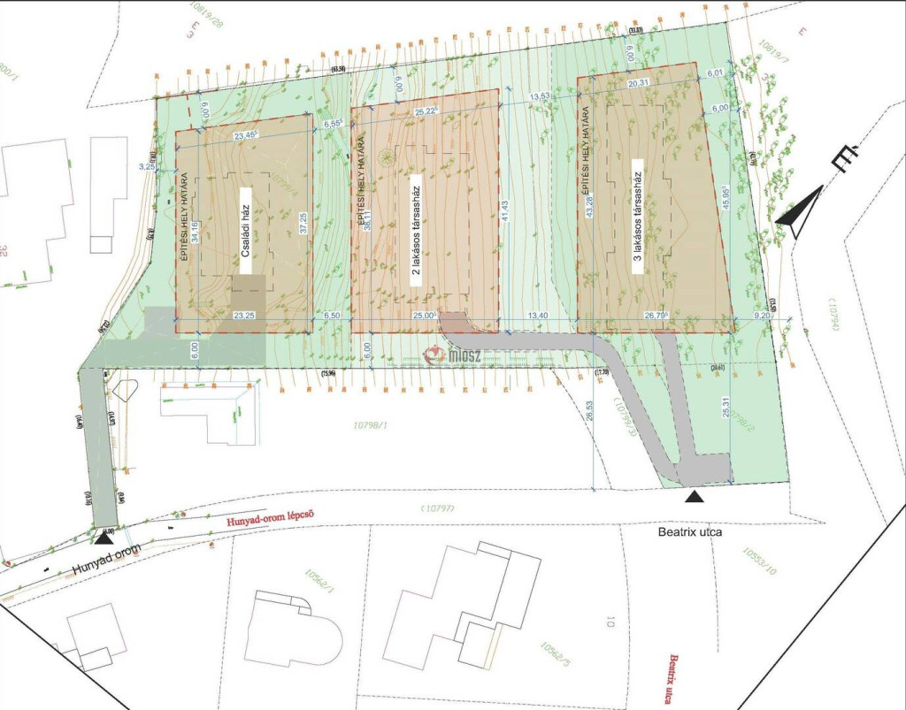
PANORÁMÁS LUXUSFEJLESZTÉSI LEHETŐSÉG – 6000 m²-ES KÜLÖNLEGES TELEK, KÉT UTCFRONTTALBudapest egyik legértékesebb részén, a 2. kerületre és a Parlamentre nyíló lenyűgöző panorámával kínálunk eladásra egy összesen 6000 m²-es, két utcafronttal rendelkező, különleges adottságú fejlesztési területet.
Ez a telek ritka lehetőség, ahol a természet közelsége, a prémium környezet és a kivételes fejlesztési potenciál találkozik.
FEJLESZTÉSI KONCEPCIÓK – RUGALMAS BEÉPÍTHETŐSÉG
A terület többféle exkluzív beruházási lehetőséget biztosít:
Villapark kialakítása
1 luxus családi ház + 5 prémium ikerházfél
Társasházi projekt (az önkormányzat 12–15 lakás engedélyezését támogatja)
Az ingatlan adottságai lehetővé teszik egy modern, zöld, magas presztízsű lakóközösség kialakítását, kiemelkedő értékállósággal.
EGYEDÜLÁLLÓ PANORÁMA
A telek alsó része a 2. kerület zöldövezeti látképére nyújt pazar kilátást.
A felső ingatlanrész pedig páratlan, közvetlen Parlament-panorámával büszkélkedik – ez a látvány Budapesten is igazi kuriózum.
MIÉRT EGYEDÜLÁLLÓ?
6000 m² prémium telek Budapest egyik legkeresettebb részén
Két utcafront, így külön bejárások és több épülettömb is könnyedén megvalósítható
Csendes, elegáns környék, körülötte természet, mégis gyors belvárosi eléréssel
Kiemelkedő befektetési potenciál, rugalmas projektlehetőségekkel