Tiszakécske
-
Kínálati ár: 135 000 000 Ft
Kalkulált ár: 378 151 Є -
960 m2
Alapterület
- Alapterület 960 m2
- Telekterület -
- Szobaszám -
- Web www.ingatlantajolo.hu/8352972
- Négyzetméter ár 140 625 Ft/m2
- Értékesítés típusa Eladó / Kínál
- Kategória Kereskedelmi és ipari ingatlan
- Típus Egyéb kereskedelmi-ipari
- Állapot Felújítandó
- Fűtés Egyéb fűtés
- Belső szintek nincs megadva
- CSOK igénybe vehető nem
- Kilátás nincs megadva
- Tájolás nincs megadva
- Parkolási lehetőség nincs megadva
- Építőanyag nincs megadva
- Klíma nem
- Havi rezsiköltség nincs megadva
- Elektromos autó töltés nincs megadva
- Akadálymentesített nincs megadva
Energetikai besorolás:
A+++
A++
A+
A
B
C
D
E
F
G
H
I
Az ingatlan leírása
Tiszakécskén, közvetlenül a főút mellett a tiszakécskei gyógy-és termál fürdő és a Tisza parti üdülőövezet közelében, eladó egy több épületből álló ingatlan.A most megépülő M44 autópályán könnyen elérhető az ország bármely pontja.
Az épület alkalmas szálloda, panzió, nyugdíjas otthon, munkás szálló kialakítására is.
A ázad elején épült alápincézett kastély épületben 8 szoba és fürdők.
A 80-as években épült L alakú épületben amelynek egyik szárnya emeletes 13 szoba található mindegyikben fürdőszobával.
Melléképület raktárakkal.
A telken található még egy 150 m2 alapterületű hűtőház.
- összközműves
- teljesen bekerített 8599 m2 telek
- buszmegálló a kapuban
- főút mellett
- kúria épület 210.74 m2
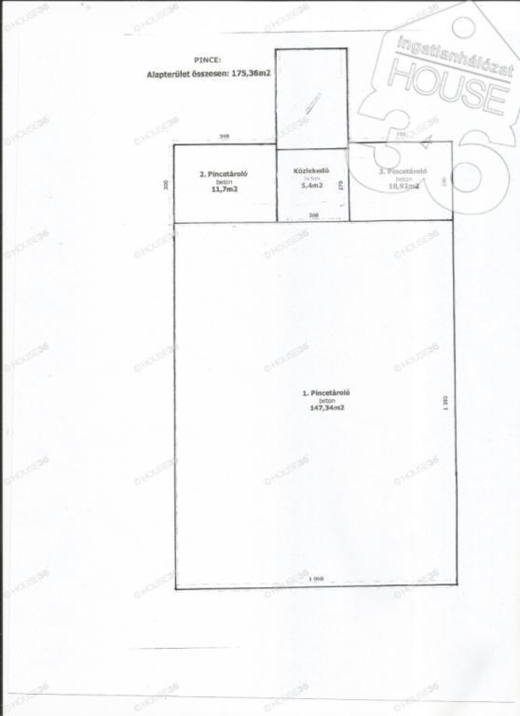
- Pince a főépület alatt 175.36 m2
- L alakú épület földszint 349,51 m2
- L alakú épület emelet 228.3 m2
- Tároló hűtő 150.67 m2
- melléképület 84.48 m2
Az épületekben további szobák kialakítására is van lehetőség.
Rendezett parkosított terület .
Mivel a 90-es évek vége óta az ingatlan nincs hasznosítva ezért felújítást igényel.
Az ingatlan akár hét végén is megtekinthető.Hívjon.Nézzük meg.
Figyelem az adatlap megbízónktól kapott adatok alapján készült pontosságáért felelősséget vállalni nem tudunk.