Vecsés
-
Kínálati ár: 77 000 000 Ft
Kalkulált ár: 197 943 Є -
87 m2
Alapterület
-
893 m2
Telekterület
-
3 + 1 fél
Szobaszám
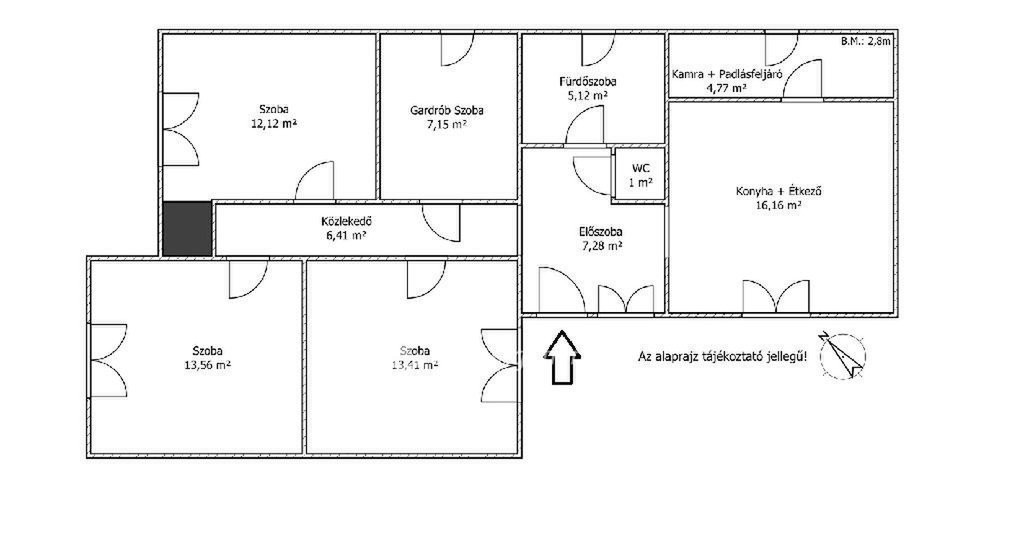
- Alapterület 87 m2
- Telekterület 893 m2
- Szobaszám 3 + 1 fél
- Web www.ingatlantajolo.hu/9308405
- Négyzetméter ár 885 057 Ft/m2
- Értékesítés típusa Eladó / Kínál
- Kategória Ház- házrész
- Típus Családi ház
- Állapot Átlagos
- Fűtés Elektromos
- Építés éve 1970
- Belső szintek nincs megadva
- Tetőtér beépíthető nem
- CSOK igénybe vehető nem
- Kilátás nincs megadva
- Tájolás nincs megadva
- Ingatlan komfort nincs megadva
- Parkolási lehetőség nincs megadva
- Építőanyag nincs megadva
- Bútorozott nincs megadva
- Akadálymentesített nincs megadva
- Erkély, terasz nincs megadva
- Klíma nem
- Szigetelt nem
- Havi rezsiköltség nincs megadva
- Lakásbiztosítás nincs megadva
- Kábelszolgáltató nincs megadva
- Elektromos autó töltés nincs megadva
Energetikai besorolás:
Ez a hirdetés megfelelhet a FIX 3%-os programnak. Tudj meg többet a részletekről itt.
Az ingatlan leírása
Eladó egy jó állapotú vegyes falazatú családi ház Vecsésen, 893 négyzetméteres telken. A ház 87 négyzetméteres alapterületű részben felújított három plusz egy félszobás. A felújított zuhanyzó és tágas étkezős konyha napfényes, igény szerint az első szoba kellemes nappalinak is kialakítható. 2023-ban a teljes épületfalazat vízszigetelést kapott injektálós technológiával. A villamos vezetékek és a csövek cseréje már megtörtént. Jelenleg elektromos fűtéssel rendelkezik egy H- tarifás nagy teljesítményű klímával kiegészítve. Mivel a cserépkályhákat megőrizték akár fával is fűthető a ház. Melegvizet modern Hajdú villanybojler szolgáltat. Tartozik még hozzá egy 34 négyzetméteres téliesített melléképület ami jelenleg lakássá van alakítva, de akár üzlethelyiségnek (Pl.: körmös, fodrász) is kiváló lehet. A telken található még egy betonalapos lemez fészer és egy kisház ami műhelynek vagy tárolónak is hasznosítható. Parkolni a ház előtt de a kertben is van hely akár több autónak is. Vecsés egy jó infrastruktúrájú város szinte minden szolgáltatás helyben elérhető, Budapestre ingázóknak pedig vonzó lehetőség az agglomerációban, hiszen autóval és tömegközlekedéssel is megoldhatóak a mindennapok. Elsősorban pároknak és családosoknak ajánlanám, de érdekes lehet bárkinek aki otthonról dolgozik vagy vállalkozik. Ha érdekesnek találta jöjjön el és tekintse meg élőben is! Időpont egyeztetéshez hívjon bizalommal!Teljes körű ügyintézéssel állunk az eladók és a vevők rendelkezésére! A kínálatunkból választott ingatlan finanszírozásához minősített fogyasztóbarát, piaci és kedvezményes hitel- és lízingkonstrukciókat kínálunk (lakásvásárlási hitel, szabad felhasználású hitel, babaváró hitel, CSOK Plusz intézés, Otthonfelújítási Támogatás, egyéb felújítási hitelek). Az adásvételi szerződés megkötéséhez igény szerint megbízható ügyvédi közreműködést biztosítunk, és segítséget nyújtunk az adásvételhez kapcsolódó egyéb ügyek intézéséhez.
Kérdéseire az esti órákban és hétvégén is szívesen válaszolok! Ha az új ingatlana megvásárlásához a jelenlegi ingatlanát el kell adnia, abban is szívesen segítünk.