Szolnok, Szandaszőlős, Szandaszőlős
-
Kínálati ár: 84 900 000 Ft
Kalkulált ár: 216 031 Є -
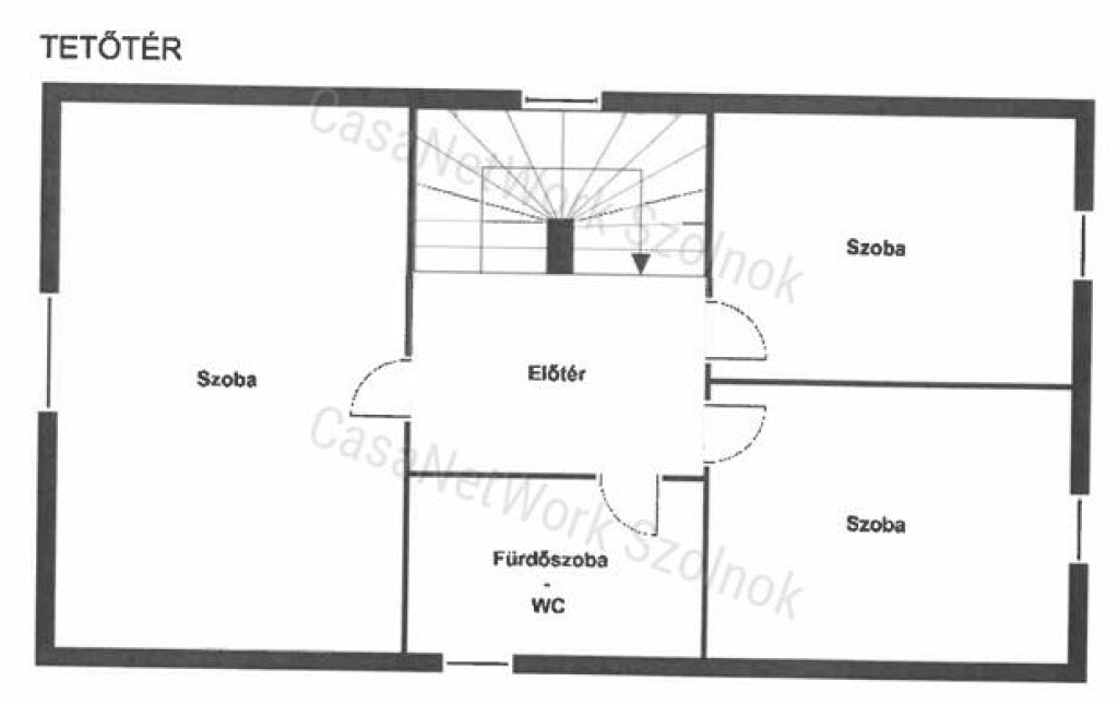
130 m2
Alapterület
-
633 m2
Telekterület
-
4
Szobaszám
- Alapterület 130 m2
- Telekterület 633 m2
- Szobaszám 4
- Web www.ingatlantajolo.hu/9298121
- Négyzetméter ár 653 077 Ft/m2
- Értékesítés típusa Eladó / Kínál
- Kategória Ház- házrész
- Típus Családi ház
- Állapot Új építésű
- Fűtés Gáz (cirkó)
- Belső szintek nincs megadva
- Tetőtér beépíthető nem
- CSOK igénybe vehető nem
- Kilátás nincs megadva
- Tájolás nincs megadva
- Ingatlan komfort nincs megadva
- Parkolási lehetőség nincs megadva
- Építőanyag nincs megadva
- Bútorozott nincs megadva
- Akadálymentesített nincs megadva
- Erkély, terasz nincs megadva
- Klíma nem
- Szigetelt nem
- Havi rezsiköltség nincs megadva
- Lakásbiztosítás nincs megadva
- Kábelszolgáltató nincs megadva
- Elektromos autó töltés nincs megadva
Energetikai besorolás:
Ez a hirdetés megfelelhet a FIX 3%-os programnak. Tudj meg többet a részletekről itt.