Siófok
-
Kínálati ár: 229 000 000 Ft
Kalkulált ár: 629 121 Є -
163 m2
Alapterület
-
440 m2
Telekterület
-
5
Szobaszám
- Alapterület 163 m2
- Telekterület 440 m2
- Szobaszám 5
- Web www.ingatlantajolo.hu/9291840
- Négyzetméter ár 1 404 908 Ft/m2
- Értékesítés típusa Eladó / Kínál
- Kategória Ház- házrész
- Típus Családi ház
- Állapot Új építésű
- Fűtés Egyéb fűtés
- Építés éve 2025
- Belső szintek nincs megadva
- Tetőtér beépíthető nem
- CSOK igénybe vehető nem
- Kilátás nincs megadva
- Tájolás nincs megadva
- Ingatlan komfort nincs megadva
- Parkolási lehetőség nincs megadva
- Építőanyag nincs megadva
- Bútorozott nincs megadva
- Akadálymentesített nincs megadva
- Erkély, terasz nincs megadva
- Klíma nem
- Szigetelt nem
- Havi rezsiköltség nincs megadva
- Lakásbiztosítás nincs megadva
- Kábelszolgáltató nincs megadva
- Elektromos autó töltés nincs megadva
Energetikai besorolás:
Az ingatlan leírása
A LIDO HOME Siófok ingatlaniroda eladásra kínálja ezt a kiváló tulajdonságokkal bíró, ÚJ ÉPÍTÉSŰ CSALÁDI HÁZAT Siófok-Szabadifürdőn. A környék infrastruktúrája kiváló, a Balaton 500 méterre, 5 perc sétatávra található, mégis csendes, nyugodt környezetben.Az újonnan épült ház jellemzői:
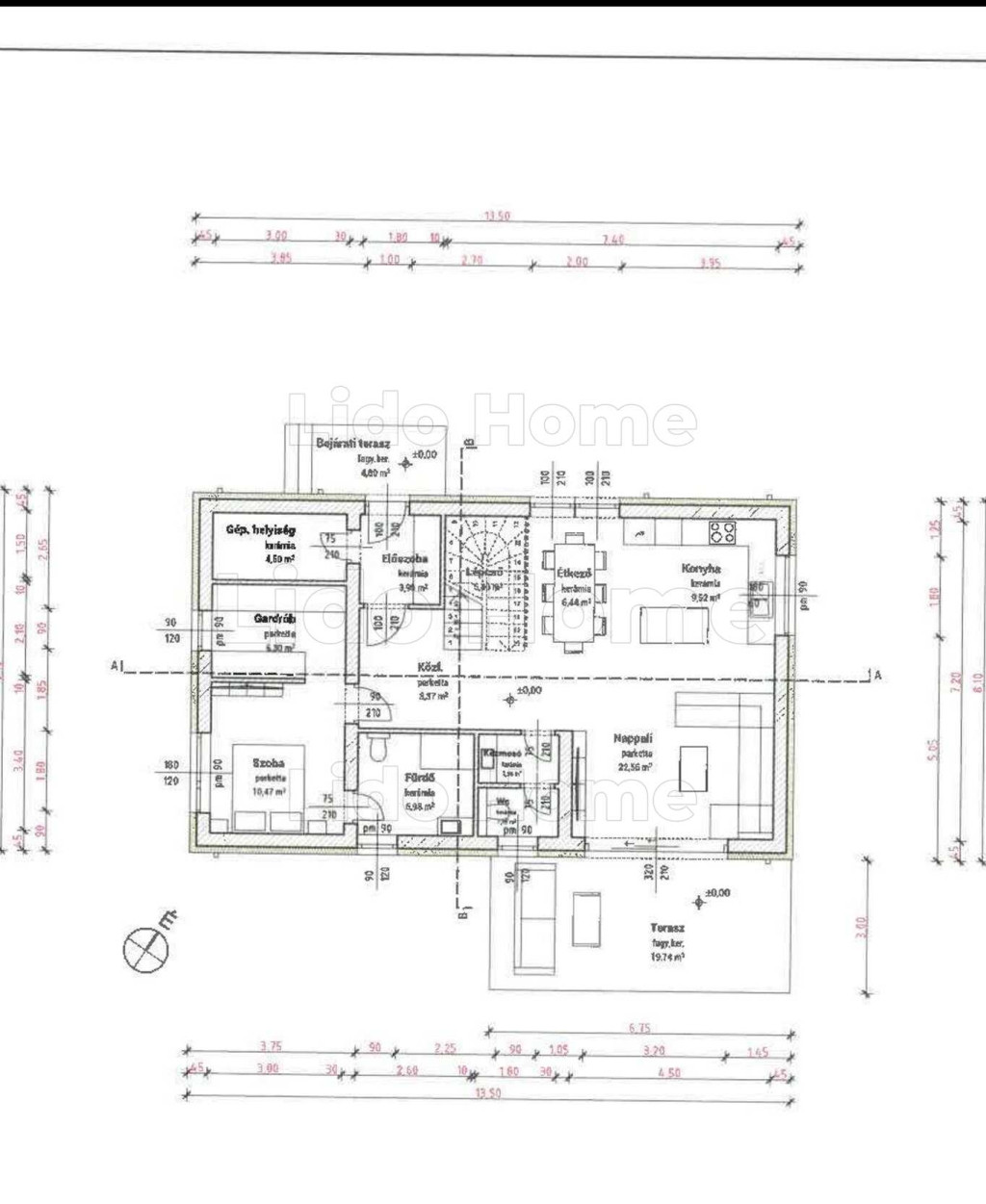
Hatalmas AMERIKAI KONYHÁS NAPPALIJA mellett 4 hálószoba, 2 fürdőszoba, háztartási/tároló helység, előszoba és közlekedők, valamint gardrób alkotják a belső teret.
A földszinten:
nappali-konyha-étkező, előszoba, hálószoba, vendégmosdó, fürdőszoba, gardrób, háztartási helyiség, valamint egy déli fekvésű terasz található, összesen 111,9 m2-en
Az emeleten 3 szoba, közlekedő, egy tágas fürdőszoba és két nagyméretű - minden szobából megközelíthető - ERKÉLY található, összesen 76,76 m2-en.
A tágas, praktikusan megtervezett és KIVÁLÓ MINŐSÉGBEN megépített ház 2025-ben átadásra került.
Műszaki jellemzői:
A fűtésről energiatakarékos hőszivattyú gondoskodik, padlófűtéssel, a tetőn elhelyezett napelemmel.
• Inverteres Klímák
• Elektromos redőnyök
• Elektromos kapu,
• Térkövezett parkoló az udvarban
Önálló terület (440 m2), rendezett jogi helyzet, 5%-os ÁFA-tartalom! KIVÁLÓ vétel akár állandó lakhatásra, akár NYARALÓNAK!
Bővebb információért és részletes tájékoztatásért keressen bizalommal!
Amennyiben a LIDO HOME SIÓFOK által kínált, CSALÁDI HÁZ vagy bármelyik kínálatunkban található ingatlan felkeltette az érdeklődését, hívjon bármikor a megadott telefonszámon bátran!
Vásárolna de nincs rá keret? Kollegám díjmentes, bank semleges hitel ügyintézéssel áll a rendelkezésére.
LIDO HOME - Ingatlanok egy életen át!