Sárvár, Sárvár
-
Kínálati ár: 99 900 000 Ft
Kalkulált ár: 275 967 Є -
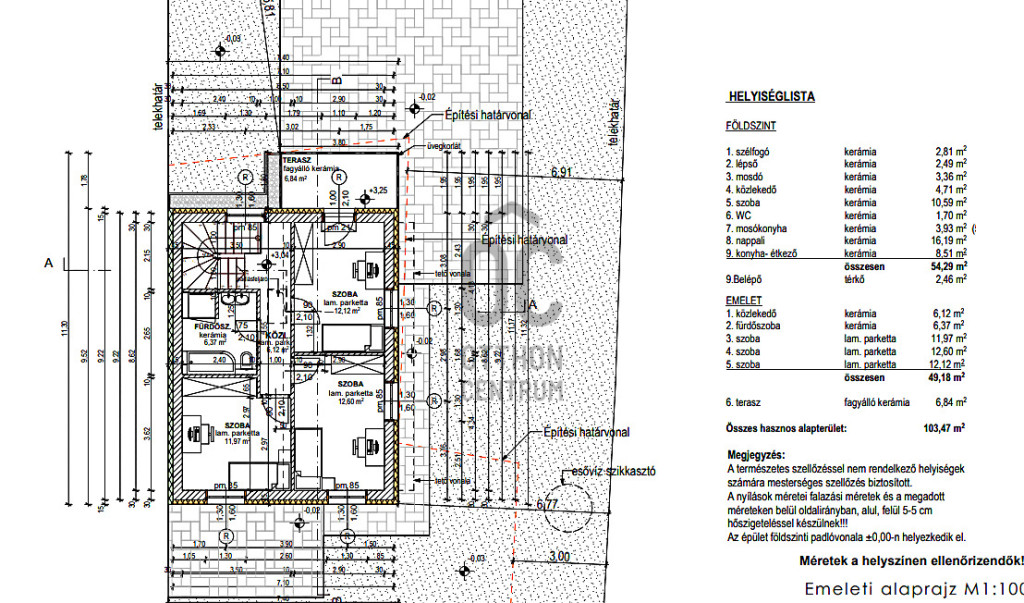
104 m2
Alapterület
-
200 m2
Telekterület
-
5
Szobaszám
- Alapterület 104 m2
- Telekterület 200 m2
- Szobaszám 5
- Web www.ingatlantajolo.hu/9321737
- Négyzetméter ár 960 577 Ft/m2
- Értékesítés típusa Eladó / Kínál
- Kategória Ház- házrész
- Típus Családi ház
- Fűtés Gáz (cirkó)
- Építés éve 2026
- Belső szintek nincs megadva
- Tetőtér beépíthető nem
- CSOK igénybe vehető nem
- Kilátás nincs megadva
- Tájolás nincs megadva
- Ingatlan komfort nincs megadva
- Parkolási lehetőség nincs megadva
- Építőanyag nincs megadva
- Bútorozott nincs megadva
- Akadálymentesített nincs megadva
- Erkély, terasz nincs megadva
- Klíma nem
- Szigetelt nem
- Havi rezsiköltség nincs megadva
- Lakásbiztosítás nincs megadva
- Kábelszolgáltató nincs megadva
- Elektromos autó töltés nincs megadva
Energetikai besorolás:
Ez a hirdetés megfelelhet a FIX 3%-os programnak. Tudj meg többet a részletekről itt.
Az ingatlan leírása
Sárváron, az ország egyik legdinamikusabban fejlődő fürdővárosában, csendes, átmenő forgalomtól mentes zsákutcában, a Sárvári Gyógy-, és Termálfürdőtől 700 m-re, eladó egy 104 nm-es, nappali + 4 szobás családi ház 7 nm-es terasszal és 200 nm-es önálló, körbekerített kerttel és térkövezett kocsibeállóval.A kiváló referenciákkal és több évtizedes tapasztalattal rendelkező, megbízható, korrekt kivitelező a kialakításnál a legmodernebb műszaki megoldásokat alkalmazza. Ez teljes tégla falazatot, 15 cm-es homlokzati szigetelést, monolit betonfödémet, három rétegű műanyag nyílászárókat foglal magába redőnnyel és szúnyoghálóval, a fűtést kondenzációs gázkazán biztosítja padlófűtéses hőleadással és 2 db split-klímával. A hideg-melegburkolatok, szaniterek, belső ajtók egyedi igény szerint választhatók.
Az ötletes tervezésnek köszönhetően egy funkcionális, élhető lakótér kerül kialakításra, amerikai konyhás nappalival, 4 db hálószobával, 2 db fürdővel ( kádas, zuhanyzós ), 2 db WC-vel, gépészeti helyiséggel.
Ne döntsön elhamarkodottan - tekintse meg a referenciamunkákat- nem fog csalódni!
Rugalmas fizetési ütemezés, hitel,-és CSOK ügyintézés.
AJÁNDÉK KONYHABÚTOR 1,5 MFT ÉRTÉKBEN !!
Vételár: 99,9 MFt.
Költözés: 2026.06.30.
Hitelre van szüksége?
Az Otthon Centrum az ország egyik legnagyobb és legmegbízhatóbb hitelközvetítőjeként, teljes körű és díjmentes hitelügyintézéssel, biztosításkötéssel áll rendelkezésére!
Kérje személyre szabott ajánlatunkat Kollégáinktól!