Pogány
-
Kínálati ár: 99 000 000 Ft
Jelenlegi ár: 99 000 000 Ft
Korábbi ár: 107 900 000 Ft
Kalkulált ár: 271 978 Є107 900 000 Ft
-
140 m2
Alapterület
-
900 m2
Telekterület
-
4
Szobaszám
- Alapterület 140 m2
- Telekterület 900 m2
- Szobaszám 4
- Web www.ingatlantajolo.hu/9271186
- Négyzetméter ár 707 143 Ft/m2
- Értékesítés típusa Eladó / Kínál
- Kategória Ház- házrész
- Típus Családi ház
- Állapot Átlagos
- Fűtés Gáz (cirkó)
- Belső szintek nincs megadva
- Tetőtér beépíthető nem
- CSOK igénybe vehető nem
- Kilátás nincs megadva
- Tájolás nincs megadva
- Ingatlan komfort nincs megadva
- Parkolási lehetőség nincs megadva
- Építőanyag nincs megadva
- Bútorozott nincs megadva
- Akadálymentesített nincs megadva
- Erkély, terasz nincs megadva
- Klíma nem
- Szigetelt nem
- Havi rezsiköltség nincs megadva
- Lakásbiztosítás nincs megadva
- Kábelszolgáltató nincs megadva
- Elektromos autó töltés nincs megadva
Energetikai besorolás:
Ez a hirdetés megfelelhet a FIX 3%-os programnak. Tudj meg többet a részletekről itt.
Az ingatlan leírása
Nyugalom, tér és lehetőségek Pogányban ? saroktelken, melléképülettel!Pécstől pár percre, Pogány egyik csendes, forgalomtól mentes utcájában kínálunk megvételre egy 900 m?-es saroktelken elhelyezkedő, 140 m?-es, kétszintes, 4 szobás, duplakomfortos családi házat. Az ingatlan különlegessége, hogy a telek mögött már nincs beépítés ? csupán szántóföld ?, így a zavartalan, intim környezet garantált.
Az 1990-ben épült, tégla szerkezetű ház fűtéséről gázkazán és vegyes tüzelésű kályha gondoskodik, emellett egy 5 kW-os hűtő-fűtő klíma is rendelkezésre áll. A nyílászárók mintegy 70%-a már korszerűsített.
A telken egy közel 100 m?-es, szintén tégla építésű melléképület is található, amelyben víz, villany és 3 fázis is be van vezetve. Ideális választás műhelynek, vállalkozásnak vagy gazdasági célra. Jelenleg 1 állásos garázs áll rendelkezésre.
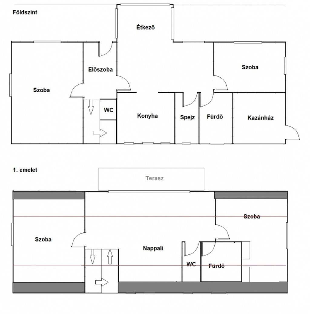
Helyiségek elosztása:
Alsó szint:
? előszoba
? konyha + étkező
? spájz
? 2 szoba
? fürdőszoba
? külön WC
Felső szint:
? tágas közösségi tér
? 2 szoba
? fürdőszoba
? külön WC
? erkély
A gépesített konyha és a beépített bútorok a vételár részét képezik, a további berendezés megegyezés szerint maradhat.
Az ingatlan kiváló választás családoknak, illetve mindazoknak, akik egy sokoldalúan hasznosítható, jól felszerelt melléképületet keresnek vállalkozásukhoz vagy hobbijukhoz.
A környék nyugodt és biztonságos, a buszmegálló néhány percen belül elérhető.
További információért hívjon bizalommal!