Kerepes, Panoráma lakópark
-
Kínálati ár: 149 900 000 Ft
Kalkulált ár: 412 948 Є -
132 m2
Alapterület
-
400 m2
Telekterület
-
5
Szobaszám
- Alapterület 132 m2
- Telekterület 400 m2
- Szobaszám 5
- Web www.ingatlantajolo.hu/9239324
- Négyzetméter ár 1 135 606 Ft/m2
- Értékesítés típusa Eladó / Kínál
- Kategória Ház- házrész
- Típus Családi ház
- Építés éve 2026
- Belső szintek nincs megadva
- Tetőtér beépíthető nem
- CSOK igénybe vehető nem
- Kilátás nincs megadva
- Tájolás nincs megadva
- Ingatlan komfort nincs megadva
- Parkolási lehetőség nincs megadva
- Építőanyag nincs megadva
- Bútorozott nincs megadva
- Akadálymentesített nincs megadva
- Erkély, terasz nincs megadva
- Klíma nem
- Szigetelt nem
- Havi rezsiköltség nincs megadva
- Lakásbiztosítás nincs megadva
- Kábelszolgáltató nincs megadva
- Elektromos autó töltés nincs megadva
Energetikai besorolás:
Ez a hirdetés megfelelhet a FIX 3%-os programnak. Tudj meg többet a részletekről itt.
Az ingatlan leírása
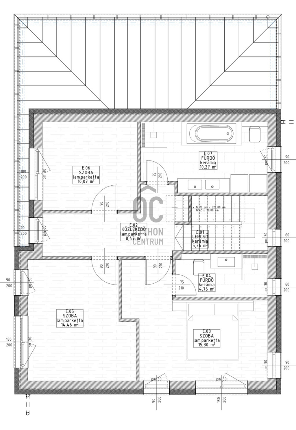
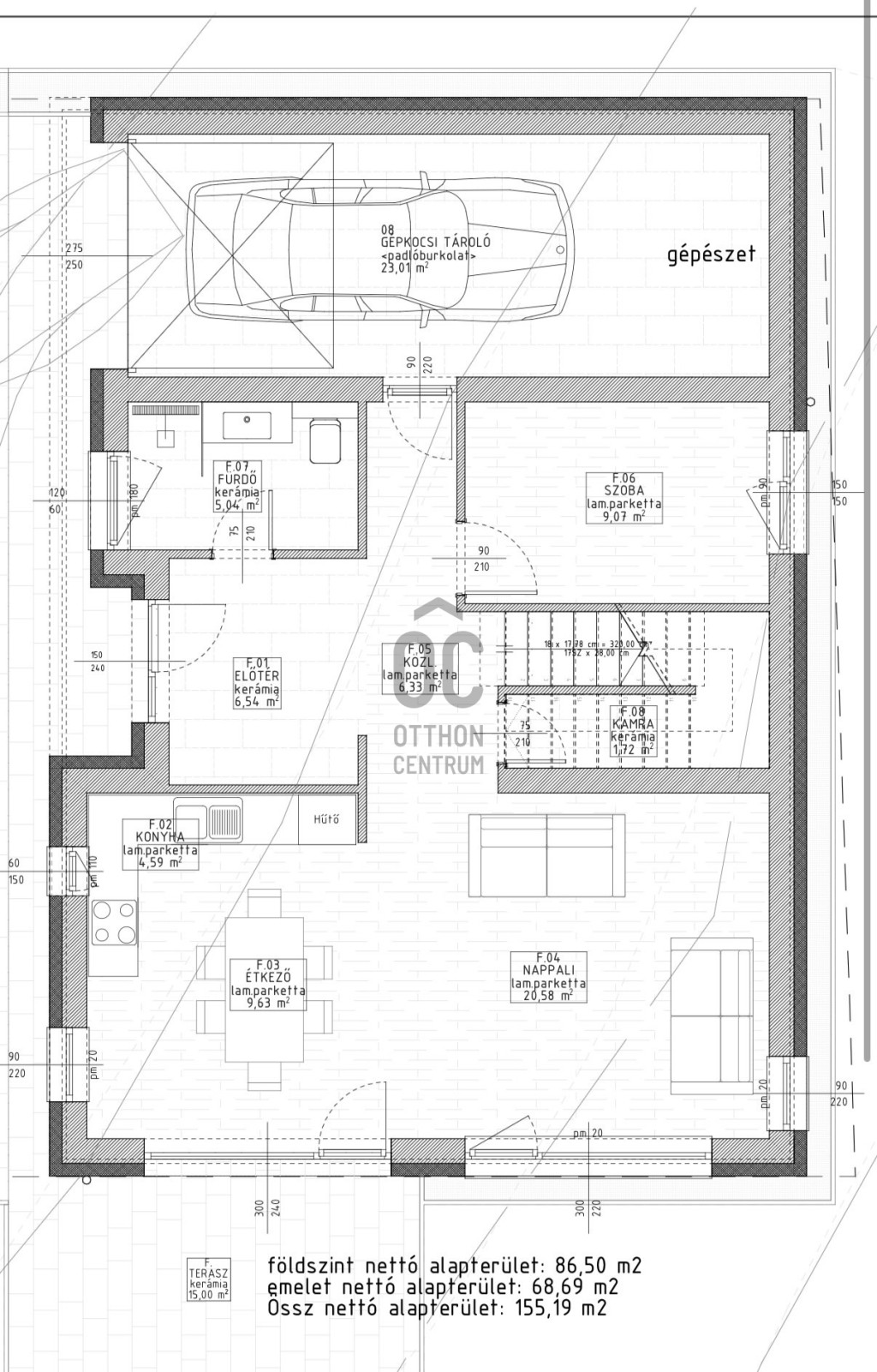
Új építésű, prémium mínőségű, családi ház eladó Kerepesen a Panoráma lakóparkban.Az épület garázzsal és kocsibeállóval épül, összesen 155 m²-es hasznos alapterülettel.
Az ingatlan közel 400 m²-es saját telekrészen.
Kulcsrakész ár:
149,9 M Ft.
Tervezett átadás: 2026. június/július
Főbb jellemzők:
- Prémium minőségű anyaghasználat, magas műszaki tartalom
- Hőszivattyús fűtés és hűtés, opcionálisan hővisszanyerős szellőztetés és napelem is kérhető
- Elektromos mozgatású aluredőnyök
- Egyedi igények szerint, választható burkolatok, szaniterek, nyílászárók
- 3 fürdőszoba
Csendes, jó levegőjű, zöldövezeti környezetben, egy kirándulásra is alkalmas fenyőerdő szomszédságában várja új tulajdonosát ez a modern,
Kiváló elhelyezkedés:
A közelben iskola, óvoda, bevásárlási lehetőségek, minden pár percen belül elérhető.
Budapest, Örs vezér tere akár HÉV-vel is 20 percen belül elérhető.
Ideális választás családoknak és ingázóknak egyaránt!
Az energetikai tanúsítvány elkészítése folyamatban van, a rendelkezésre állást követően a hirdetést frissítjük.
További információért és megtekintésért keressen bizalommal!