Gyula, Újváros
-
Kínálati ár: 69 000 000 Ft
Kalkulált ár: 193 277 Є -
150 m2
Alapterület
-
447 m2
Telekterület
-
5 + 2 fél
Szobaszám
- Alapterület 150 m2
- Telekterület 447 m2
- Szobaszám 5 + 2 fél
- Web www.ingatlantajolo.hu/9299372
- Négyzetméter ár 460 000 Ft/m2
- Értékesítés típusa Eladó / Kínál
- Kategória Ház- házrész
- Típus Családi ház
- Emelet földszint
- Állapot Átlagos
- Fűtés Gáz (cirkó)
- Építés éve 1980
- Belső szintek nincs megadva
- Tetőtér beépíthető nem
- CSOK igénybe vehető nem
- Kilátás nincs megadva
- Tájolás nincs megadva
- Ingatlan komfort nincs megadva
- Parkolási lehetőség nincs megadva
- Építőanyag nincs megadva
- Bútorozott nincs megadva
- Akadálymentesített nincs megadva
- Erkély, terasz nincs megadva
- Klíma nem
- Szigetelt nem
- Havi rezsiköltség nincs megadva
- Lakásbiztosítás nincs megadva
- Kábelszolgáltató nincs megadva
- Elektromos autó töltés nincs megadva
Energetikai besorolás:
Ez a hirdetés megfelelhet a FIX 3%-os programnak. Tudj meg többet a részletekről itt.
Az ingatlan leírása
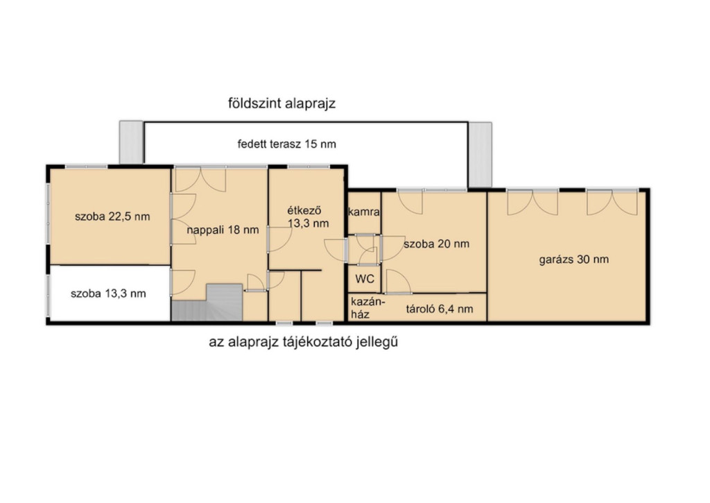
Eladó családi ház Gyula városának kedvelt Újváros városrészében!Ez a 150 m²-es lakótérrel rendelkező, átlagos állapotú ingatlan ideális választás mindazok számára, akik csendes környezetben szeretnének élni, ugyanakkor fontos számukra a jó közlekedés. A házban 4 tágas szoba, egy világos nappali, étkezős konyha, kamra valamint 2 fürdőszoba és két különálló mosdó is helyet kapott, így kényelmes otthont biztosít nagyobb családoknak is. Emellett a főépület hátsó szekciójában egy nagy alapterületű a kertből akár külön megközelíthető helyiség is található, mely alkalmas lakhatásra, de akár vállalkozás (körmös, fodrász, műhely stb) céljára is tökéletes.
A ház fűtéséről a főépület földszintjén gázkazánról működtetett radiátorok gondoskodnak, az emeleten és a hátsó részben konvektor fűtés került kialakításra.
A 447 m²-es telek számos lehetőséget kínál a kertészkedés szerelmeseinek, ráadásul fúrt kút is rendelkezésre áll a kert öntözéséhez. A redőnyözött ablakok és a külön fürdő és WC tovább növelik a lakók kényelmét. A házhoz egy hangulatos, déli fekvésű terasz is tartozik, amely tökéletes hely a pihenéshez.
A kertkapcsolatos kialakítás lehetővé teszi, hogy bármikor élvezhesse a friss levegőt és a kert nyugalmát. A garázs lehetőség pedig biztosítja autója biztonságos tárolását. A kertben ezek mellett két könnyűszerkezetes szerszámtároló is található.
Ez a ház tökéletes nagycsaládosoknak, hiszen itt mindenkinek jut elég élettér és Otthon Start programra és CSOK+-ra is alkalmas. Déli fekvésének köszönhetően a nappali és az étkező egésznap fényárban úszik. Nagyon jó lokációjának köszönhetően apartmanozás céljára is megfelelő.
Ne hagyja ki ezt a remek lehetőséget, hogy saját igényei szerint alakítsa ki álmai otthonát Gyula Újváros városrészének egyik csendes utcájában!
További információért és a megtekintés időpontjának egyeztetéséért keressen bennünket bizalommal! Kattintson ide a hirdető iroda weboldalának megtekintéséhez!