Diósd
-
Kínálati ár: 210 000 000 Ft
Kalkulált ár: 576 923 Є -
132 m2
Alapterület
-
611 m2
Telekterület
-
4
Szobaszám
- Alapterület 132 m2
- Telekterület 611 m2
- Szobaszám 4
- Web www.ingatlantajolo.hu/9315687
- Négyzetméter ár 1 590 909 Ft/m2
- Értékesítés típusa Eladó / Kínál
- Kategória Ház- házrész
- Típus Családi ház
- Állapot Új építésű
- Építés éve 2026
- Belső szintek nincs megadva
- Tetőtér beépíthető nem
- CSOK igénybe vehető nem
- Kilátás nincs megadva
- Tájolás nincs megadva
- Ingatlan komfort nincs megadva
- Parkolási lehetőség nincs megadva
- Építőanyag nincs megadva
- Bútorozott nincs megadva
- Akadálymentesített nincs megadva
- Erkély, terasz nincs megadva
- Klíma nem
- Szigetelt nem
- Havi rezsiköltség nincs megadva
- Lakásbiztosítás nincs megadva
- Kábelszolgáltató nincs megadva
- Elektromos autó töltés nincs megadva
Energetikai besorolás:
Az ingatlan leírása
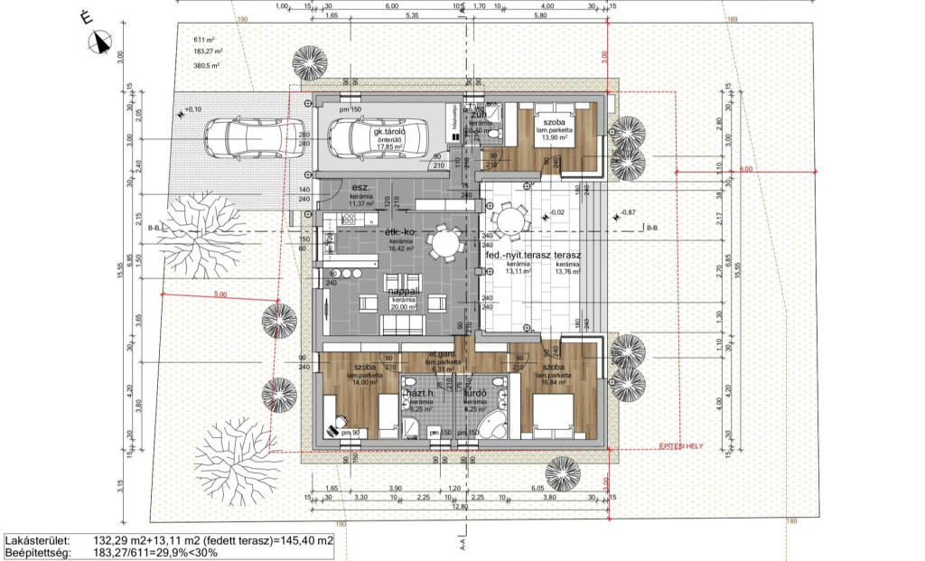
Diósd egyik dinamikusan fejlődő, kertvárosias részén, Diósd-ligeten, csendes, nyugodt környezetben kínáljuk megvételre ezt az építés alatt álló, egyszintes családi házat, amely a modern építészeti megoldásokat és a praktikus térszervezést ötvözi.A ház egy 611 m²-es telken helyezkedik el, szabadonálló beépítéssel, nagy, jól kihasználható kertkapcsolattal.
A nettó 132 m²-es lakótér egy átgondolt, „U” alakú alaprajz mentén került kialakításra, ahol a központi élettér és a privát zónák jól elkülönülnek egymástól.
Élettér és elosztás
A ház központi eleme a tágas nappali–étkező–konyha tér, amely közvetlen kapcsolatban áll a 13 m²-es fedett-nyitott terasszal, így a belső és külső élettér természetesen kapcsolódik egymáshoz.
A lakótér két szárnyában helyezkednek el a hálószobák:
• 3 külön nyíló szoba
• szülői háló gardrób kapcsolattal
• fürdőszoba + külön zuhanyzó
• háztartási helyiség
Ez az elrendezés ideális családi használatra, biztosítva a nyugodt, elkülönült élettereket.
A házhoz tartozik továbbá:
• garázs (17,85 m²)
• további parkolási lehetőség telken belül
• előszoba és praktikus közlekedők
Műszaki tartalom és energiahatékonyság
Az ingatlan korszerű, időtálló szerkezetekkel épül:
• 30 cm Porotherm falazat
• 15 cm homlokzati hőszigetelés
• 3 rétegű, korszerű nyílászárók
• lapostető + extenzív zöldtető
A fűtést és hűtést levegő-víz hőszivattyús rendszer biztosítja, felületfűtéssel (padló/fal/mennyezet), amely energiatakarékos és egyenletes komfortot nyújt.
Az ingatlan A+ energetikai besorolású, közel nulla energiaigényű, alacsony fenntartási költségekkel:
• energiaigény: 62,4 kWh/m²/év
• kedvező CO₂ kibocsátás
• korszerű szabályozható rendszer
A használati melegvíz ellátás szintén a hőszivattyús rendszerrel történik, modern csőhálózattal és vízkezelési előkészítéssel.
Környezet és telek
A telek mérete és elhelyezése ideális:
• 611 m² telek
• több mint 60% zöldfelület
• csendes, kertvárosias utca
• nyugodt, családbarát környezet
A ház tájolása és elhelyezése biztosítja a megfelelő benapozást és a privát kert használatát.
Várható átadás: 2026 Q4
Ez az ingatlan ideális választás azok számára, akik modern, energiatakarékos, jól átgondolt elrendezésű családi házat keresnek nyugodt, zöld környezetben, Budapest közvetlen közelében.
További információért és részletekért keressen bizalommal! Kattintson ide a hirdető iroda weboldalának megtekintéséhez!