Budapest IV. kerület, Baross utca
-
Kínálati ár: 500 000 Ft
Kalkulált ár: 1 381 Є
- Alapterület 0 m2
- Telekterület -
- Szobaszám -
- Web www.ingatlantajolo.hu/9323671
- Négyzetméter ár nincs megadva
- Értékesítés típusa Kiadó / Kínál
- Kategória Kereskedelmi és ipari ingatlan
- Típus Üzlet
- Belső szintek nincs megadva
- CSOK igénybe vehető nem
- Kilátás nincs megadva
- Tájolás nincs megadva
- Parkolási lehetőség nincs megadva
- Építőanyag nincs megadva
- Klíma nem
- Havi rezsiköltség nincs megadva
- Elektromos autó töltés nincs megadva
- Akadálymentesített nincs megadva
Energetikai besorolás:
A+++
A++
A+
A
B
C
D
E
F
G
H
I
Az ingatlan leírása
IV. KERÜLET, ÚJPEST – IPARI TERÜLETEN FELÚJÍTOTT HELYISÉG KIADÓ EXTRA KÖLTSÉGEK NÉLKÜL!!KIZÁRÓLAG A BALLA INGATLAN KÍNÁLATÁBAN!!
Kiadásra kínálok egy kiváló elhelyezkedésű, 210 nm-es, világos, földszinti helyiséget raktározásra és/vagy gyártási tevékenység végzésére, Újpest dinamikus ipari övezetében!
ELHELYEZKEDÉS: kiváló!
- Újpest ipari övezete
- IV. kerület, Baross utca
- Könnyen megközelíthető, utcai bejárat!
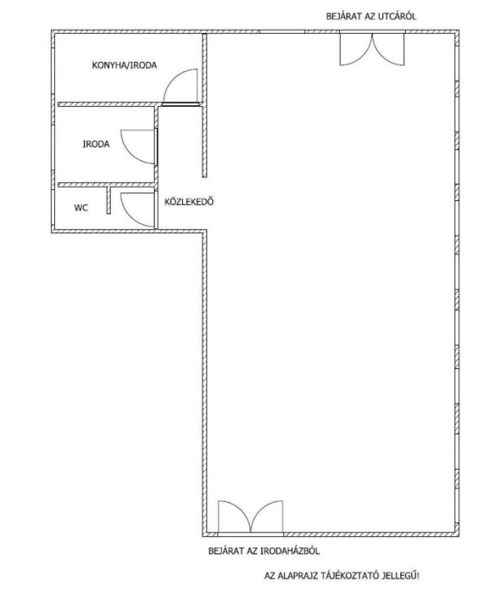
ELRENDEZÉS: kiváló!
- 210 nm a teljes raktár, 2 bejárattal
- melyből 168 nm egy nagy légtér,
- 42 nm-en: iroda, konyha és/vagy iroda, férfi/női mosdó
MŰSZAKI ÁLLAPOT: kiváló!
- Felújítás jelenleg folyamatban van!
- Bizonyos tekintetben igény szerint formálható még!
- Konyha, iroda mellékhelyiségek felújítása, kialakítása
- Külső: szigetelés, új bejárati kapuk
- Belső: új elektromos vezetékezés, szükség esetén 3 fázis, ipari áram (3 x 32A)
- LED világítás
- Fűtés: házközponti gázkazán egyedi méréssel!
PARKOLÁS:
- Utcai megközelítés
- Ingyenes utcai autóbeállási lehetőség
- Közös udvari használattal
BÉRLÉSI FELTÉTELEK:
- Havi bérleti díj: 500.000 Ft + áfa + rezsi/hó
- Rezsi: egyedi mérőórák
- Havi üzemeltetési költség nincs, közös költség nincs, portaszolgálati díj nincs!
- Bérelhető: 2026. június 1-től
- A bérleti szerződés megkötéséhez kéthavi kaució szükséges!
- Hosszútávú bérleti lehetőség (min. 1 év), biztosítva a stabilitást és a biztonságot
Megtisztelő hívását a hét minden napján fogadom, egyeztetés után mutatom! Telefonszámom:
Ne hagyja ki ezt a ritka lehetőséget, még a felújítás alatt saját vállalkozására formálható!