Debrecen, Belváros, Belváros
-
Kínálati ár: 350 000 Ft
Kalkulált ár: 967 Є -
59 m2
Alapterület
-
4
Szobaszám
- Alapterület 59 m2
- Telekterület -
- Szobaszám 4
- Web www.ingatlantajolo.hu/9321681
- Négyzetméter ár 5 932 Ft/m2
- Értékesítés típusa Kiadó / Kínál
- Kategória Lakás
- Típus Téglalakás
- Fűtés Gáz (cirkó)
- Építés éve 2003
- CSOK igénybe vehető nem
- Kilátás nincs megadva
- Tájolás nincs megadva
- Ingatlan komfort nincs megadva
- Parkolási lehetőség nincs megadva
- Építőanyag nincs megadva
- Bútorozott nincs megadva
- Akadálymentesített nincs megadva
- Erkély, terasz nincs megadva
- Kert kapcsolat nincs megadva
- Klíma nem
- Szigetelt nem
- Havi rezsiköltség nincs megadva
- Lakásbiztosítás nincs megadva
- Kábelszolgáltató nincs megadva
- Elektromos autó töltés nincs megadva
Energetikai besorolás:
Az ingatlan leírása
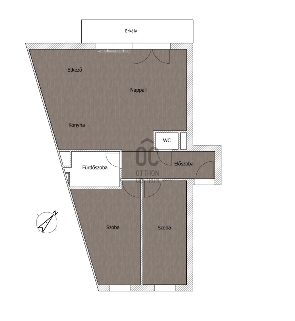
Debrecen szívében, a Berek utcán kiadó egy kivételes hangulatú, belső kétszintes, 59/84 m²-es, igényesen kialakított lakás vadonatúj bútorokkal berendezve.A zárt udvaros, rendezett társasházban mindössze 8 lakás található, a lépcsőház tiszta, ápolt.
Az elhelyezkedés kiváló: minden fontos pont — üzletek, éttermek, belváros, közlekedés — sétatávolságra elérhető.
Az alsó szinten:
- 2 hálószoba,
- tágas amerikai konyhás nappali + étkező,
- fürdőszoba, külön WC
- a nappaliból egy nagy méretű, csendes belső udvarra néző erkély nyílik.
A felső szinten:
1 tágas szoba, amely ideális dolgozószobának, vendégszobának vagy hálónak.
Azonnal költözhető
Teremgarázs beálló külön bérelhető: +20 000 Ft/hó
Bérleti díj: 350.000.-Ft/hó + rezsi
Minimum bérleti idő: 12 hónap
Ideális pároknak, egyedülállóknak vagy akár home office-ban dolgozóknak is.
Várom hívását, ha személyesen is szeretné megtekinteni!