Budapest VI. kerület, Ó utca
-
Kínálati ár: 480 000 Ft
Kalkulált ár: 1 221 Є -
162 m2
Alapterület
-
5
Szobaszám
- Alapterület 162 m2
- Telekterület -
- Szobaszám 5
- Web www.ingatlantajolo.hu/9295400
- Négyzetméter ár 2 963 Ft/m2
- Értékesítés típusa Kiadó / Kínál
- Kategória Lakás
- Típus Téglalakás
- Emelet 3.
- Állapot Újszerű állapotú
- Fűtés Elektromos
- Szintek száma 3
- CSOK igénybe vehető nem
- Kilátás nincs megadva
- Tájolás nincs megadva
- Ingatlan komfort nincs megadva
- Parkolási lehetőség nincs megadva
- Építőanyag nincs megadva
- Bútorozott nincs megadva
- Akadálymentesített nincs megadva
- Erkély, terasz nincs megadva
- Kert kapcsolat nincs megadva
- Klíma nem
- Szigetelt nem
- Havi rezsiköltség nincs megadva
- Lakásbiztosítás nincs megadva
- Kábelszolgáltató nincs megadva
- Elektromos autó töltés nincs megadva
Energetikai besorolás:
Az ingatlan leírása
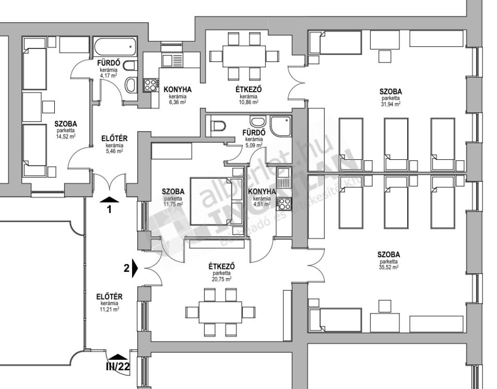
Kiváló helyen, az Ó utcában kiadó egy 5 szobás lakás!Budapesten a VII. kerületben, az Arany János utcai metrómegálló közelében, az Ó utcában, egy világos, jó elosztású, 3. emeleti, 162 m²-es, összesen 5 szobás lakás.
Ideális lehet különböző méretű CSALÁDOKNAK, EGYETEMISTÁKNAK, vagy akár CÉGEKNEK IS!
Az ingatlan elrendezésének köszönhetően akár két lakásként is használható.
További lakások elérhetőek!
Közös előtér 11 m2
A házban nincs lift, a felsőbb szintek viszont csendesebbek, és nyugodtabb lakást biztosít.
5 külön nyíló szoba, nagy belmagasság.
A lakás felszereltsége, mosógép, mikró, mosógép, elektromos főzőlap.
Mindkét lakásban tusolós fürdő, és Wc egyben.
1 LAKÁS:
- előtér
- konyha
- étkező
- fürdő
- szoba 32m2
- szoba 14,5 m2
Összesen: 73 m2
2 LAKÁS
- előtér
- fürdő
-konyha
- szoba 11 m2
- szoba 11,75
- szoba 35,5
Összesen: 78 m2
Kiváló közlekedésű, könnyen megközelíthető lakás, néhány perc sétára található az Arany János utcai metrómegálló, így a város bármely pontja gyorsan és egyszerűen elérhető.
A BÉRLÉS jellemzői:
- minimum 1 éves bérleti szerződés
- dohányzás nem megengedett
- beköltözhető 2 havi kaució + 1 havi bérleti díj megfizetése után
- közjegyzői nyilatkozat aláírása
Amennyiben a hirdetés felkeltette az érdeklődését, keressen bizalommal!
Kereső ügyfeleink számára szolgáltatásaink díjmentesek!