Debrecen, Hatvan utcai kert, Hatvan utcai kert
-
Kínálati ár: 400 000 Ft
Kalkulált ár: 1 018 Є -
125 m2
Alapterület
-
300 m2
Telekterület
-
4
Szobaszám
- Alapterület 125 m2
- Telekterület 300 m2
- Szobaszám 4
- Web www.ingatlantajolo.hu/9304693
- Négyzetméter ár 3 200 Ft/m2
- Értékesítés típusa Kiadó / Kínál
- Kategória Ház- házrész
- Típus Ikerház
- Fűtés Gáz (cirkó)
- Építés éve 2017
- Belső szintek nincs megadva
- Tetőtér beépíthető nem
- CSOK igénybe vehető nem
- Kilátás nincs megadva
- Tájolás nincs megadva
- Ingatlan komfort nincs megadva
- Parkolási lehetőség nincs megadva
- Építőanyag nincs megadva
- Bútorozott nincs megadva
- Akadálymentesített nincs megadva
- Erkély, terasz nincs megadva
- Klíma nem
- Szigetelt nem
- Havi rezsiköltség nincs megadva
- Lakásbiztosítás nincs megadva
- Kábelszolgáltató nincs megadva
- Elektromos autó töltés nincs megadva
Energetikai besorolás:
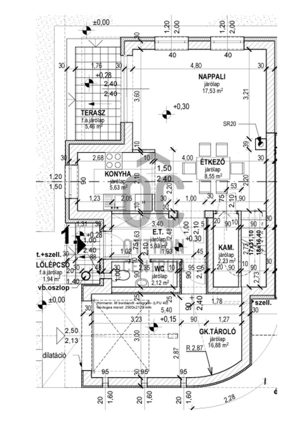
Az ingatlan leírása
Debrecen Hatvan utcai kerti részén, gyönyörű, modern környezetben, nappali+ 3 hálószobás ikerház kiadóKiváló lokáció, kedvelt, sokak által előnyben részesített környezet.
A belváros közelsége, illetve a nyugati városrész bevásárló üzleteinek rövid megközelíthetősége, és az autópálya gyors elérése is hatalmas előnyökkel jár az itt lakók számára.
Aszfaltozott, átmenő forgalomtól mentes utcában található.
Paraméterek:
- 2017-ben téglából épült, szigetelt, garázzsal kapcsolatos, ikerház.
- 125 nm alapterületű kétszintes, mediterrán jellegű épület
- 16 nm-s garázs, elektromos kapuval ellátva
- a földszinten: nappali - étkező, konyha, lépcső alatti tároló, és fördőszoba zuhanyzóval és WC- vel.
- emeleti részén: 3 hálószoba, 1 fürdőszoba, 1 háztartási helyiség került kialakításra
- műanyag, hőszigetelt nyílászárók
- kondenzációs gáz cirkó kazán biztosítja a fűtést és a melegvíz ellátást.
- padlófűtés a földszinten, radiátoros hőleadók az emeleti helyiségekben
- a nappali közvetlen kapcsolatos a kellemes déli tájolású fedett terasszal
- cc 150 nm -s parkosított, körbekerített kertben pihenheti ki a hétköznapok fáradalmait
Hamar birtokba vehető otthon.
2 havi kaució
Hívjon bizalommal, és nézze meg személyesen!
Debrecen, Hatvan utca, kert, eladó, kiadó, ház, iker, garázs