Kőszegszerdahely, Kőszegszerdahely
-
Kínálati ár: 225 000 Ft
Kalkulált ár: 573 Є -
70 m2
Alapterület
-
340 m2
Telekterület
-
3
Szobaszám
- Alapterület 70 m2
- Telekterület 340 m2
- Szobaszám 3
- Web www.ingatlantajolo.hu/9279235
- Négyzetméter ár 3 214 Ft/m2
- Értékesítés típusa Kiadó / Kínál
- Kategória Ház- házrész
- Típus Családi ház
- Építés éve 2023
- Belső szintek nincs megadva
- Tetőtér beépíthető nem
- CSOK igénybe vehető nem
- Kilátás nincs megadva
- Tájolás nincs megadva
- Ingatlan komfort nincs megadva
- Parkolási lehetőség nincs megadva
- Építőanyag nincs megadva
- Bútorozott nincs megadva
- Akadálymentesített nincs megadva
- Erkély, terasz nincs megadva
- Klíma nem
- Szigetelt nem
- Havi rezsiköltség nincs megadva
- Lakásbiztosítás nincs megadva
- Kábelszolgáltató nincs megadva
- Elektromos autó töltés nincs megadva
Energetikai besorolás:
Az ingatlan leírása
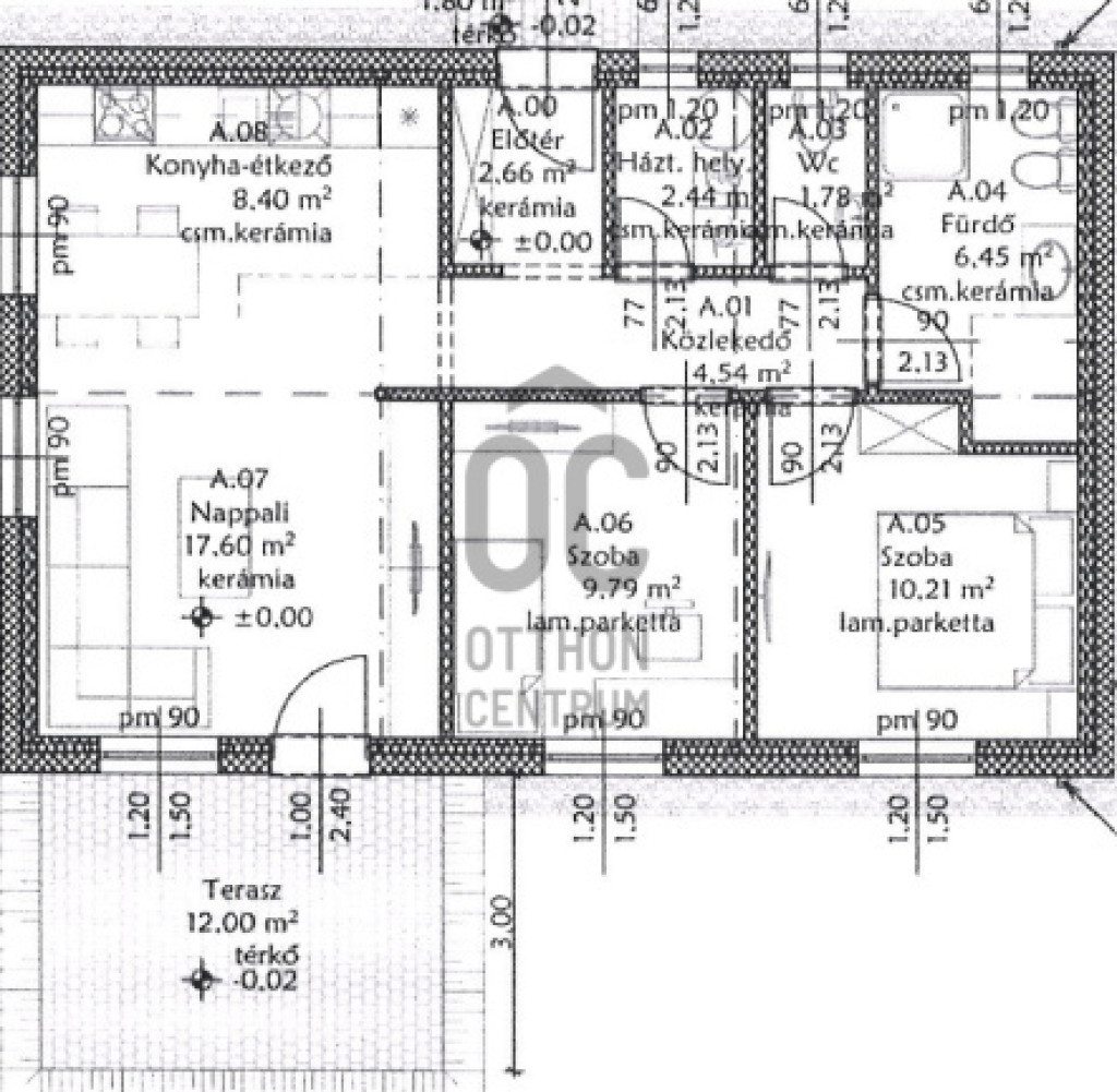
Kőszegszerdahelyen, található ez a br.70 nm-es, 2 szobás, kitűnő állapotú ház, amely kiváló lehetőséget kínál a bérlők számára. Az ingatlan magában foglalja a beépített bútorokat és szekrényeket, motoros redőnyöket, valamint egy 10 nm-es teraszt, amelyről csodálatos kilátás nyílik a kertre. Az infrafilm padló fűtésnek köszönhetően a lakás rendkívül gazdaságos és kényelmes. Parkolás telken belül kialakított közös parkolóban megoldott. A környék rendkívül csendes és biztonságos. Az ingatlan közelében találhatóak azok a közlekedési lehetőségek, amelyekkel könnyedén elérhető az osztrák határ, Kőszeg 5 km-re, Szombathely 17 km-re található.Az ingatlan minimum egy évre bérelhető, 3 havi kaució szükséges.
KIS állat egyedi megbeszélés alapján hozható.
Bérleti díj: 225.000 Ft+ rezsi (víz, villany fogyasztás alapján, közös költség)