Szeged, Szőreg, , Szőreg
-
Kínálati ár: 150 000 000 Ft
Kalkulált ár: 420 168 Є -
480 m2
Alapterület
-
520 m2
Telekterület
-
9 + 4 fél
Szobaszám
- Alapterület 480 m2
- Telekterület 520 m2
- Szobaszám 9 + 4 fél
- Web www.ingatlantajolo.hu/9185816
- Négyzetméter ár 312 500 Ft/m2
- Értékesítés típusa Eladó / Kínál
- Kategória Kereskedelmi és ipari ingatlan
- Típus Vendéglő, étterem
- Állapot Újszerű állapotú
- Szintek száma 2
- Építés éve 1926
- Belső szintek 2
- CSOK igénybe vehető nem
- Kilátás nincs megadva
- Tájolás nincs megadva
- Parkolási lehetőség nincs megadva
- Építőanyag nincs megadva
- Klíma nem
- Havi rezsiköltség nincs megadva
- Elektromos autó töltés nincs megadva
- Akadálymentesített nincs megadva
Energetikai besorolás:
Az ingatlan leírása
Home&People azonosító: #22902Hódi Kevin Ingatlanreferens
AMENNYIBEN KOLLÉGÁNK ELFOGLALT, KÉRJEN VISSZAHÍVÁST A SMS-BEN A es TELEFONSZÁMON AZ INGATANAZONOSÍTÓ MEGJELÖLÉSÉVEL!
ELADÓ ÜZLETHELYISÉG, SZŐREGEN!
Eladásra kínálom Szőreg az alábbi paraméterekkel rendelkező újszerű üzlethelyiséget:
Szegeden, Szőreg városrész egyik fő utcáján található sarki épület szuper helyen, könnyen megközelíthető, 10 percre a belvárostól, buszmegálló előtte.
Tulajdoni lapja alapján "kivett lakóház, udvar" megnevezésű.
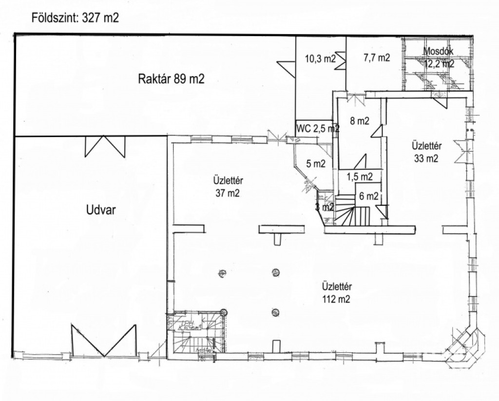
A földszint jelenleg üzleti célra hasznosított:
-kb 250 m2 hasznos terület (nagyterem, konyha, mellékhelyiségek, öltöző, fedett száraz raktár)
-padlófűtés 2 gázkazánnal
-klimatizált, összesen 3 klímával
-kamera- és riasztórendszer kiépítve
Tetőtér:
-2 hálószobás, konyha-nappalis lakás fürdőszobával 76 m2
-bővíthető további kb 100 m2-rel
-2 oldalról megközelíthető külön bejárattal
-padlófűtés és klíma
Telek:
-520 m2
-kocsibejáróval
-további tárolásra, bővítésre alkalmas
-szomszédos telekkel bővíthető, mely ugyancsak eladó
Alkalmas:
-többgenerációs családi háznak,
-céges telephelynek,
-raktárnak,
-társasházi lakásoknak,
-bemutatóteremnek, üzlethelyiségnek,
-irodának, irodaháznak,
-kiadó lakásoknak,
-edzőteremnek,
-szépségszalonnak,
-üzemi konyhának, menzának, pékségnek,
-csak a fantáziád szab határt...!
Az idén még nagyon kedvező m2 áron, bruttó, áfamentes!
Akár céggel együtt (tartozásmentes, pályázatképes)!
Cégünk az ügyfeleink részére ingyenesen vállalja, a megegyezés sikeres lebonyolítását, jogi tanácsadást, illetve teljeskörü CSOK és hitel ügyintézést!
Kérje ingyenes tájékoztatásunkat telefonon, vagy személyesen irodánkban a Bécsi krt. 18. szám alatt!
Amennyiben felkeltettem érdeklődését, kérem hívjon bizalommal.
A kínálatában található összes ingatlannal kapcsolatban felvilágosítást tudunk nyújtani, a Home and People Ingatlanügynökség szegedi irodájában a Bécsi krt. 18. szám alatt.
Szolgáltatásaink vevőink részére díjmentesek.
Irányár: 150 000 000 Ft
H&P azonosító: #22902