Tök
-
Kínálati ár: 56 900 000 Ft
Kalkulált ár: 156 749 Є -
56 m2
Alapterület
-
361 m2
Telekterület
-
2
Szobaszám
- Alapterület 56 m2
- Telekterület 361 m2
- Szobaszám 2
- Web www.ingatlantajolo.hu/9301157
- Négyzetméter ár 1 016 071 Ft/m2
- Értékesítés típusa Eladó / Kínál
- Kategória Kereskedelmi és ipari ingatlan
- Típus Üzlet
- Építés éve 1980
- Belső szintek nincs megadva
- CSOK igénybe vehető nem
- Kilátás nincs megadva
- Tájolás nincs megadva
- Parkolási lehetőség nincs megadva
- Építőanyag nincs megadva
- Klíma nem
- Havi rezsiköltség nincs megadva
- Elektromos autó töltés nincs megadva
- Akadálymentesített nincs megadva
Energetikai besorolás:
Az ingatlan leírása
KIVÁLÓ ÜZLETI LEHETŐSÉG ZSÁMBÉK HATÁRÁBAN, TÖK KÖZPONTJÁBAN!Eladó egy nettó 56 m²-es, kiváló esztétikai és műszaki állapotú üzlethelyiség 361 m²-es saját telken, Pest megyében, Tök község központjában, a forgalmas 102-es főút mellett, nagy átmenő forgalommal és központi elhelyezkedéssel.
A közelben található buszmegálló, Waldorf iskola, óvoda és orvosi rendelő, mindössze 1 perc sétára, ami folyamatos ügyfélforgalmat biztosít.
Az épület kb. 1980-ban épült, majd 2005-ben teljes körűen felújították, földszintes, hagyományos építési módú, kiváló esztétikai és műszaki állapotú.
Az épülethez riasztó és inverteres klíma is tartozik, ami komfortossá és biztonságossá teszi a helyiségeket.
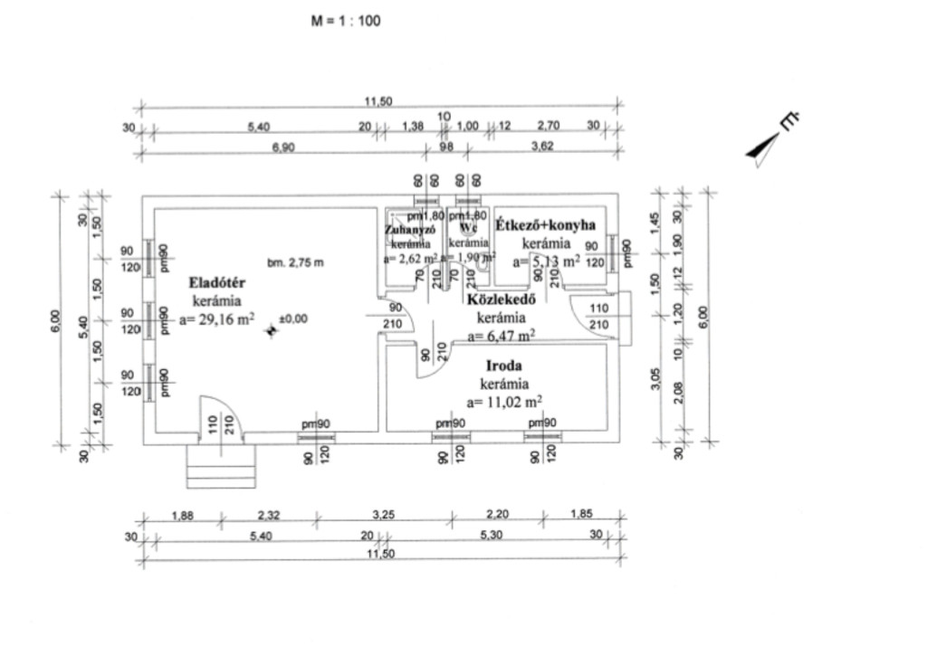
Helyiségek:
Eladótér: 30 m²
Konyha: 5,13 m²
Raktár / iroda: 11 m²
Közlekedő: 6,47 m²
Zuhanyzó: 2,62 m²
WC: 1,90 m²
AZ INGATLAN VT-4-ÓF JELŰ TELEPÜLÉSKÖZPONTI ÖVEZETBEN TALÁLHATÓ, AHOL 40% BEÉPÍTHETŐSÉG ÉS A TETŐTÉR BEÉPÍTÉSI LEHETŐSÉGE ADOTT, ÍGY AZ ÉPÜLET TOVÁBBI BŐVÍTÉSRE ALKALMAS.
Az adottságok miatt az ingatlan többféle vállalkozási célra ideális, például:
vendéglátó egység (terasz kialakítható)
magánpraxis (orvosi rendelő, fogászat stb.)
szolgáltató tevékenység
kereskedelmi üzlet vagy iroda
Az udvarban több autó részére kialakított saját parkoló található, ami külön előnyt jelent ügyfélforgalommal működő vállalkozások számára.
További szolgáltatások Ügyfeleink részére kedvező feltételekkel:
ingatlan szakjogász, adótanácsadó, biztosítás,
okleveles ingatlan értékbecslő, energetikus,
referenciával rendelkező generál kivitelező, lakberendező.
Hitelközvetítés, 13 bankkal áll kollegánk kapcsolatban, hogy megtalálja Önnek a legmegfelelőbbet!
A hirdetésben szereplő adatok tájékoztató jellegűek!
Ezúton tájékoztatjuk, hogy Ön mint érdeklődő, a hirdetésben megjelölt telefonszám felhívásával hozzájárul személyes adatai – így különösen neve és telefonszáma biztonságos és körültekintő kezeléséhez, nyilvántartásához. Adatvédelmi oldalunkon találja a teljes körű tájékoztatást. Továbbá tudomásul veszi, hogy az ingatlan bemutatását megelőzően a kollégánk bemutatásra, kérni fog Öntől és az Önnel együtt megtekintő személyektől egy fényképes beazonosításra alkalmas okmányt. Azonosítás hiányában nincs módunk bemutatni az ingatlant! Megtekintés után a megtekintés tényét aláírásával nyugtázza.