Sormás
-
Kínálati ár: 650 000 000 Ft
Kalkulált ár: 1 820 728 Є -
580 m2
Alapterület
-
2 900 m2
Telekterület
- Alapterület 580 m2
- Telekterület 2 900 m2
- Szobaszám -
- Web www.ingatlantajolo.hu/9268867
- Négyzetméter ár 1 120 690 Ft/m2
- Értékesítés típusa Eladó / Kínál
- Kategória Iroda és irodaház
- Típus Telephely
- Emelet földszint
- Fűtés Egyéb fűtés
- Építés éve 2004
- Belső szintek nincs megadva
- Tetőtér beépíthető nem
- CSOK igénybe vehető nem
- Kilátás nincs megadva
- Tájolás nincs megadva
- Ingatlan komfort nincs megadva
- Parkolási lehetőség nincs megadva
- Építőanyag nincs megadva
- Bútorozott nincs megadva
- Akadálymentesített nincs megadva
- Erkély, terasz nincs megadva
- Klíma nem
- Szigetelt nem
- Havi rezsiköltség nincs megadva
- Lakásbiztosítás nincs megadva
- Kábelszolgáltató nincs megadva
- Elektromos autó töltés nincs megadva
Energetikai besorolás:
Az ingatlan leírása
Eladó vállalkozás Sormási telephellyel és Becsehelyi Bolttal!Sormás telephely:
Sormás településen, pár percre az M7-es autópálya felhajtójától, vált eladóvá ez a Hús-Hentesárú nagyker.
A vállalkozás a mai napig nagyon jó forgalommal rendelkező cég, mely most akár az Ön is lehet.
A vállalkozás a teljes berendezéssel, gépparkkal, ingatlanokkal együtt, egy szóval mindennel együtt kerül értékesítésre, beleértve a 27 év alatt kialakított teljes vásárlói partnerkapcsolatokat is.
A cégben lévő gépek, eszközök:
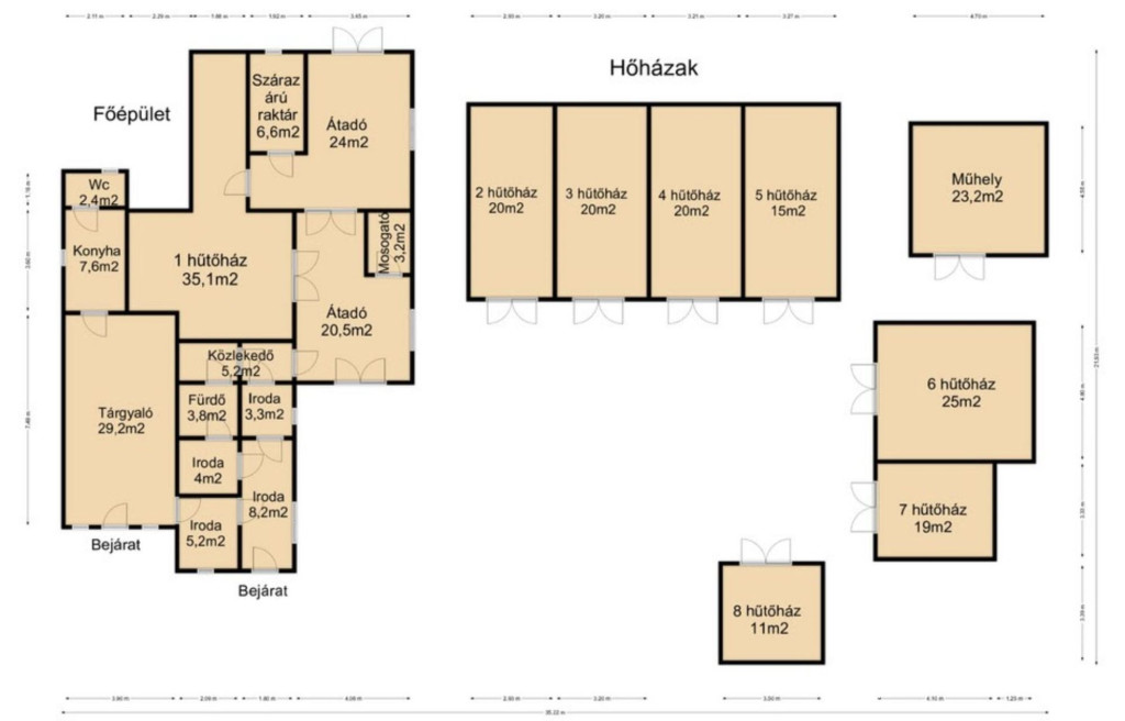
- 18 átalakított szervízelt hűtőautó, 1 targonca, 1 terepjáró, teljes iroda felszerelés, főépület mely 2004-ben épült számos helységgel, 8 hűtőkamra ( 0- 3 fokos), műhely, kamera és riasztórendszer, tárolóládák...stb.
A cégben lévő alkalmazottak szintén szeretnének tovább itt dolgozni!
Ezen telephelyen, a napelemes rendszer kiépítése is folyamatban van.
A vállalkozás másik része Becsehelyen található, közvetlen főútvonal mentén, mely egy 300m2-es bolt-abc.
Ezen ingatlan 2015-ben teljesen felújításra került.
Amik elkészültek:
- tetőhéjazat cseréje, teljes víz és villamoshálózat cseréje, hideg melegburkolatok cseréje a teljes üzlettérben.
- új fa tüzelésű központi fűtés beépítése, 1000 literes puffer tartállyal valamint Klímák felszerelése.
- közel 20 db külső parkoló kialakítása.
- külső homlokzat egyedi megjelenésé tétele.
Az épületben lévő teljes felszerelés, polcok, hűtők valamint a teljes árúkészlet a vételár részét képezi.
A hirdetésben szereplő árban a mind a Sormási telephely, mind a Becsehelyi bolt benne van.
A Becsehelyi bolt igény szerint külön is megvásárolható, melynek ára teljes árukészlettel együtt 140 millió Ft.
Ha Ön szeretne egy jelenleg is üzemelő, nagyon jó éves árbevétellel rendelkező vállalkozást, ami kiváló befektetés is egyben, akkor ezt nem szabad kihagynia!
FONTOS: tulajdonosi kérésre a Telephely és a Bolt megtekintése csak és kizárólag előre egyeztetett időpontban megoldható csak is az ingatlanirodán keresztül!!!
Iroda: Nagykanizsa Platán sor 7 Kattintson ide a hirdető iroda weboldalának megtekintéséhez!