Szeged
-
Kínálati ár: 99 000 000 Ft
Kalkulált ár: 251 908 Є -
90 m2
Alapterület
-
1 + 2 fél
Szobaszám
- Alapterület 90 m2
- Telekterület -
- Szobaszám 1 + 2 fél
- Web www.ingatlantajolo.hu/9264610
- Négyzetméter ár 1 100 000 Ft/m2
- Értékesítés típusa Eladó / Kínál
- Kategória Lakás
- Típus Téglalakás
- Emelet 1.
- Állapot Új építésű
- Szintek száma 5
- Építés éve 2024
- CSOK igénybe vehető nem
- Kilátás nincs megadva
- Tájolás nincs megadva
- Ingatlan komfort nincs megadva
- Parkolási lehetőség nincs megadva
- Építőanyag nincs megadva
- Bútorozott nincs megadva
- Akadálymentesített nincs megadva
- Erkély, terasz nincs megadva
- Kert kapcsolat nincs megadva
- Klíma nem
- Szigetelt nem
- Havi rezsiköltség nincs megadva
- Lakásbiztosítás nincs megadva
- Kábelszolgáltató nincs megadva
- Elektromos autó töltés nincs megadva
Energetikai besorolás:
Ez a hirdetés megfelelhet a FIX 3%-os programnak. Tudj meg többet a részletekről itt.
Az ingatlan leírása
Eladó prémium lakás Szegeden, az Örökzöld Lakóparkban!Azonnal birtokba vehető újépítésű lakások kulcsrakész állapotban eladóak. Már csak 4 db lakás elérhető.Használatbavételi engedéllyel rendelkezik az épület, hitel igényelhető a lakásokra.
Eladó lakás Szegeden, az Örökzöld Lakóparkban – tágas terek, napfényes otthon, különleges erkély!
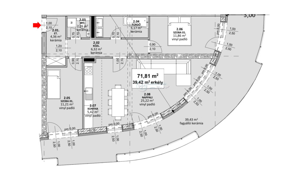
Az Örökzöld Lakópark I. ütemében, a lifttel felszerelt társasház első emeletén elérhető ez a különleges adottságokkal rendelkező, amerikai konyhás nappalis lakás (2. számú), amely nemcsak méretével, hanem fényes, jól élhető tereivel is kitűnik a kínálatból.
A lakás nettó alapterülete 71,81 m², amelyhez egy impozáns, 39,42 m²-es, jól bútorozható erkély tartozik – ideális helyszín lehet pihenéshez, szabadtéri étkezésekhez vagy akár zöld környezet kialakításához is. A lakás legnagyobb fala íves kialakítású, amely több ablaknak ad helyet, így a természetes fény szinte egész nap beáramlik, különlegesen világossá téve az enteriőrt. Az amerikai konyhás nappali mellett két külön nyíló hálószoba és egy külön helyiségben található WC szolgálja a kényelmet.
A társasház lifttel felszerelt, a lakók kényelmét igényes kivitelezés és nyugodt, környezet szolgálja. A környék kiváló infrastruktúrával rendelkezik: közelben megtalálhatók üzletek, iskolák, óvodák, valamint a tömegközlekedés is könnyen elérhető.
A képek a már kész lakásról készültek, a látványképek virtuálisan berendezett fotók a lakás helyiségeiről, a bútorok, dekorációk illusztrációk.
Ideális választás mindazoknak, akik kényelmes, modern környezetben szeretnének élni, miközben a város nyújtotta előnyöket élvezhetik.
A liftes, akadálymentesített házban már csak néhány lakás elérhető – ne maradjon le!
Időpont egyeztetés után személyesen a helyszínen is megtekinthetőek a lakások.
A kivitelező megbízható, és számtalan referenciával rendelkezik, melyek Szeged különböző pontjain megtalálhatóak.
Videók is elérhetőek:
https://youtube.com/shorts/vRr1H-aT_6s?si=d_t9knGHI9KETcms
https://youtube.com/shorts/9j22iPsTenA?si=uf-A7LQrPSRhQkl9
https://youtube.com/shorts/1icYVXqkCE0?si=NEGJTYoGxEYPkl1H
https://youtube.com/shorts/ZUXHHegW3wk?si=4uFJf15_xNyojJlK
A projektről bővebb információért kérjen email-s vagy telefonos tájékoztatást.
A tervdokumentáció az irodánkban a Csongrádi sgt. 41. szám alatt előzetes egyeztetés után megtekinthető.
Amennyiben a vásárláshoz hitelre van szüksége, egyedi igényekre szabott lakáshitelekkel állunk rendelkezésére. Bank független hiteltanácsadónk az országban elérhető összes bank és hitelintézet ajánlatát versenyezteti az Ön számára díjmentesen.