Szeged, Tarján, , Tarján
-
Kínálati ár: 45 900 000 Ft
Kalkulált ár: 127 855 Є -
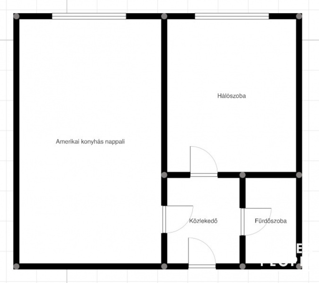
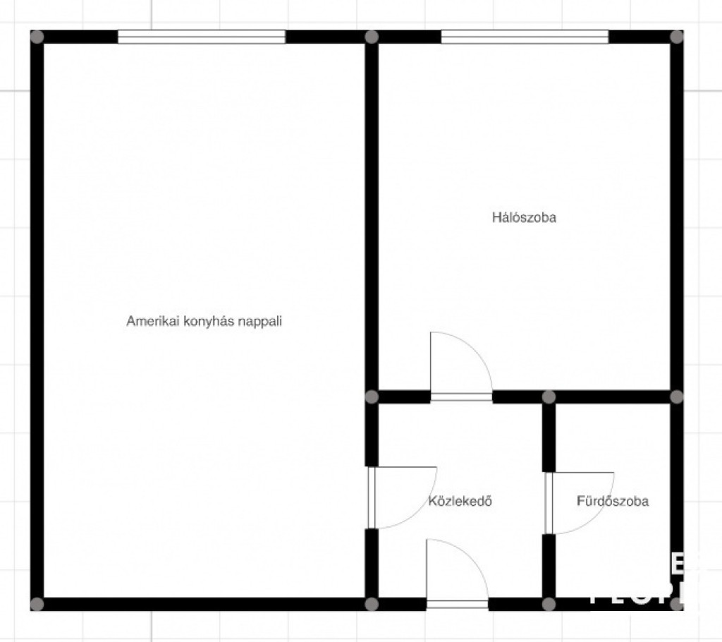
35 m2
Alapterület
-
1 + 1 fél
Szobaszám
- Alapterület 35 m2
- Telekterület -
- Szobaszám 1 + 1 fél
- Web www.ingatlantajolo.hu/9304016
- Négyzetméter ár 1 311 429 Ft/m2
- Értékesítés típusa Eladó / Kínál
- Kategória Lakás
- Típus Téglalakás
- Emelet 9.
- Állapot Felújított
- Fűtés Távfűtés egyedi méréssel
- Szintek száma 10
- Építés éve 1980
- CSOK igénybe vehető nem
- Kilátás nincs megadva
- Tájolás nincs megadva
- Ingatlan komfort nincs megadva
- Parkolási lehetőség nincs megadva
- Építőanyag nincs megadva
- Bútorozott nincs megadva
- Akadálymentesített nincs megadva
- Erkély, terasz nincs megadva
- Kert kapcsolat nincs megadva
- Klíma nem
- Szigetelt nem
- Havi rezsiköltség nincs megadva
- Lakásbiztosítás nincs megadva
- Kábelszolgáltató nincs megadva
- Elektromos autó töltés nincs megadva
Energetikai besorolás:
Ez a hirdetés megfelelhet a FIX 3%-os programnak. Tudj meg többet a részletekről itt.
Az ingatlan leírása
Home&People azonosító: #23719Budai Mihály Vezető referens
AMENNYIBEN KOLLÉGÁNK ELFOGLALT, KÉRJEN VISSZAHÍVÁST A SMS-BEN A es TELEFONSZÁMON AZ INGATANAZONOSÍTÓ MEGJELÖLÉSÉVEL!
ELADÓ LAKÁS, SZEGED!
Eladásra kínálom Szeged-Tarján városrészen az alábbi paraméterekkel rendelkező lakást:
▶ Lokáció: Tarján
▶ Ingatlan: 35 nm
▶ Elosztása: amerikai konyhás nappali, hálószoba, fürdőszoba, közlekedő
▶ 10 szintes társasház 9. emeletén található
▶Kifizetett panelprogramos épületben
▶Teljeskörűen Felújított lakás
Cégünk az ügyfeleink részére ingyenesen vállalja, a megegyezés sikeres lebonyolítását, jogi tanácsadást, illetve teljeskörü CSOK és hitel ügyintézést!
Kérje ingyenes tájékoztatásunkat telefonon, vagy személyesen irodánkban a Bécsi krt. 18. szám alatt!
Amennyiben felkeltettem érdeklődését, kérem hívjon bizalommal.
A kínálatában található összes ingatlannal kapcsolatban felvilágosítást tudunk nyújtani, a Home and People Ingatlanügynökség szegedi irodájában a Bécsi krt. 18. szám alatt.
Szolgáltatásaink vevőink részére díjmentesek.
Irányár: 45.900.000 Ft
H&P azonosító: #23719