Pétfürdő, Pétfürdő
-
Kínálati ár: 64 900 000 Ft
Kalkulált ár: 165 140 Є -
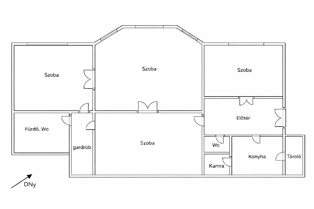
137 m2
Alapterület
-
4 + 1 fél
Szobaszám
- Alapterület 137 m2
- Telekterület -
- Szobaszám 4 + 1 fél
- Web www.ingatlantajolo.hu/9283328
- Négyzetméter ár 473 723 Ft/m2
- Értékesítés típusa Eladó / Kínál
- Kategória Lakás
- Típus Téglalakás
- Emelet 2.
- Állapot Átlagos
- Fűtés Gáz (cirkó)
- Építés éve 1930
- CSOK igénybe vehető nem
- Kilátás nincs megadva
- Tájolás nincs megadva
- Ingatlan komfort nincs megadva
- Parkolási lehetőség nincs megadva
- Építőanyag nincs megadva
- Bútorozott nincs megadva
- Akadálymentesített nincs megadva
- Erkély, terasz nincs megadva
- Kert kapcsolat nincs megadva
- Klíma nem
- Szigetelt nem
- Havi rezsiköltség nincs megadva
- Lakásbiztosítás nincs megadva
- Kábelszolgáltató nincs megadva
- Elektromos autó töltés nincs megadva
Energetikai besorolás:
Ez a hirdetés megfelelhet a FIX 3%-os programnak. Tudj meg többet a részletekről itt.
Az ingatlan leírása
Veszprém vármegyében, Pétfürdőn eladóvá vált egy 137m2-es polgári tégla lakás. A lakás és a társasház is jogilag rendezett, teher- és tartozásmentes. A társasházon 2025-ben teljes tető-, ereszcsatorna csere, 3x20A villamoshálózat fejlesztés történt. A lakás közös költsége 25.000 Ft/hó, a fűtés gázkazánnal, a melegvíz ellátást villanybojler biztosítja. A lakásban van 4 egész szoba, 1 félszoba, konyha, fürdőszoba+wc, kamra illetve még egy külön wc. A parkolás természetesen ingyenes a ház előtt.Amennyiben megtetszett Önnek a hirdetés és bármi kérdése lenne, kérem keressen bizalommal. Köszönöm!