Miskolc, Közdomb
-
Kínálati ár: 215 000 000 Ft
Kalkulált ár: 602 241 Є -
143 m2
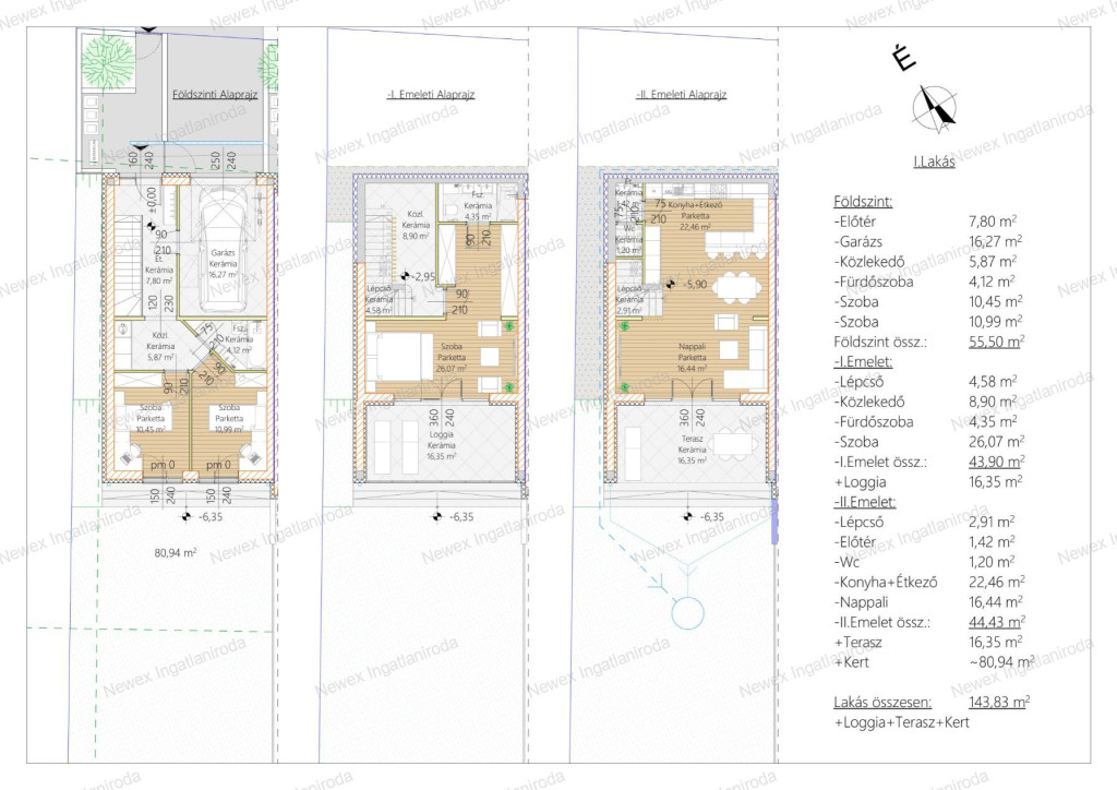
Alapterület
-
4
Szobaszám
- Alapterület 143 m2
- Telekterület -
- Szobaszám 4
- Web www.ingatlantajolo.hu/9295363
- Négyzetméter ár 1 503 497 Ft/m2
- Értékesítés típusa Eladó / Kínál
- Kategória Lakás
- Típus Téglalakás
- Emelet földszint
- Építés éve 2026
- CSOK igénybe vehető nincs megadva
- Kilátás nincs megadva
- Tájolás nincs megadva
- Ingatlan komfort nincs megadva
- Parkolási lehetőség nincs megadva
- Építőanyag nincs megadva
- Bútorozott nincs megadva
- Akadálymentesített nincs megadva
- Erkély, terasz nincs megadva
- Kert kapcsolat nincs megadva
- Klíma nincs megadva
- Szigetelt nincs megadva
- Havi rezsiköltség nincs megadva
- Lakásbiztosítás nincs megadva
- Kábelszolgáltató nincs megadva
- Elektromos autó töltés nincs megadva
Energetikai besorolás:
Az ingatlan leírása
Miskolc egyik legszebb, zöldövezeti részén, a Közdombon, a Százszorszép utcában 2027-es befejezéssel egy különleges hangulatú, új építésű otthont a Százszorszépház lakópark exkluzív, mindössze négy lakásos társasházában.Az épület koncepciója a klasszikus sorházi kialakítást ötvözi majd a legmodernebb építészeti megoldásokkal, így a lakók egyszerre élvezhetik a társasházi forma előnyeit és a családi házak nyugalmát. A projekt azok számára készül, akik értékelik a tágas tereket, a privát szférát és a minőségi környezetet.
A 143,83 m²-es, háromszintes lakás átgondolt elrendezésének köszönhetően ideális választás családok számára. A kényelmes utcaszinti bejárattól és garázstól indulva a privát hálószobákon át jutunk el a világos, kertkapcsolatos nappalihoz, amely a mindennapi élet központi tere lehet.
A lakáshoz saját garázs és önálló kertkapcsolat tartozik, így a lakók valódi kertvárosi életérzést élvezhetnek, miközben a városi infrastruktúra is könnyen elérhető.
Főbb jellemzők:
- 143,83 m² nettó alapterület,
- nappali + 3 hálószoba,
- háromszintes kialakítás,
- saját kertkapcsolat,
- garázs tartozik a lakáshoz,
- modern, kis lakásszámú társasház (mindössze 4 lakás),
- csendes, zöldövezeti környezet.
A Százszorszép utca kiváló elhelyezkedése egyszerre biztosít nyugodt, kertvárosi környezetet és gyors kapcsolatot a város központjával. A közelben megtalálhatók az iskolák, bevásárlási lehetőségek és a tömegközlekedés is.
Ez az ingatlan tökéletes választás azok számára, akik egy tágas, modern és értékálló otthont keresnek Miskolc egyik legjobb adottságú részén. Az építés 2026 tavasz
Irányár: 215 000 000 Ft