Levél
-
Kínálati ár: 49 900 000 Ft
Jelenlegi ár: 49 900 000 Ft
Korábbi ár: 59 900 000 Ft
Kalkulált ár: 137 466 Є59 900 000 Ft
-
52 m2
Alapterület
-
2
Szobaszám
- Alapterület 52 m2
- Telekterület -
- Szobaszám 2
- Web www.ingatlantajolo.hu/9271405
- Négyzetméter ár 959 615 Ft/m2
- Értékesítés típusa Eladó / Kínál
- Kategória Lakás
- Típus Téglalakás
- Emelet 1.
- Állapot Új építésű
- Fűtés Geotermikus
- Szintek száma 3
- Építés éve 2026
- CSOK igénybe vehető nem
- Kilátás nincs megadva
- Tájolás nincs megadva
- Ingatlan komfort nincs megadva
- Parkolási lehetőség nincs megadva
- Építőanyag nincs megadva
- Bútorozott nincs megadva
- Akadálymentesített nincs megadva
- Erkély, terasz nincs megadva
- Kert kapcsolat nincs megadva
- Klíma nem
- Szigetelt nem
- Havi rezsiköltség nincs megadva
- Lakásbiztosítás nincs megadva
- Kábelszolgáltató nincs megadva
- Elektromos autó töltés nincs megadva
Energetikai besorolás:
Ez a hirdetés megfelelhet a FIX 3%-os programnak. Tudj meg többet a részletekről itt.
Az ingatlan leírása
Napsugár Lakópark – új otthon születikA Napsugár Lakóparkban olyan új építésű lakások készülnek, amelyek hosszú távon is kényelmes és élhető otthont biztosítanak.
A projekt két különálló épületben valósul meg, átgondolt lakásmixszel, modern szemlélettel és jövőbe mutató koncepcióval.
Az értékesítés első szakasza különösen kedvező lehet azok számára, akik első otthonukat keresik, és szeretnének már a kezdetektől részesei lenni egy minőségi fejlesztésnek.
Tervezett kulcsrakész átadás: 2027 II. negyedév
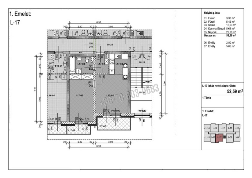
Jelen hirdetésben szereplő első emeleti 52,59 m2 hasznos alapterülettel rendelkezik, elosztását tekintve rendelkezik egy amerikai konyhás nappalival, hálószobával, egy fürdőszobával, valamint egy 5,85 nagyságú erkéllyel.
Minőségi kivitelezés:
Fűtés: gáz+ hőszivattyús hibrid rendszer padlófűtéssel, lakásonként egyedi mérőórával, klíma előkészítéssel
Nyílászárók: 3 rétegű, 5 légkamrás hőszigetelt üvegezés
Hőszigetelés: 15 cm EPS rendszer
Szerkezet: PTH30 N+F falazat, monolit vasbeton födém
A feltüntetett vételár, fűtéskész állapotra vonatkozik. Igény esetén a kivitelező vállalja a kulcsrakész befejezést is. Tároló és parkoló az ingatlanhoz külön vásárolható!
Amennyiben felkeltette ez a hirdetés az érdeklődését vagy további kérdései vannak, akkor keressen bizalommal.
Irodánk készséggel segít hitel, támogatások díjmentes ügyintézésében is.