Levél
-
Kínálati ár: 48 100 000 Ft
Jelenlegi ár: 48 100 000 Ft
Korábbi ár: 52 490 000 Ft
Kalkulált ár: 132 507 Є52 490 000 Ft
-
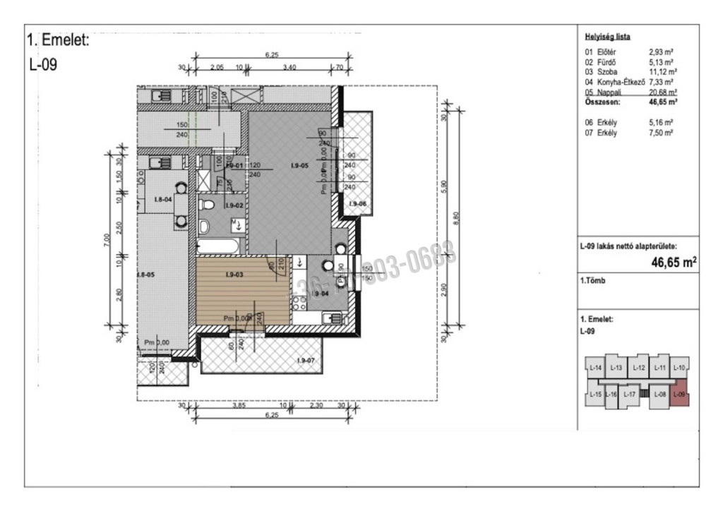
47 m2
Alapterület
-
2
Szobaszám
- Alapterület 47 m2
- Telekterület -
- Szobaszám 2
- Web www.ingatlantajolo.hu/9270285
- Négyzetméter ár 1 023 404 Ft/m2
- Értékesítés típusa Eladó / Kínál
- Kategória Lakás
- Típus Téglalakás
- Emelet 1.
- Állapot Új építésű
- Fűtés Geotermikus
- Szintek száma 3
- Építés éve 2026
- CSOK igénybe vehető nem
- Kilátás nincs megadva
- Tájolás nincs megadva
- Ingatlan komfort nincs megadva
- Parkolási lehetőség nincs megadva
- Építőanyag nincs megadva
- Bútorozott nincs megadva
- Akadálymentesített nincs megadva
- Erkély, terasz nincs megadva
- Kert kapcsolat nincs megadva
- Klíma nem
- Szigetelt nem
- Havi rezsiköltség nincs megadva
- Lakásbiztosítás nincs megadva
- Kábelszolgáltató nincs megadva
- Elektromos autó töltés nincs megadva
Energetikai besorolás:
Ez a hirdetés megfelelhet a FIX 3%-os programnak. Tudj meg többet a részletekről itt.
Az ingatlan leírása
Napsugár Lakópark – új otthon születikA Napsugár Lakóparkban olyan új építésű lakások készülnek, amelyek hosszú távon is kényelmes és élhető otthont biztosítanak.
A projekt két különálló épületben valósul meg, átgondolt lakásmixszel, modern szemlélettel és jövőbe mutató koncepcióval.
Az értékesítés első szakasza különösen kedvező lehet azok számára, akik első otthonukat keresik, és szeretnének már a kezdetektől részesei lenni egy minőségi fejlesztésnek.
Tervezett kulcsrakész átadás: 2027 II. negyedév
Jelen hirdetésben szereplő első emeleti lakás 47,19 m2 hasznos alapterülettel rendelkezik, elosztását tekintve rendelkezik egy amerikai konyhás nappalival, hálószobával, egy fürdőszobával, valamint egy 5,16 m2 és egy 7,5 m2 nagyságú erkéllyel.
Minőségi kivitelezés:
Fűtés: gáz+ hőszivattyús hibrid rendszer padlófűtéssel, lakásonként egyedi mérőórával, klíma előkészítéssel
Nyílászárók: 3 rétegű, 5 légkamrás hőszigetelt üvegezés
Hőszigetelés: 15 cm EPS rendszer
Szerkezet: PTH30 N+F falazat, monolit vasbeton födém
A feltüntetett vételár, fűtéskész állapotra vonatkozik. Igény esetén a kivitelező vállalja a kulcsrakész befejezést is. Tároló és parkoló az ingatlanhoz külön vásárolható!
Amennyiben felkeltette ez a hirdetés az érdeklődését vagy további kérdései vannak, akkor keressen bizalommal.
Irodánk készséggel segít hitel, támogatások díjmentes ügyintézésében is.