Hévíz, Hévíz
-
Kínálati ár: 124 800 000 Ft
Kalkulált ár: 343 802 Є -
98 m2
Alapterület
-
4
Szobaszám
- Alapterület 98 m2
- Telekterület -
- Szobaszám 4
- Web www.ingatlantajolo.hu/9270044
- Négyzetméter ár 1 273 469 Ft/m2
- Értékesítés típusa Eladó / Kínál
- Kategória Lakás
- Típus Téglalakás
- Építés éve 2022
- CSOK igénybe vehető nem
- Kilátás nincs megadva
- Tájolás nincs megadva
- Ingatlan komfort nincs megadva
- Parkolási lehetőség nincs megadva
- Építőanyag nincs megadva
- Bútorozott nincs megadva
- Akadálymentesített nincs megadva
- Erkély, terasz nincs megadva
- Kert kapcsolat nincs megadva
- Klíma nem
- Szigetelt nem
- Havi rezsiköltség nincs megadva
- Lakásbiztosítás nincs megadva
- Kábelszolgáltató nincs megadva
- Elektromos autó töltés nincs megadva
Energetikai besorolás:
Az ingatlan leírása
Energiahatékony, modern kialakítású, azonnal költözhető lakás saját kerttel és páratlan városi panorámával!Hévíz nyugodt, exkluzív részén kínáljuk megvételre ezt a 2022-ben épült, családi ház jellegű, kétszintes prémium lakást, amely a telek felső, intim részén helyezkedik el, 245 m² saját kertkapcsolattal. Az ingatlan ideális választás állandó lakhatásra, nyaralónak vagy befektetésnek egyaránt.
FŐBB JELLEMZŐK:
-Hasznos alapterület: 98 m²
-Összterület teraszokkal: közel 150 m²
-Saját kert : 245m²
-Építés éve: 2022
- belső két szintes
-Energetikai besorolás: BB – energiahatékony
MŰSZAKI TARTALOM– hosszú távra tervezve
-Falazat/Szigetelés :30 cm-es Porotherm tégla, 15 cm homlokzati hőszigetelés, 30 cm födémszigetelés
-Minőségi tetőszerkezet cserépfedéssel
-7 kW-os napelemes rendszer (még 7 évig szaldóelszámolással)
-Rendkívül alacsony fenntartási költségek
- Áram erősség : 3x25 A + 1X 32 A
❄️Komfort minden évszakban
-Padlófűtés, elektromos radiátorok
-3 db hűtő-fűtő klíma
-Elektromos melegvíz-ellátás
-3 rétegű üvegezésű műanyag nyílászárók
-Távirányítású, motoros alumínium redőnyök + szúnyoghálók
Helyiségkiosztás – átgondolt, élhető terek
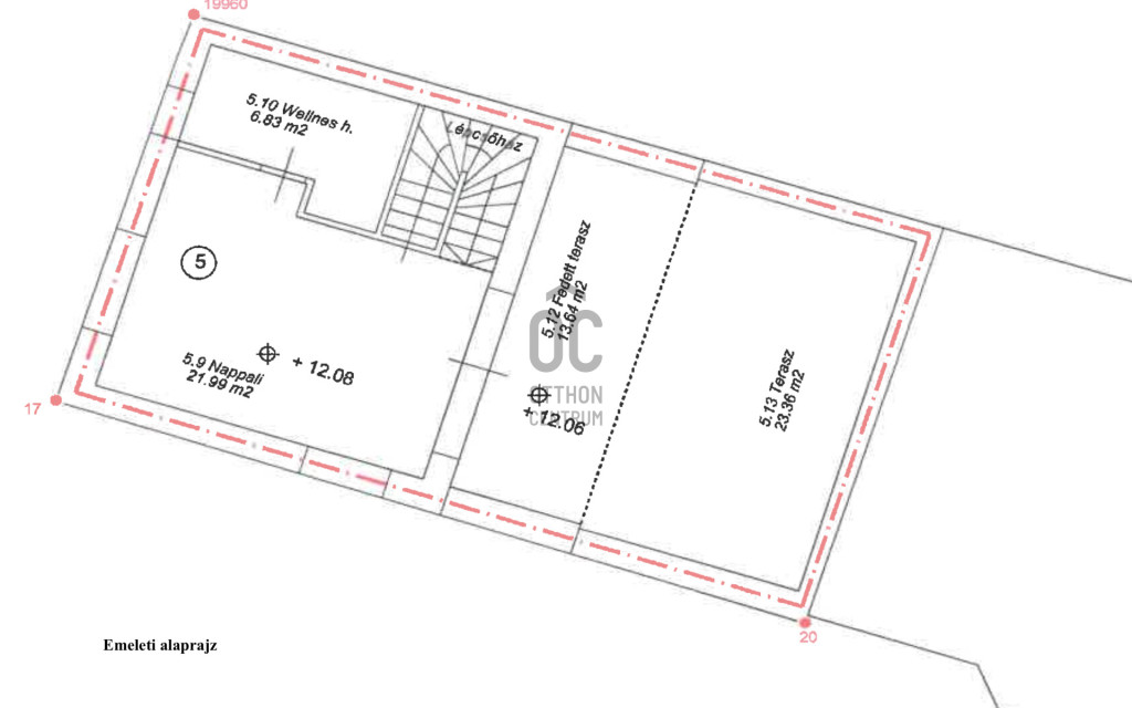
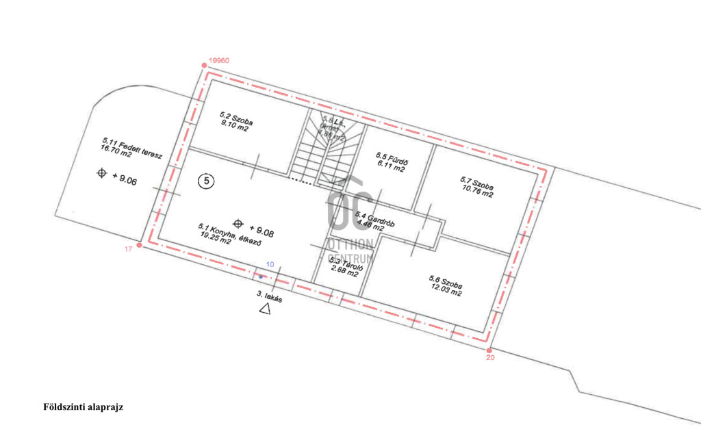
Földszint:
-Konyha–étkező (kertkapcsolattal)
-3 szoba
-Fürdőszoba + WC
-Gardrób, tároló
-18 m²-es fedett terasz
Emelet:
-Tágas nappali
-Fürdőszoba + WC
-36 m²-es panorámás terasz, részben fedett
-grillkonyha, jakuzzi-előkészítés
-lenyűgöző kilátás Hévíz városára ????
Extra előnyök
-22 m²-es fedett gépkocsi-beálló tároló résszel
-Gondozott kert és udvar
-Teljesen elkészült épület (burkolatok, szaniterek, világítás)
-Azonnal költözhető
-Konyhabútor saját igény szerint alakítható az új tulajdonos által
Ez az ingatlan nem kompromisszum, hanem tudatos döntés:
modern technológia, prémium életérzés, örökpanoráma és alacsony rezsi egyetlen otthonban.
Keressen bizalommal további információért vagy megtekintésért – ez a lehetőség ritka Hévízen!